Eladó újszerű ház - Berkenye

KAPCSOLAT
Korda Gabriella


+36 30 332

kordagabriella.prolux@

Az időpont kérés naptár ikonja
IDŐPONTOT KÉREK
A visszahívás kérés telefon ikonja egy azt körbe ölelő nyíllal
VISSZAHÍVÁST KÉREK
Ajánlom egy ismerősömnek ikon
AJÁNLOM EGY ISMERŐSÖMNEK
Facebook megosztás ikon
MEGOSZTÁS

KAPCSOLATFELVÉTEL

Küldés

Az üzenetet sikeresen elküldtük!
Hiba történt!
INGATLAN ADATAI

Ingatlan jellege

családi ház

Belső terület

114 m²

Telek terület

1651 m²

Tájolás

délnyugat

Építési állapot

újszerű

Építési mód

tégla

Szobák száma

3 szoba

Terasz

28 m²

Épület szintje

1.

Épült

2025

Akadálymentes

igen

Ingatlan állapot

kívül: épülő
belül: épülő

Klíma

előkészítve

Szigetelés

15 cm

Ablak szerkezete

3 rétegű thermoplan

Fűtés

hőszivattyús

Komfort

összkomfort

Közműállapot

csatorna: bekötve
gáz: bekötve
villany: bekötve
víz: bekötve

Energetika

A+:

Az időpont kérés naptár ikonja
HTML
Az időpont kérés naptár ikonja
PDF
Eladó újszerű ház
Ingatlan azonosító:
1877_pl

Nógrád megye, Berkenye

Irányár

121.5 M Ft
(1.07 M Ft/㎡)

Szobák

3 szoba

Terület

114 m²

Telek terület

1651 m²
INGATLAN LEÍRÁSA
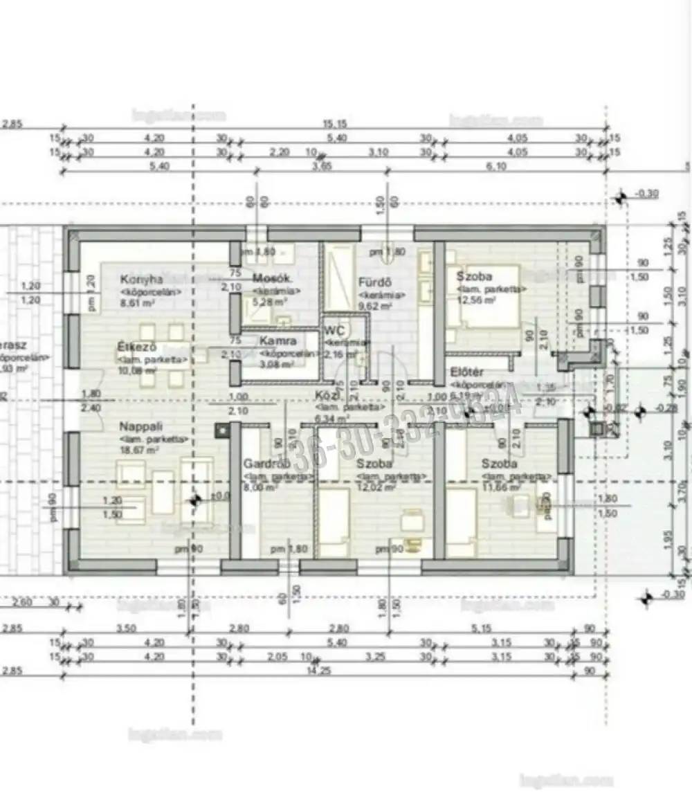
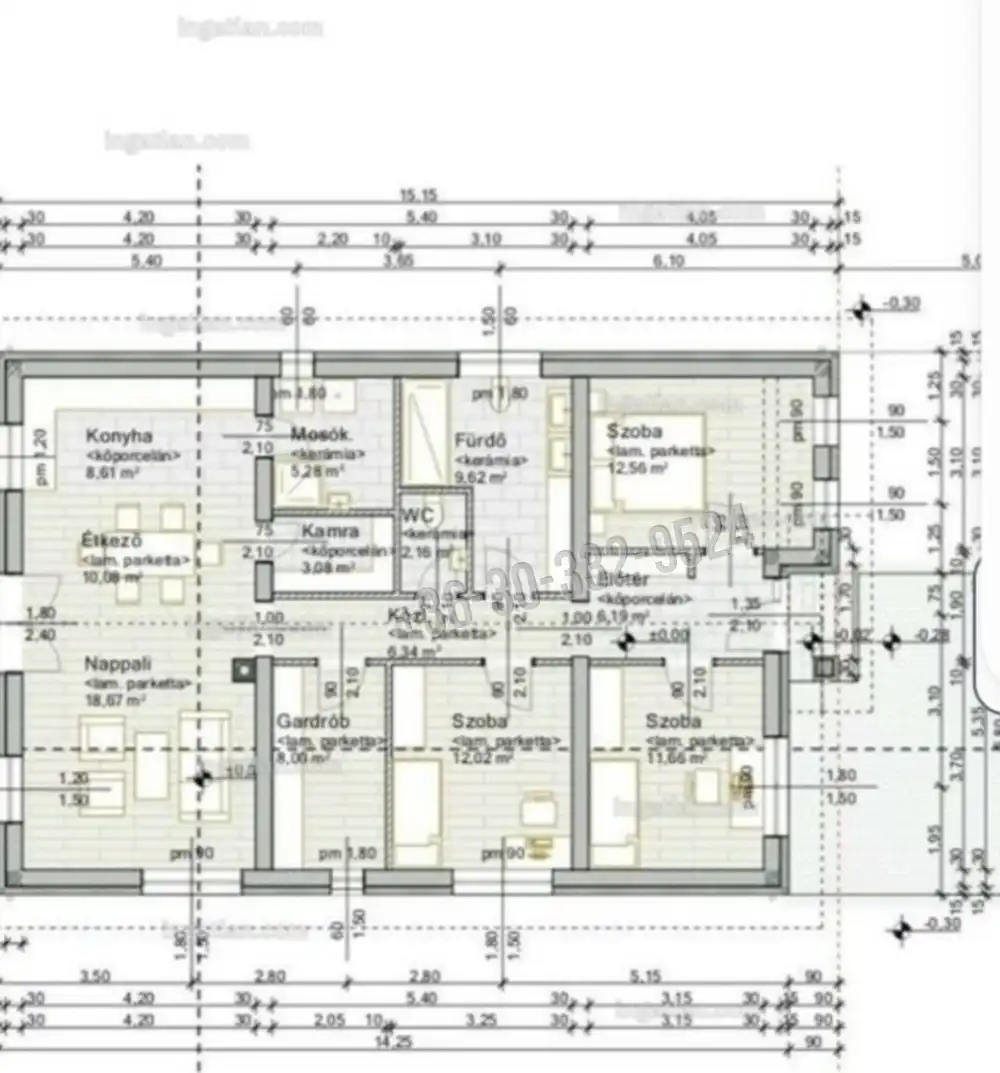
Berkenye, új családi házas utcájában kínálunk megvételre egy, építés alatt álló, jelenleg szerkezet kész, 114 nm-es, 4 szobás, összkomfortos, hőszivattyú által vezérelt padlófűtéses, 28 nm-es terasszal ellátott családi házat, 1651 nm-es telekkel.

Az ingatlan a legújabb szabályoknak megfelelően épült, beton sávalapra, 30-as Porotherm téglából, melyre 15 cm-es grafitos szigetelés kerül, látszó fagerendás födémmel vagy gipszkarton födémmel, melyre 30 cm-es kőzetgyapot szigetelés kerül.
Ablakai korszerű műanyag nyílászárók, 3 üveg réteggel kerülnek beépítésre (fehérek).
A tetőt Terrán betoncserép fedi.

Helyiségei:
- tágas amerikai konyhás nappali, melybe kandalló vagy cserépkályha használatára alkalmas kémény került beépítésre.
- 3 szoba, amik külön nyílnak
- fürdőszoba toalettel
- külön toalett
- gardrób szoba
- háztartási helyiség (mosókonyha lehetőség)

Kialakításra kerültek a szobákban és a nappaliban a H-tarifás klíma kiállások.
Az épület szellőztetését egy hővisszanyerő szellőző rendszer fogja biztosítani.
A napelemes rendszer a ház előnyös délnyugati fekvése miatt, igény szerint kiépíthető.

A házban riasztórendszer kerül kiépítésre.

Az ingatlanban egyedi igények szerint kerülhet kialakításra a belső tér, a burkolatok kiválasztása, a fürdőszobában kád illetve zuhanyfülke legyen kialakítva, a falak és a homlokzat színei.

Az árban az épület csempeburkolata 8 500, Ft/nm értékben, a laminált padló burkolatok 6 500, Ft/nm értékben választhatók.

Ezt az ingatlant egy megbízható, igényes kivitelező építi.
Az érdeklődők a községben, a már megépült referencia családi házát is megnézhetik.

Ha felkeltette érdeklődésüket ez a szép épülő családi ház és meg szeretnék tekinteni, előzetes egyeztetés után megtehetik, akár hétvégén is.
Köszönöm megtisztelő figyelmüket!

Amiben segítjük Önöket:
- hitel ügyintézés
- CSOK ügyintézés
- energetikai tanúsítvány
- földhivatali háttér
- földmérés
- értékbecslés
+ szolgáltatásunk: Ingyenes ajánlatküldés országos rendszerből, e-mail cím megadásával

INGATLAN ADATAI

Ingatlan jellege
családi ház
Belső terület
114 m²
Telek terület
1651 m²
Tájolás
délnyugat
Építési állapot
újszerű
Építési mód
tégla
Szobák száma
3 szoba
Terasz
28 m²
Épület szintje
1.
Épült
2025
Akadálymentes
igen
Ingatlan állapot
kívül: épülő
belül: épülő
Klíma
előkészítve
Szigetelés
15 cm
Ablak szerkezete
3 rétegű thermoplan
Fűtés
hőszivattyús
Komfort
összkomfort
Közműállapot
csatorna: bekötve
gáz: bekötve
villany: bekötve
víz: bekötve
Energetika
A+:
TÉRKÉP

Nógrád megye, Berkenye

Hitelkalkulátor


KAPCSOLAT
Korda Gabriella
Korda Gabriella


+36 30 332 9524

kordagabriella.prolux@gmail.com

KAPCSOLAT
Korda Gabriella

+36 30 332

kordagabriella.prolux@

Az időpont kérés naptár ikonja
IDŐPONTOT KÉREK
A visszahívás kérés telefon ikonja egy azt körbe ölelő nyíllal
VISSZAHÍVÁST KÉREK
Ajánlom egy ismerősömnek ikon
AJÁNLOM EGY ISMERŐSÖMNEK
Facebook megosztás ikon
MEGOSZTÁS

KAPCSOLATFELVÉTEL

Küldés

Az üzenetet sikeresen elküldtük!
Hiba történt!
INGATLAN ADATAI

Ingatlan jellege

családi ház

Belső terület

114 m²

Telek terület

1651 m²

Tájolás

délnyugat

Építési állapot

újszerű

Építési mód

tégla

Szobák száma

3 szoba

Terasz

28 m²

Épület szintje

1.

Épült

2025

Ingatlan állapot

kívül: épülő
belül: épülő

Klíma

előkészítve

Szigetelés

15 cm

Ablak szerkezete

3 rétegű thermoplan

Fűtés

hőszivattyús

Komfort

összkomfort

Közműállapot

csatorna: bekötve
gáz: bekötve
villany: bekötve
víz: bekötve

Energetika

A+:

Az időpont kérés naptár ikonja
HTML
Az időpont kérés naptár ikonja
PDF

Hasonló ingatlan hírdetések

Eladó újszerű családi ház, vagy kertes ház hirdetést keres Berkenye területén?
Tekintse meg további ajánlatainkat!

eladó családi ház, Berkenye

eladó családi ház

Nógrád megye, Berkenye
Eladó Berkenyén építés alatt álló 114 m2-es családi ház, 28 m2-es terasszal, mely egy 1651 m2-es telken helyezkedik el. Az ingatlanban egyedi igény szerint kerülhet kialakításra a belső tér. Választha...
Belső terület
114 m²
Telek terület
1651 m²
Szobák
4

121.5 M Ft

Új építésű!
Új építésű
eladó családi ház, Berkenye

eladó családi ház

Nógrád megye, Berkenye
Eladó Családi Ház Berkenyén - Kiváló Lehetőség! Az ingatlan kiváló alternatívát jelent befektetők számára, akik vendégházat vagy éttermet kívánnak kialakítani. A helyi turizmus széleskörű lehetőség...
Belső terület
230 m²
Telek terület
1443 m²
Szobák
3+1

72 M Ft

eladó családi ház, Berkenye

eladó családi ház

Nógrád megye, Berkenye
Berkenyén eladó egy különleges hangulatú, tornácos parasztház, amely egyesíti a múlt báját a mai igényekkel. A ház 230 négyzetméteres lakóterülettel rendelkezik, a hozzá tartozó telek pedig közel 1...
Belső terület
230 m²
Telek terület
1440 m²
Szobák
3+1

72 M Ft

CSOK igényelhető
CSOK igényelhető
Nógrád megye - Berkenye
Nógrád megye - Berkenye
Nógrád megye - Berkenye
Nógrád megye - Berkenye
Nógrád megye - Berkenye
Nógrád megye - Berkenye
Nógrád megye - Berkenye
Nógrád megye - Berkenye
Nógrád megye - Berkenye
Nógrád megye - Berkenye
Nógrád megye - Berkenye
Nógrád megye - Berkenye