KAPCSOLATFELVÉTEL
Ingatlan jellege
családi ház
Belső terület
690 m²
Telek terület
265 m²
Tájolás
délkelet
Építési állapot
használt
Építési mód
tégla
Szobák száma
14 szoba
Épület szintje
4.
Épült
kb. 1930
Ingatlan állapot
 
										kívül: felújítandó
belül: felújítandó									
Fűtés
cirko
Komfort
összkomfort
Közműállapot
 
								csatorna: bekötve										
								gáz: bekötve										
								villany: bekötve										
								víz: bekötve										
									
Energetika
nincs megadva
Budapest, XIV. kerület, Istvánmező
Irányár
(723.19 E Ft/㎡)
Szobák
Terület
Telek terület
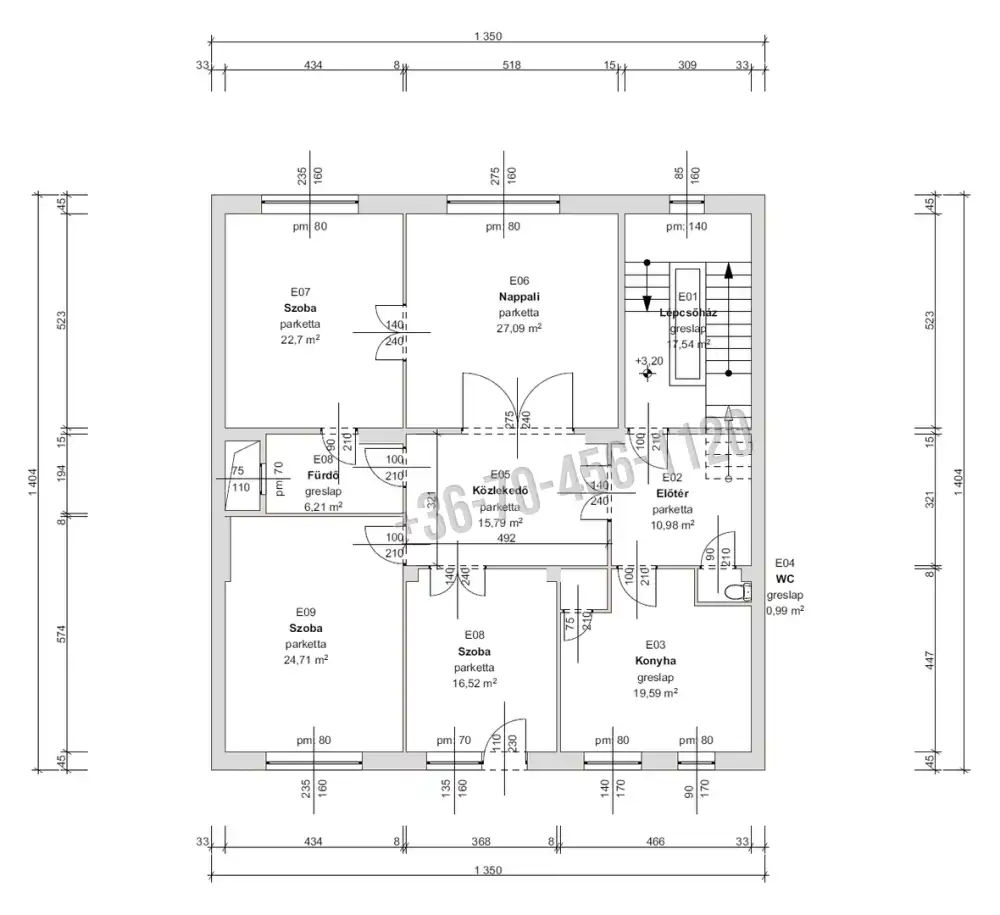
A ház egy körbezárt, intim hangulatú kertben helyezkedik el, távol az utca zajától. Az ingatlan jelenlegi kialakítása 90 nm alagsort, 150 nm irodahelyiséget és 150 nm-es, 4 szobás lakást tartalmaz, összesen 390 nm területtel, jelentősebb tartófalak nélkül a lakóterületben, így igény szerint alakítható.
A beépíthetősége is kiemelkedő: a 300 nm meglévő lakóterülete mellet, még 300 nm-rel bővíthető, így akár egy exkluzív többgenerációs otthon, befektetési projektként 3-4 db 4 szobás társasházi lakás, vagy rendelő, cégközpont is kialakítható.
•Alagsor 90 nm,
•fszt 150 nm garázs,
•I-III emelet 150 nm-es lakások, vagy fszt-III emelet 4*150 nm lakások
A száraz, stabil szerkezetű, de felújítást igénylő épület alagsora 90 m², amely kiválóan alkalmas irodának, fitneszteremnek, wellness-részlegnek.
A felső szintekről kellemes panoráma nyílik a környékre, a ház fekvése pedig ideális: csendes mellékutca, mégis kiváló közlekedés, közel a belvároshoz, zöldövezetben.
Főbb jellemzők:
•300 m² lakótér, 90 m² alagsor
•bővíthető + 300 m²-rel
•az alaprajzok szabadon variálhatók
•csendes, körbezárt kerttel rendelkezik
•klasszikus stílus alakítható ki modern felszereltséggel
•felső szintekről panoráma
•kiváló elhelyezkedés, Stefánia út közelében
Ez a villa kiváló választás azoknak, akik értékelik a klasszikus építészet időtállóságával, de nem akarnak kompromisszumot kötni a mai kor kényelmével és lehetőségeivel.
További információkért és megtekintésért kérem, keressen bizalommal!
belül: felújítandó
gáz: bekötve
villany: bekötve
víz: bekötve
Budapest, XIV. kerület, Istvánmező
Hitelkalkulátor
 
							+36 70 456 1120
benes.attila@ibred.hu
KAPCSOLATFELVÉTEL
Ingatlan jellege
családi ház
Belső terület
690 m²
Telek terület
265 m²
Tájolás
délkelet
Építési állapot
használt
Építési mód
tégla
Szobák száma
14 szoba
Épület szintje
4.
Épült
kb. 1930
Ingatlan állapot
 
									kívül: felújítandó
belül: felújítandó								
Fűtés
cirko
Komfort
összkomfort
Közműállapot
 
							csatorna: bekötve									
							gáz: bekötve									
							villany: bekötve									
							víz: bekötve									
								
Energetika
nincs megadva
 
								 
											 
																 
																 
																 
																 
																 
																 
																 
																 
																 
																 
																 
																 
																 
																 
																 
																 
																 
																 
																 
																 
																 
																 
																 
										 
										 
										 
										 
										 
										 
						
					 
						
					 
						
					 
						
					 
						
					 
						
					 
						
					 
						
					 
						
					 
						
					 
						
					 
						
					 
						
					 
						
					 
						
					 
						
					 
						
					 
						
					 
						
					 
						
					 
						
					 
						
					 
						
					