Eladó ház - Eger

KAPCSOLAT
Vass Anett


+36 70 431

gyemantfelhoeger@

Az időpont kérés naptár ikonja
IDŐPONTOT KÉREK
A visszahívás kérés telefon ikonja egy azt körbe ölelő nyíllal
VISSZAHÍVÁST KÉREK
Ajánlom egy ismerősömnek ikon
AJÁNLOM EGY ISMERŐSÖMNEK
Facebook megosztás ikon
MEGOSZTÁS

KAPCSOLATFELVÉTEL

Küldés

Az üzenetet sikeresen elküldtük!
Hiba történt!
INGATLAN ADATAI

Ingatlan jellege

családi ház

Belső terület

220 m²

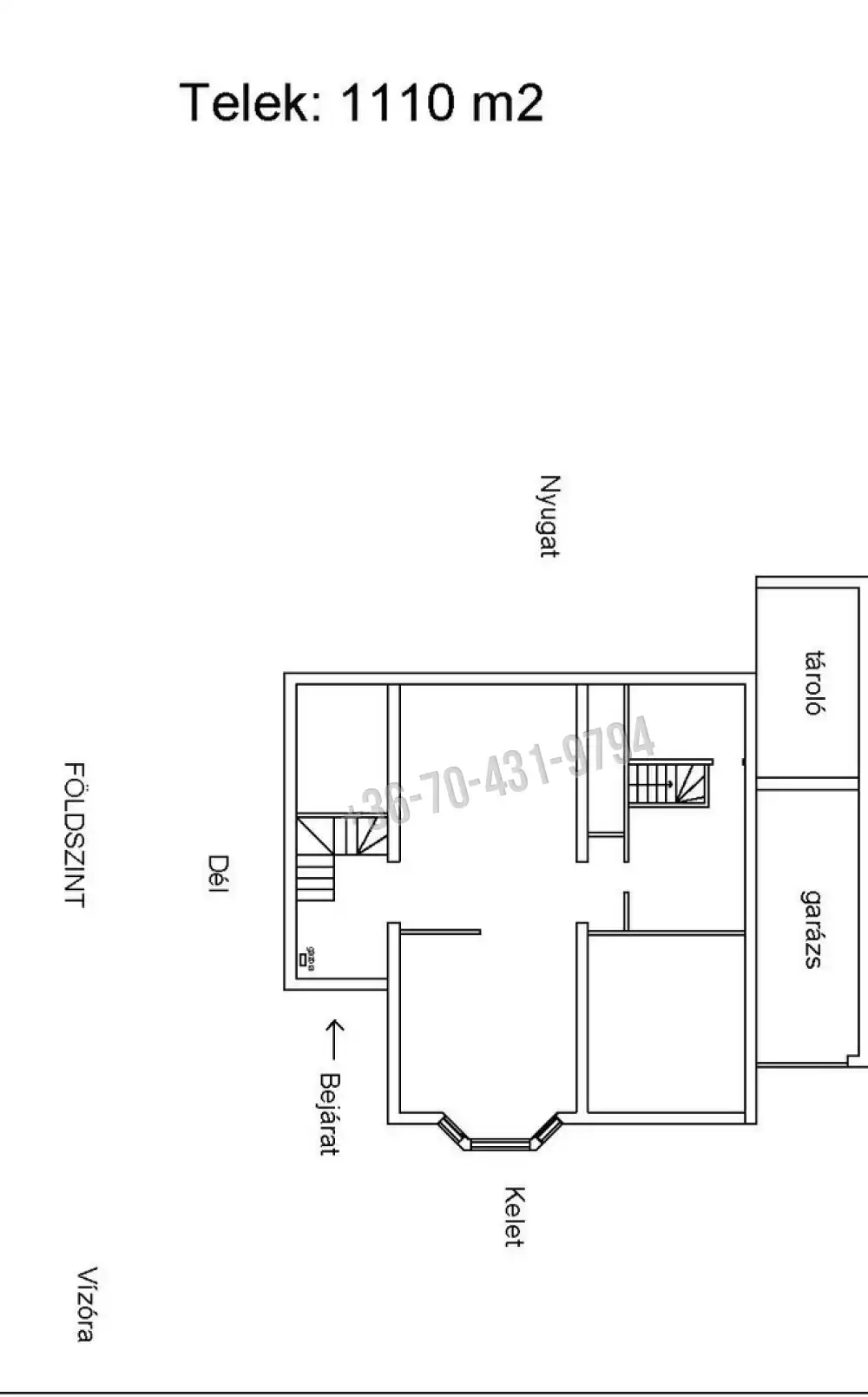
Telek terület

1110 m²

Tájolás

dél, kelet

Építési állapot

használt

Építési mód

szilikát

Szobák száma

5+1 félszoba

Épület szintje

2.

Ingatlan állapot

kívül: jó
belül: felújított

Ablak szerkezete

3 rétegű thermoplan

Komfort

komfort

Parkolás

van önálló garázs

Közműállapot

csatorna: bekötve
gáz: bekötve
villany: bekötve
víz: bekötve

Energetika

nincs megadva

Az időpont kérés naptár ikonja
HTML
Az időpont kérés naptár ikonja
PDF
Eladó ház
Ingatlan azonosító:
61_vsn

Heves megye, Eger, Lajosváros

Irányár

89 M Ft
(404.55 E Ft/㎡)

Szobák

5+1 félszoba

Terület

220 m²

Telek terület

1110 m²
INGATLAN LEÍRÁSA
Eger kedvelt kertvárosi részén, a Lajosváros csendes utcájában 220 m²-es családi ház, városi viszonylatban nagynak számító 1110 m²-es telekkel eladó!

Az ingatlan ideális választás azoknak, akik nem akarnak hatalmas felújításba kezdeni, viszont saját ízlésükre szabott otthont szeretnének.

A ház statikailag kifogástalan állapotú, masszív szerkezetű. 1987-ben épült beton sávalappal, szilikát falazattal, beton födémmel és cserép tetőfedéssel.

A ház már csak az utolsó simításokat várja!
- A teljes víz-, villany- és gázvezeték csere megtörtént. A fűtés és víz leállások az emeleten is kiépítésre kerültek.
- A falak hang- és tűzgátló gipszkarton borítást kaptak, amit gletteltek és fehérre festettek.
- Prémium kategóriás Fenstherm 3 rétegű, gázzal töltött hő- és hangszigetelt ablakok kerültek beépítésre (az alsó szinten teljes, az emeleten részleges csere).
- Minden helyiség aljzatkiegyenlítővel lett ellátva, azonnal burkolható állapotban van.
A padlóburkolatok, a szaniterek és a fűtésrendszer (kazán és fűtőtestek) kiválasztása már az új tulajdonosra vár.

A 220 m²-es lakótér kitűnő elrendezésű:
Földszinten (110 m²): Tágas nappali (30 m²), konyha-étkező (22 m² – villany és gáz főzési lehetőség is kiépítve), hálószoba (20 m²), fél szoba, fürdő, spejz és mosókonyha.
Emeleten (110 m²): 3 külön nyíló szoba (14, 16 és 19 m²), fürdőszoba, gardrób, tároló és terasz.

Az 1110 m²-es kertben minden kialakítható ami a kellemes pihenést szolgálja, legyen szó konyhakertről, medencéről, játszótérről, bográcsozóról.

A kertben egy 16 méter mély betongyűrűs kút található, amely kifogástalan vízhozamot biztosít az öntözéshez.
A ház mellett garázs és fedett tároló, a ház alatt 14 m²-es, száraz borospince található.

Csendes, kertvárosi lakókörnyezet, kiváló közlekedéssel és infrastruktúrával. Orvos, gyógyszertár, játszótér, boltok, óvoda, iskolák pár percre találhatóak.

Ne maradjon le erről a kiváló házról, alakítsa ki saját igényei szerint álmai otthonát!
Megtekintésért és további információért keressen bizalommal!
Ideális választás családoknak, akár több generáció kényelmes együttélésére is!

A képek után, hogy segítsem döntésében a mesterséges intelligencia segítségével mutatom hogy nézne ki 1-1 helyiség berendezve.

Igény esetén teljeskörű ügyintézéssel: ügyvédi háttérrel, ingyenes bankfüggetlen hitelügyintézéssel (3%, babaváró, CSOK és egyéb hitelek) segítem ügyfeleim ingatlanvásárlását.

INGATLAN ADATAI

Ingatlan jellege
családi ház
Belső terület
220 m²
Telek terület
1110 m²
Tájolás
dél, kelet
Építési állapot
használt
Építési mód
szilikát
Szobák száma
5+1 félszoba
Épület szintje
2.
Ingatlan állapot
kívül: jó
belül: felújított
Ablak szerkezete
3 rétegű thermoplan
Komfort
komfort
Parkolás
van önálló garázs
Közműállapot
csatorna: bekötve
gáz: bekötve
villany: bekötve
víz: bekötve
Energetika
nincs megadva

Hitelkalkulátor


KAPCSOLAT
Vass Anett
Vass Anett


+36 70 431 9794

gyemantfelhoeger@gmail.com

KAPCSOLAT
Vass Anett

+36 70 431

gyemantfelhoeger@

Az időpont kérés naptár ikonja
IDŐPONTOT KÉREK
A visszahívás kérés telefon ikonja egy azt körbe ölelő nyíllal
VISSZAHÍVÁST KÉREK
Ajánlom egy ismerősömnek ikon
AJÁNLOM EGY ISMERŐSÖMNEK
Facebook megosztás ikon
MEGOSZTÁS

KAPCSOLATFELVÉTEL

Küldés

Az üzenetet sikeresen elküldtük!
Hiba történt!
INGATLAN ADATAI

Ingatlan jellege

családi ház

Belső terület

220 m²

Telek terület

1110 m²

Tájolás

dél, kelet

Építési állapot

használt

Építési mód

szilikát

Szobák száma

5+1 félszoba

Épület szintje

2.

Ingatlan állapot

kívül: jó
belül: felújított

Ablak szerkezete

3 rétegű thermoplan

Komfort

komfort

Parkolás

van önálló garázs

Közműállapot

csatorna: bekötve
gáz: bekötve
villany: bekötve
víz: bekötve

Energetika

nincs megadva

Az időpont kérés naptár ikonja
HTML
Az időpont kérés naptár ikonja
PDF

Hasonló ingatlan hírdetések

Eladó családi ház, vagy kertes ház hirdetést keres Eger területén?
Tekintse meg további ajánlatainkat!

eladó nyaraló, Eger

eladó nyaraló

Heves megye, Eger, Mihálynagytető
Hétvégi ház / Gyümölcsös Romantikus, pihenésre, kertészkedésre vágyóknak! Egertől 4 km-re, Kerecsend felé a 25 fő út-ról nyíló murvás úton, megközelíthető zárt kert, hangulatos kisházzal várja új g...
Belső terület
20 m²
Telek terület
1431 m²
Szobák
2

6.9 M Ft

Panorámás!
Panorámás
eladó családi ház, Eger

eladó családi ház

Heves megye, Eger, Hatvanihóstya
TÖBBGENERÁCIÓS OTTHON VAGY KIVÁLÓ BEFEKTETÉS EGER FREKVENTÁLT RÉSZÉN ELADÓ! Eger, – Hatvanihóstya, belváros, Szépasszony völgy közelségében csendes családi házas övezetben található. Az egyszint...
Belső terület
173 m²
Telek terület
513 m²
Szobák
6

140 M Ft

kétgenerációs!
Kétgenerációs
eladó családi ház, Eger

eladó családi ház

Felújított ház Egerben - lakás áron!

Heves megye, Eger, Cifrahóstya
Felújított, kis családi ház eladó Egerben, a belvárostól, Dobó tértől 10 perc sétatávolságra. ELOSZTÁSA, TÁJOLÁSA A kelet-nyugati fekvésű ingatlan 70 m2, egy légterű előtér - nappali - étkező - k...
Belső terület
70 m²
Telek terület
304 m²
Szobák
3

74.9 M Ft

Felújított!
Felújított
eladó családi ház, Eger

eladó családi ház

Tágas, egyedi elrendezésű, több funkcióra alkalmas családi ház Egerben!

Heves megye, Eger, Tihaméri városrész
Egerben, a Tihaméri városrészen 140/164 m2-es, 4+3 szobás, több célra is alkalmas családi ház, 311 m-es telken eladó! Az ingatlan csendes mellékutcában található, az Érsekkerttől, Strandtól 10 perc...
Belső terület
140 m²
Telek terület
311 m²
Szobák
4+3

85.9 M Ft

azonnal költözhető
Azonnal költözhető
eladó családi ház, Eger

eladó családi ház

Heves megye, Eger, Hajdúhegy
Eger Rózsadombján, a Hajdúhegy legtetején eladó egy kiváló állapotú 2 szintes családi ház. Az impozáns környéken lévő 170 m2- es zárt sorú beépitésű ingatlan 811 m2 telken áll, mely ideális egy csa...
Belső terület
170 m²
Telek terület
811 m²
Szobák
5

139 M Ft

kiemelt
Kiemelt
eladó családi ház, Eger

eladó családi ház

Heves megye, Eger, Hatvanihóstya
Eger Belváros közeli, azonnal birtokba vehető, felújítandó családi ház eladó. Az ingatlan csendes, nyugodt utcában helyezkedik el. A ház az 1960-as években épült vegyes (tufa, tégla) falazattal. ...
Belső terület
80 m²
Telek terület
422 m²
Szobák
4

26.8 M Ft

eladó családi ház, Eger

eladó családi ház

Heves megye, Eger, Almagyar
EGERBEN,ALMAGYAR DOMB ALSÓ RÉSZÉN,2 GENERÁCIÓS,ÖRÖK PANORÁMÁS CSALÁDI HÁZ ELADÓ! A vár közelében,csendes utcában eladó egy két generáció,vagy akár apartmanozásra is alkalmas, két utcafrontos,kiváló s...
Belső terület
220 m²
Telek terület
370 m²
Szobák
7

99 M Ft

eladó családi ház, Eger

eladó családi ház

Heves megye, Eger, Hajdúhegy
Egerben a Hajdúhegy csendes részén kétgenerációs családi ház eladó! Eger egyik legnyugodtabb részén, a Hajdúhegyen található ez a jó állapotú, világos és tágas, két szintes családi ház, amely kial...
Belső terület
183 m²
Telek terület
545 m²
Szobák
5

89.9 M Ft

kétgenerációs!
Kétgenerációs
Heves megye - Eger