KAPCSOLATFELVÉTEL
Ingatlan jellege
családi ház
Belső terület
168 m²
Telek terület
690 m²
Tájolás
délnyugat
Építési állapot
használt
Építési mód
tégla
Szobák száma
5 szoba
Szobák elhelyezkedése
külön nyílik min. 2 szoba
Épület szintje
2.
Épült
2026
Akadálymentes
részlegesen
Ingatlan állapot
kívül: új
belül: új
Klíma
van
Szigetelés
15 cm
Ablak szerkezete
3 rétegű thermoplan
Fűtés
cirko
Komfort
duplakomfort
Közműállapot
csatorna: bekötve
gáz: bekötve
villany: bekötve
víz: bekötve
Energetika
nincs megadva
Pest megye, Göd
Irányár
(1.1 M Ft/㎡)
Szobák
Terület
Telek terület
Göd egyik kedvelt, nyugodt utcájában, a Jókai utcában kínáljuk megvételre ezt az új építésű, kulcsra kész állapotú modern családi házat. A kiváló műszaki paraméterekkel rendelkező ingatlan 690 m²-es, aszfaltozott utcáról megközelíthető telekre épül.
3 fázis ki lesz alakítva.
Az árban gázcirkós fűtés van padlófűtéssel, 2 klímával, azonban hőszivattyúval is lehet kérni.
Átadás 2026 ősz.
Az építkezés már folyamatban van.
A burkolat kiválasztásig a kivitelező folyamatosan halad önerőből is.
Rengeteg referencia munkát tudunk mutatni.
Beépített összes terepszint fölötti alapterület: 130,23 m2 - (18,87 %)
Bruttó szintterület: 228,082 m2
Összes hasznos alapterület: 167,19 m2
Zöldfelület mérete: 506,58 m2
Számított épületmagasság: 4,90 m
Tető hajlásszög: 39° és 19° emeleti lakótér fölött
Parkolás: telken belül 1 állásos garázsban
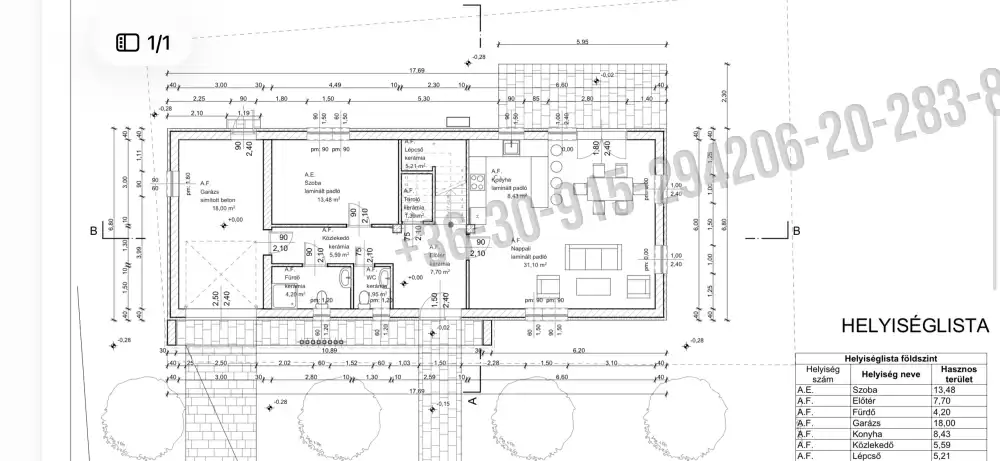
Helyiség kimutatás
F. Szoba 13,48
Előtér 7,70
Fürdő 4,20
Garázs 18,00
Konyha 8,43
Közlekedő 5,59
Lépcső 5,21
Nappali 31,10
Tároló 1,39
WC 1,95
Földszint összesen: 97,05 m2
Szoba 12,89
Szoba 15,32
Szoba 15,24
Fürdő 5,27
Gépészet 1,95
Háztartási helyiség 5,11
Közlekedő 12,12
WC 2,24
Emelet összesen: 71,83 m2
Összes hasznos alapterület: 167,19 m2
Összes hasznos alapterület: 167,19 m2
Összes nettó alapterület: 168,88 m2
További információért vagy megtekintésért hívjon bizalommal!
Néhány adat a megbízó által közölt információ alapján került feltüntetésre, így a tévedés jogát fenntartjuk!
Egyéb információért hívjon bizalommal.
Amiben segítjük Önöket:
- hitel ügyintézés
- CSOK ügyintézés
- energetikai tanúsítvány
- földhivatali háttér
- földmérés
- értékbecslés
- ingyenes ajánlatküldés országos rendszerből!
belül: új
gáz: bekötve
villany: bekötve
víz: bekötve
Pest megye, Göd
Hitelkalkulátor
+36 30 915 2942
proluxingatlaniroda@gmail.com
KAPCSOLATFELVÉTEL
Ingatlan jellege
családi ház
Belső terület
168 m²
Telek terület
690 m²
Tájolás
délnyugat
Építési állapot
használt
Építési mód
tégla
Szobák száma
5 szoba
Szobák elhelyezkedése
külön nyílik min. 2 szoba
Épület szintje
2.
Épült
2026
Ingatlan állapot
kívül: új
belül: új
Klíma
van
Szigetelés
15 cm
Ablak szerkezete
3 rétegű thermoplan
Fűtés
cirko
Komfort
duplakomfort
Közműállapot
csatorna: bekötve
gáz: bekötve
villany: bekötve
víz: bekötve
Energetika
nincs megadva