Eladó ház - Pécs

KAPCSOLAT
Boros Linda


+36 70 521 0521

blhomeandfinance@

Az időpont kérés naptár ikonja
IDŐPONTOT KÉREK
A visszahívás kérés telefon ikonja egy azt körbe ölelő nyíllal
VISSZAHÍVÁST KÉREK
Ajánlom egy ismerősömnek ikon
AJÁNLOM EGY ISMERŐSÖMNEK
Facebook megosztás ikon
MEGOSZTÁS

KAPCSOLATFELVÉTEL

Küldés

Az üzenetet sikeresen elküldtük!
Hiba történt!
INGATLAN ADATAI

Ingatlan jellege

családi ház

Belső terület

248 m²

Telek terület

577 m²

Tájolás

kelet

Építési állapot

használt

Építési mód

tégla

Szobák száma

7 szoba

Épület szintje

4.

Épült

kb. 1976

Ingatlan állapot

kívül: jó
belül: jó

Klíma

van

Fűtés

gázkazán

Komfort

összkomfort

Parkolás

van önálló garázs

Közműállapot

csatorna: bekötve
gáz: bekötve
villany: bekötve
víz: bekötve

Energetika

nincs megadva

Az időpont kérés naptár ikonja
HTML
Az időpont kérés naptár ikonja
PDF
Eladó ház
Ingatlan azonosító:
38_tw

Baranya megye, Pécs, Belváros

Irányár

185 M Ft
(745.97 E Ft/㎡)

Szobák

7 szoba

Terület

248 m²

Telek terület

577 m²
INGATLAN LEÍRÁSA
Eladásra kínálok Pécs-Mecseken, a Székely Bertalan utcában, egy, akár két generáció számára is alkalmas, és élhető ingatlant.

A családi ház panorámája a városra páratlan. Mindezt az emeleti teraszról csodálhatjuk meg.

A ház legfelső szintjén helyezkednek el a hálószobák, 3 db, melyből kettőből egy hatalmas teraszra jutunk ki. Továbbá egy padlástér, ami jelenleg tárolóként használatos, és egy tusolóval ellátott fürdő és illemhelyiség.

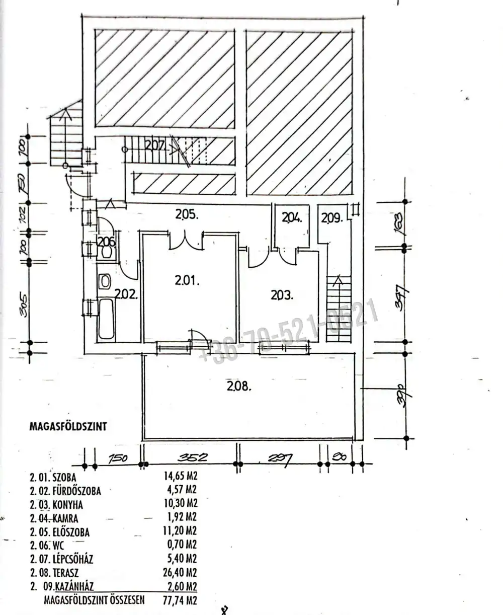
Lépcsőn lejutunk a nappaliba, amelyből egy erkély is nyílik. Ezen a szinten található a konyha, tároló, külön illemhelyiség, kádas fürdőszoba, és további 2 db szoba. Az ingatlannak ez a felső lakórésze, így, itt egy bejárat is található.

Innen közelíthető meg a kert, illetve egy pince is.

A ház oldalában lépcső vezet le az alsó lakórészhez, melyben további szoba + terasz, konyha + kamra, fürdőszoba, és illemhelyiségek találhatóak. Ez szintén külön bejárattal rendelkezik.

Az ingatlan aljában kapott helyet a kazánház, barkácsműhely, és kettő darab garázs.

A hatalmas ingatlan 577 m2-es telken helyezkedik el, mindössze cirka 250 m2.

Mélyföldszint 42 m2, itt találhatóak a garázsok is.
Magasföldszint 48 m2 terasszal, ez a kisebb lakórész.
1.emelet 103 m2, 2.emelet 55 m2, ez pedig a nagyobb lakórész.

Fűtése gázkazánnal, és vegyestüzelésű kazánnal is ellátott. Klíma teszi kellemessé a hőérzetet a nyári hónapokban.

A családi ház nagyon szépen karbantartott, tisztasági festést követően, azonnal költözhető.

Ha hitelre lenne szüksége a megvásárláshoz, állok rendelkezésre, mint független pénzügyi szakértő.

További kérdés, megtekintés esetén a megadott telefonszámon várom hívását.


INGATLAN ADATAI

Ingatlan jellege
családi ház
Belső terület
248 m²
Telek terület
577 m²
Tájolás
kelet
Építési állapot
használt
Építési mód
tégla
Szobák száma
7 szoba
Épület szintje
4.
Épült
kb. 1976
Ingatlan állapot
kívül: jó
belül: jó
Klíma
van
Fűtés
gázkazán
Komfort
összkomfort
Parkolás
van önálló garázs
Közműállapot
csatorna: bekötve
gáz: bekötve
villany: bekötve
víz: bekötve
Energetika
nincs megadva
TÉRKÉP

Baranya megye, Pécs, Belváros

Hitelkalkulátor


KAPCSOLAT
Boros Linda
Boros Linda


+36 70 521 0521,

blhomeandfinance@gmail.com

KAPCSOLAT
Boros Linda

+36 70 521 0521

blhomeandfinance@

Az időpont kérés naptár ikonja
IDŐPONTOT KÉREK
A visszahívás kérés telefon ikonja egy azt körbe ölelő nyíllal
VISSZAHÍVÁST KÉREK
Ajánlom egy ismerősömnek ikon
AJÁNLOM EGY ISMERŐSÖMNEK
Facebook megosztás ikon
MEGOSZTÁS

KAPCSOLATFELVÉTEL

Küldés

Az üzenetet sikeresen elküldtük!
Hiba történt!
INGATLAN ADATAI

Ingatlan jellege

családi ház

Belső terület

248 m²

Telek terület

577 m²

Tájolás

kelet

Építési állapot

használt

Építési mód

tégla

Szobák száma

7 szoba

Épület szintje

4.

Épült

kb. 1976

Ingatlan állapot

kívül: jó
belül: jó

Klíma

van

Fűtés

gázkazán

Komfort

összkomfort

Parkolás

van önálló garázs

Közműállapot

csatorna: bekötve
gáz: bekötve
villany: bekötve
víz: bekötve

Energetika

nincs megadva

Az időpont kérés naptár ikonja
HTML
Az időpont kérés naptár ikonja
PDF

Hasonló ingatlan hírdetések

Eladó családi ház, vagy kertes ház hirdetést keres Pécs területén?
Tekintse meg további ajánlatainkat!

eladó családi ház, Pécs

eladó családi ház

Baranya megye, Pécs, Újhegy
Eladásra kínálok Pécs-Újhegyen, egy akár 2 generáció számára is ideális családi házat. Az ingatlan földszint + emelet + tetőtérből áll, valamint egy pince szint is helyet kapott a ház aljában. S...
Belső terület
221 m²
Telek terület
737 m²
Szobák
7

114.9 M Ft

eladó családi ház, Pécs

eladó családi ház

Baranya megye, Pécs, (Mecsekoldal Szkókó), Szkokó-tető köz
Pécs, Mecsekoldalban az ERDÉSZ út alatt , Szkókótető közben kínálunk egy kőből épült csodálatos, délre, a városra néző panorámával rendelkező ingatlant enyhén lejtős telken. A 1640nm ,részben körbe...
Belső terület
150 m²
Telek terület
1640 m²
Szobák
4

50 M Ft

alkalmi vétel
Alkalmi vétel
eladó családi ház, Pécs

eladó családi ház

Baranya megye, Pécs, Hajnal utca
Eladásra kínálok a Diósi városrészben, a Trüffel cukrászda alatti családi házas részen, a Hajnal utcában egy 3 szintes családi házat. Az ingatlan lakószintje az emeleti rész és a tetőtér. Ez összes...
Belső terület
155 m²
Telek terület
205 m²
Szobák
6

99.99 M Ft

eladó családi ház, Pécs

eladó családi ház

Baranya megye, Pécs, Postavölgy
Eladásra kínálok Pécs-Postavölgyben egy hatalmas családi házat. Az ingatlan 3 szinten terül el. A jelenlegi lakószinje 80 m2 ,az emeleti részen található, melyben 2 szoba, konyha-étkezővel, táro...
Belső terület
214 m²
Telek terület
1973 m²
Szobák
2

64.99 M Ft

kétgenerációs!
Kétgenerációs
eladó családi ház, Pécs

eladó családi ház

Baranya megye, Pécs, (Belváros), Szikla utca
Eladó Pécsett belváros- tettyei részen a várfaltól 200m- re csendes utcában található zártsorú beépítésű felújítandó állapotú sorház a Szikla utcában. Az ingatlan 70m2-es, belső két szintes, tartozik...
Belső terület
70 m²
Telek terület
85 m²
Szobák
3

42.9 M Ft

Baranya megye - Pécs
Baranya megye - Pécs
Baranya megye - Pécs
Baranya megye - Pécs
Baranya megye - Pécs
Baranya megye - Pécs
Baranya megye - Pécs
Baranya megye - Pécs
Baranya megye - Pécs
Baranya megye - Pécs
Baranya megye - Pécs
Baranya megye - Pécs
Baranya megye - Pécs
Baranya megye - Pécs
Baranya megye - Pécs
Baranya megye - Pécs
Baranya megye - Pécs
Baranya megye - Pécs
Baranya megye - Pécs
Baranya megye - Pécs
Baranya megye - Pécs
Baranya megye - Pécs
Baranya megye - Pécs
Baranya megye - Pécs
Baranya megye - Pécs
Baranya megye - Pécs
Baranya megye - Pécs
Baranya megye - Pécs
Baranya megye - Pécs
Baranya megye - Pécs
Baranya megye - Pécs
Baranya megye - Pécs
Baranya megye - Pécs
Baranya megye - Pécs
Baranya megye - Pécs
Baranya megye - Pécs
Baranya megye - Pécs
Baranya megye - Pécs
Baranya megye - Pécs
Baranya megye - Pécs