Eladó ház - Ráckeve

KAPCSOLAT
Belák Ilona Kinga


+36 20 227

b.ilonakinga@

Az időpont kérés naptár ikonja
IDŐPONTOT KÉREK
A visszahívás kérés telefon ikonja egy azt körbe ölelő nyíllal
VISSZAHÍVÁST KÉREK
Ajánlom egy ismerősömnek ikon
AJÁNLOM EGY ISMERŐSÖMNEK
Facebook megosztás ikon
MEGOSZTÁS

KAPCSOLATFELVÉTEL

Küldés

Az üzenetet sikeresen elküldtük!
Hiba történt!
INGATLAN ADATAI

Ingatlan jellege

családi ház

Belső terület

150 m²

Telek terület

1172 m²

Tájolás

délnyugat

Építési állapot

használt

Építési mód

tégla

Szobák száma

4 szoba

Terasz

14.59 m²

Épület szintje

2.

Épült

kb. 1985

Ingatlan állapot

kívül: jó
belül: jó

Szigetelés

5 cm

Fűtés

gázkazán

Komfort

duplakomfort

Parkolás

van, nem meghatározott

Közműállapot

csatorna: bekötve
gáz: bekötve
villany: bekötve
víz: bekötve

Energetika

nincs megadva

Az időpont kérés naptár ikonja
HTML
Az időpont kérés naptár ikonja
PDF
Eladó ház
Belső azonosító:
34957898
Ingatlan azonosító:
364_isz

Pest megye, Ráckeve, Belváros

Irányár

64.9 M Ft
(432.67 E Ft/㎡)

Szobák

4 szoba

Terület

150 m²

Telek terület

1172 m²
INGATLAN LEÍRÁSA
Tágas családi ház eladó Ráckeve csendes, nyugodt részén – két utcáról megközelíthető, gazdasági épületekkel!

Ráckeve kertvárosias övezetében kínálunk megvételre egy stabil szerkezetű, folyamatosan karbantartott, összesen 150 m² alapterületű családi házat, 1172 m²-es, két utcáról is megközelíthető telekkel, ipari árammal.

Az ingatlan a 60-as évek végén épült, a 80-as években bővítésen esett át, ekkor nyerte el mai kialakítását. Az épület betonalapra, téglafalazattal épült, 5 cm-es homlokzati szigeteléssel. A nyílászárók korszerű, hőszigetelt műanyag szerkezetűek, a víz- és elektromos vezetékek részben cserélve lettek.

- Fűtés:
A komfortos hőérzetről központi fűtés gondoskodik, melyet vegyestüzelésű kazán, illetve gázkazán is képes ellátni, radiátoros hőleadással – így igazán rugalmasan szabályozható a fűtési költség.

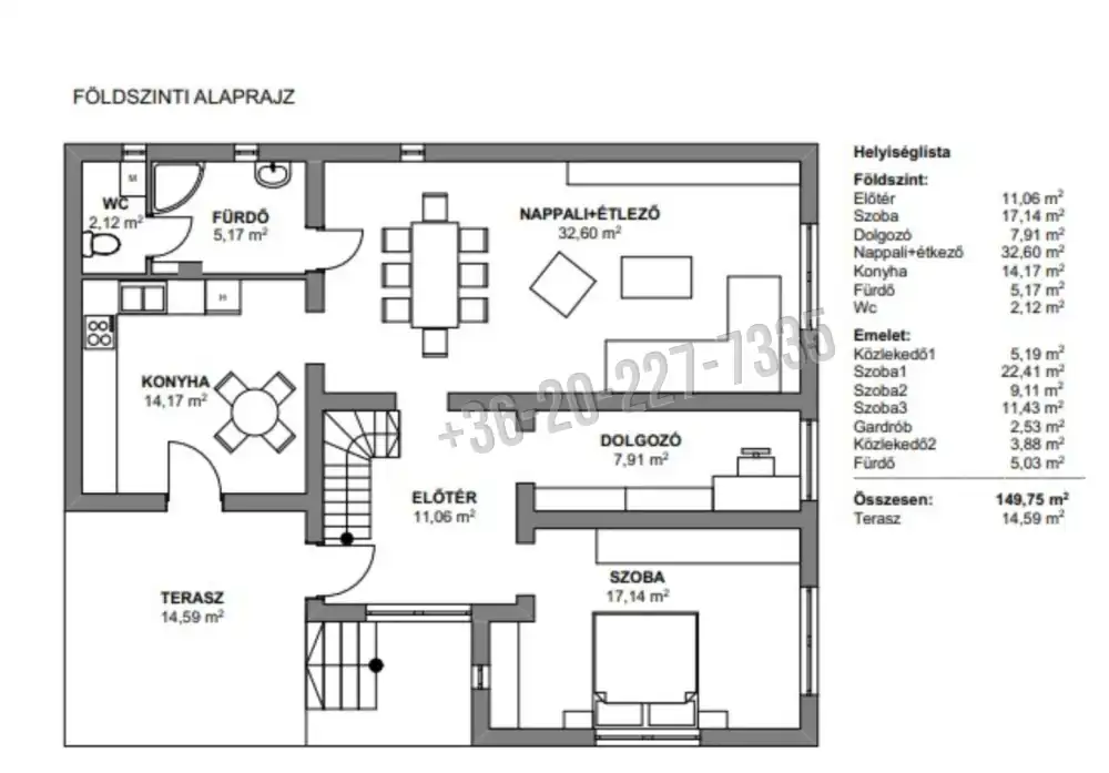
- Helyiségek elosztása:
Földszint: konyha, nappali, különálló fürdőszoba és WC, közlekedő, dolgozószoba, hálószoba

Emelet: két hálószoba, közlekedő, fürdőszoba

- Melléképületek:
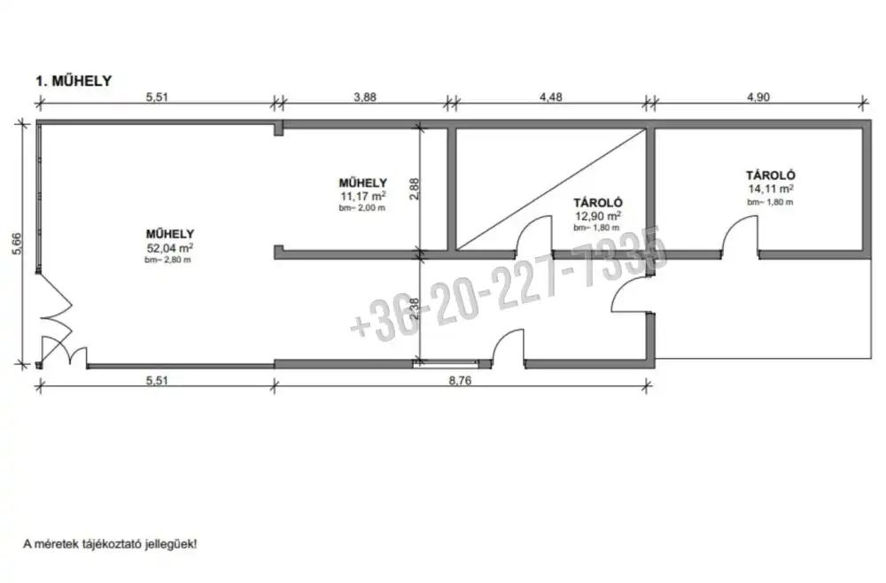
A tágas telken különálló garázs, három külön bejáratú műhely, melyben ipari áram is rendelkezésre áll, valamint egy praktikus nyári konyha is helyet kapott, így vállalkozásra, barkácsolásra, vagy tárolásra is kiváló lehetőség kínálkozik.

- A gondozott, nagyméretű udvar bőven ad teret akár kertészkedésre, akár gyerekeknek, házi kedvenceknek. A telek két irányból is megközelíthető, ami szintén nagy előnyt jelent – akár több generáció, akár vállalkozás számára.

Ez az ingatlan tökéletes választás lehet nagycsaládosoknak, összeköltözőknek, vállalkozóknak vagy bárkinek, aki értékeli a tágas terek, melléképületek és a rugalmas kialakítás lehetőségét egy csendes, mégis jól megközelíthető környéken.

INGATLAN ADATAI

Ingatlan jellege
családi ház
Belső terület
150 m²
Telek terület
1172 m²
Tájolás
délnyugat
Építési állapot
használt
Építési mód
tégla
Szobák száma
4 szoba
Terasz
14.59 m²
Épület szintje
2.
Épült
kb. 1985
Ingatlan állapot
kívül: jó
belül: jó
Szigetelés
5 cm
Fűtés
gázkazán
Komfort
duplakomfort
Parkolás
van, nem meghatározott
Közműállapot
csatorna: bekötve
gáz: bekötve
villany: bekötve
víz: bekötve
Energetika
nincs megadva
TÉRKÉP

Pest megye, Ráckeve, Belváros

Hitelkalkulátor


KAPCSOLAT
Belák Ilona Kinga
Belák Ilona Kinga


+36 20 227 7335

b.ilonakinga@gmail.com

KAPCSOLAT
Belák Ilona Kinga

+36 20 227

b.ilonakinga@

Az időpont kérés naptár ikonja
IDŐPONTOT KÉREK
A visszahívás kérés telefon ikonja egy azt körbe ölelő nyíllal
VISSZAHÍVÁST KÉREK
Ajánlom egy ismerősömnek ikon
AJÁNLOM EGY ISMERŐSÖMNEK
Facebook megosztás ikon
MEGOSZTÁS

KAPCSOLATFELVÉTEL

Küldés

Az üzenetet sikeresen elküldtük!
Hiba történt!
INGATLAN ADATAI

Ingatlan jellege

családi ház

Belső terület

150 m²

Telek terület

1172 m²

Tájolás

délnyugat

Építési állapot

használt

Építési mód

tégla

Szobák száma

4 szoba

Terasz

14.59 m²

Épület szintje

2.

Épült

kb. 1985

Ingatlan állapot

kívül: jó
belül: jó

Szigetelés

5 cm

Fűtés

gázkazán

Komfort

duplakomfort

Parkolás

van, nem meghatározott

Közműállapot

csatorna: bekötve
gáz: bekötve
villany: bekötve
víz: bekötve

Energetika

nincs megadva

Az időpont kérés naptár ikonja
HTML
Az időpont kérés naptár ikonja
PDF

Hasonló ingatlan hírdetések

Eladó családi ház, vagy kertes ház hirdetést keres Ráckeve területén?
Tekintse meg további ajánlatainkat!

eladó családi ház, Ráckeve

eladó családi ház

Duna közelében, két utcára nyíló kétgenerációs családi ház Ráckevén – vállalkozásra is ideális!

Pest megye, Ráckeve
Ráckeve frekventált részén, a Dunától néhány perc sétára eladó egy 130 m²-es családi ház, amely két generáció együttélésére vagy vállalkozásra is kiváló lehetőség. Az ingatlanból 80 m² teljesen felúj...
Belső terület
130 m²
Telek terület
519 m²
Szobák
4

95 M Ft

eladó családi ház, Ráckeve

eladó családi ház

Pest megye, Ráckeve, Belváros
Ráckeve belvárosához közel – tágas, 3 szintes családi ház külön irodával és garázzsal Ráckeve belvárosához közel kínálunk megvételre egy kb. 220 nm-es, tégla építésű, jó állapotú, összkomfortos csalá...
Belső terület
220 m²
Telek terület
2832 m²
Szobák
3

79.9 M Ft

eladó nyaraló, Ráckeve

eladó nyaraló

Családi otthon Ráckevén, a Kerekzátony-szigeten!

Pest megye, Ráckeve, Kerekzátony
Eladó igazi családi otthon Ráckevén, a Kerekzátony-szigeten! Ráckeve egyik legkedveltebb részén, a nyugalmat és a természet közelségét kínáló Kerekzátony-szigeten vált eladóvá ez a téglaépítésű, 84...
Belső terület
84 m²
Telek terület
205 m²
Szobák
3+1

42 M Ft

eladó családi ház, Ráckeve

eladó családi ház

Ráckeve központjához közel családi ház, nagy telekkel

Pest megye, Ráckeve, Belváros
Ráckevén 2 szobás családi ház, nagy telekkel ELADÓ! Ráckeve Budapesttől délre, a Csepel-sziget déli részén található város,a soroksári Duna-és a nagy Duna között helyezkedik el. A fővárossal a H6-o...
Belső terület
66 m²
Telek terület
1340 m²
Szobák
2

51.9 M Ft

eladó családi ház, Ráckeve

eladó családi ház

RÁCKEVÉN, KÖZPONT KÖZELI, DUPLA GARÁZSOS, BEFEJEZÉSRE VÁRÓ CSALÁDI HÁZ ELADÓ!

Pest megye, Ráckeve, Belváros
RÁCKEVÉN, KÖZPONT KÖZELI, DUPLA GARÁZSOS, BEFEJEZÉSRE VÁRÓ CSALÁDI HÁZ ELADÓ! Szeretne egy tágas, modern otthont Ráckeve központ közeli, csendes környékén? Most lehetősége van egy 4 szoba + nappali...
Belső terület
225 m²
Telek terület
1137 m²
Szobák
4

64.9 M Ft

eladó nyaraló, Ráckeve

eladó nyaraló

Pest megye, Ráckeve, (Kerekzátony), Kerekzátony sziget
Mesés luxus a természet ölelésében – Két különálló ház a Kerekzátony szigeten, közvetlen vízparton! Álmai otthonát vagy nyaralóját keresné a természet szívében, mégis kompromisszumok nélkül a kénye...
Belső terület
105 m²
Telek terület
600 m²
Szobák
3

89.99 M Ft

eladó nyaraló, Ráckeve

eladó nyaraló

Pest megye, Ráckeve, (Kerekzátony), Kerekzátony sziget
Eladó modern új építésű ház Ráckeve - Kerekzátony sziget – 230 m²-es telken Eladásra kínálunk egy új építésű, letisztult stílusú házat a Kerekzátony sziget nyugodt részén, 230 m²-es telken, saját sté...
Belső terület
55 m²
Telek terület
230 m²
Szobák
1

40 M Ft

eladó nyaraló, Ráckeve

eladó nyaraló

Panorámás nyaraló Ráckeve, Kerekzátony

Pest megye, Ráckeve, (Kerekzátony), Kerekzátony sziget
Eladó panorámás vízparti ház Ráckevén, a Kerekzátony szigeten – 270 m²-es telken Ráckeve egyik legkülönlegesebb részén, a Kerekzátony szigeten kínálunk eladásra egy 50 m²-es, rusztikus stílusú, mégis...
Belső terület
50 m²
Telek terület
270 m²
Szobák
1

50 M Ft

Pest megye - Ráckeve
Pest megye - Ráckeve
Pest megye - Ráckeve
Pest megye - Ráckeve
Pest megye - Ráckeve
Pest megye - Ráckeve
Pest megye - Ráckeve
Pest megye - Ráckeve
Pest megye - Ráckeve
Pest megye - Ráckeve
Pest megye - Ráckeve
Pest megye - Ráckeve
Pest megye - Ráckeve
Pest megye - Ráckeve