Eladó ház - Tata

kétgenerációs!
Kétgenerációs
KAPCSOLAT
Papp László


+36 70 528

papp.laszlo@

Az időpont kérés naptár ikonja
IDŐPONTOT KÉREK
A visszahívás kérés telefon ikonja egy azt körbe ölelő nyíllal
VISSZAHÍVÁST KÉREK
Ajánlom egy ismerősömnek ikon
AJÁNLOM EGY ISMERŐSÖMNEK
Facebook megosztás ikon
MEGOSZTÁS

KAPCSOLATFELVÉTEL

Küldés

Az üzenetet sikeresen elküldtük!
Hiba történt!
INGATLAN ADATAI

Ingatlan jellege

családi ház

Belső terület

207 m²

Telek terület

321 m²

Tájolás

délkelet

Építési állapot

használt

Építési mód

tégla

Szobák száma

8 szoba

Épület szintje

2.

Épült

kb. 1998

Ingatlan állapot

kívül: jó
belül: jó

Ablak szerkezete

2 rétegű thermoplan

Fűtés

gázkazán

Komfort

összkomfort

Közműállapot

csatorna: bekötve
gáz: bekötve
villany: bekötve
víz: bekötve

Energetika

nincs

Extrák

redőny, szúnyogháló

Az időpont kérés naptár ikonja
HTML
Az időpont kérés naptár ikonja
PDF
Eladó ház
Ingatlan azonosító:
4249_ko

Komárom-Esztergom megye, Tata

Irányár

150 M Ft
(724.64 E Ft/㎡)

Szobák

8 szoba

Terület

207 m²

Telek terület

321 m²
INGATLAN LEÍRÁSA
Megvételre kínálunk egy Tata csendes nyugodt környékén elhelyezkedő apartmanházat, nem messze a tatai kálvária dombtól. Az épület apartmannak, munkásszállónak, vagy több generációs családi háznak is tökéletesen megfelel.
A ház jó állapotú, szerkezetileg hibátlan! A födém jól szigetelt, ezért a fűtése gazdaságos. A nyílászárók jó állapotúak, és jól működnek. Az ablakokban 2 rétegű thermoplán üvegezés található.
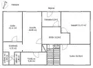
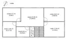
8 db szoba, és 4 darab fürdő várja leendő tulajdonosát.
Hatalmas, étkezővel egybeépített konyha ad teret mind a hétköznapi étkezéseknek, mind a családi összejöveteleknek.
Az alagsorban egy tágas klubhelyiség lett kialakítva, itt egy kandalló is be lett építve, de az üzembe helyezés befejezése, már az új tulajdonosra vár.
A fűtésről, és a melegvízről egy modern gázkazán gondoskodik, hőtárolóval összekötve.
A tatai tó körülbelül negyed óra sétára található. A közelben hipermarketek, iskolák, és minden más fontos intézmény is fellelhető ami a mindennapi élethez szükséges.
Ha felkeltette az érdeklődését az ingatlan, akkor keressen, és nézzük meg együtt, egy előre egyeztetett időpontban.
Hiteligényét bankfüggetlen profi pénzügyi háttérrel tudjuk intézni!

INGATLAN ADATAI

Ingatlan jellege
családi ház
Belső terület
207 m²
Telek terület
321 m²
Tájolás
délkelet
Építési állapot
használt
Építési mód
tégla
Szobák száma
8 szoba
Épület szintje
2.
Épült
kb. 1998
Ingatlan állapot
kívül: jó
belül: jó
Ablak szerkezete
2 rétegű thermoplan
Fűtés
gázkazán
Komfort
összkomfort
Közműállapot
csatorna: bekötve
gáz: bekötve
villany: bekötve
víz: bekötve
Energetika
nincs
Extrák
redőny, szúnyogháló

Hitelkalkulátor


KAPCSOLAT
Papp László
Papp László


+36 70 528 7031

papp.laszlo@komplexingatlan.com

KAPCSOLAT
Papp László

+36 70 528

papp.laszlo@

Az időpont kérés naptár ikonja
IDŐPONTOT KÉREK
A visszahívás kérés telefon ikonja egy azt körbe ölelő nyíllal
VISSZAHÍVÁST KÉREK
Ajánlom egy ismerősömnek ikon
AJÁNLOM EGY ISMERŐSÖMNEK
Facebook megosztás ikon
MEGOSZTÁS

KAPCSOLATFELVÉTEL

Küldés

Az üzenetet sikeresen elküldtük!
Hiba történt!
INGATLAN ADATAI

Ingatlan jellege

családi ház

Belső terület

207 m²

Telek terület

321 m²

Tájolás

délkelet

Építési állapot

használt

Építési mód

tégla

Szobák száma

8 szoba

Épület szintje

2.

Épült

kb. 1998

Ingatlan állapot

kívül: jó
belül: jó

Ablak szerkezete

2 rétegű thermoplan

Fűtés

gázkazán

Komfort

összkomfort

Közműállapot

csatorna: bekötve
gáz: bekötve
villany: bekötve
víz: bekötve

Energetika

nincs

Extrák

redőny, szúnyogháló

Az időpont kérés naptár ikonja
HTML
Az időpont kérés naptár ikonja
PDF

Hasonló ingatlan hírdetések

Eladó családi ház, vagy kertes ház hirdetést keres Tata területén?
Tekintse meg további ajánlatainkat!

eladó új építésű ikerház, Tata

eladó új építésű ikerház

Komárom-Esztergom megye, Tata
Tata, Remeteségben, a Császárkert lakóparkban, pár perces sétára az Öreg-tó partjától, Komplex Ingatlan eladásra kínál új építésű, kulcsrakész ikerházi lakásokat az erdő ölelésében, sorompóval ellátot...
Belső terület
125 m²
Telek terület
1 m²
Szobák
5

129.9 M Ft

eladó családi ház, Tata

eladó családi ház

Komárom-Esztergom megye, Tata, Remeteség
Tata, Remeteségben eladó egy kb. 2 éve teljes körűen, igényesen felújított, tégla építésű, szigetelt családi ház, mely két különálló lakrésszel rendelkezik, ezért több lehetőséget foglal magába. Egyr...
Belső terület
142 m²
Telek terület
359 m²
Szobák
4+1

118 M Ft

eladó családi ház, Tata

eladó családi ház

Komárom-Esztergom megye, Tata
Az eladó családi ház infrastruktúrája kiváló, Tata kedvelt részén található, közel a TESCO-hoz, az autópálya feljáróhoz. Az ingatlan a szobák és mellékhelyiségek számai alapján akár befektetésnek is ...
Belső terület
147 m²
Telek terület
1058 m²
Szobák
5

69.9 M Ft

eladó családi ház, Tata

eladó családi ház

Tata belvárosában, egy igazán különleges ingatlan a Kossuth térnél!

Komárom-Esztergom megye, Tata, Óváros
Kizárólag a Komplex ingatlannál elérhető! Tata Óváros legszebb részén, a Kossuth tér közvetlen közelében egy 79m2 nagyságú, 2 szobás lakóház eladó! Az ingatlan osztatlan közös, ahol 5 különálló lakóé...
Belső terület
79 m²
Telek terület
1288 m²
Szobák
2

36 M Ft

eladó új építésű ikerház, Tata

eladó új építésű ikerház

Tatán a Császárkertben, új építésű ikerház ( 2 db. 125m2-es ingatlan ) kerttel eladó!

Komárom-Esztergom megye, Tata, (Remeteség), Császár Attila u.
CSAK NÁLUNK! Azonnal birtokba vehető! Ha olyan ingatlant keres Tatán az Öreg-tó környékén ahol madárcsicsergés, jó levegő, festői szépségű erdő találkozásának a tökéletes harmóniájában élheti mind...
Belső terület
125 m²
Telek terület
400 m²
Szobák
5

129.9 M Ft

eladó családi ház, Tata

eladó családi ház

Komárom-Esztergom megye, Tata
Ritka lehetőség Tatán – Családi ház a Fürdő utcábanl! Tata egyik legszebb és legrégebbi utcája a Fürdő utca, amelyet napjainkban ismét kezdenek felismerni és elismerni. Az Óváros újjászületése már el...
Belső terület
90 m²
Telek terület
734 m²
Szobák
3

85 M Ft

eladó családi ház, Tata

eladó családi ház

Komárom-Esztergom megye, Tata
NEM TALÁLSZ MEGFELELŐ CSALÁDI HÁZAT TATÁN? VÁSÁROLJ EGY TELJESKÖRŰEN FELÚJÍTOTT, NULLA REZSIKÖLTSÉGŰ OTTHONT TATÁTÓL CSUPÁN 10 KM-RE, NESZMÉLYEN! Ez a modern, energiatakarékos és azonnal költözhető ...
Belső terület
110 m²
Telek terület
1280 m²
Szobák
3

94 M Ft

eladó nyaraló, Tata

eladó nyaraló

Komárom-Esztergom megye, Tata
Horgászoknak!!! Befektetőknek!!!...és a csend és nyugalom szerelmeseinek!!! Eladásra kínálunk Tatán a Derítő tavon egy klímás (hűtő/fűtő) karbantartott, kiváló állapotú, téliesített, szigetelt, két a...
Belső terület
143 m²
Szobák
4
Emelet

34.5 M Ft

Komárom-Esztergom megye - Tata
Komárom-Esztergom megye - Tata
Komárom-Esztergom megye - Tata
Komárom-Esztergom megye - Tata
Komárom-Esztergom megye - Tata
Komárom-Esztergom megye - Tata
Komárom-Esztergom megye - Tata
Komárom-Esztergom megye - Tata
Komárom-Esztergom megye - Tata
Komárom-Esztergom megye - Tata
Komárom-Esztergom megye - Tata
Komárom-Esztergom megye - Tata
Komárom-Esztergom megye - Tata
Komárom-Esztergom megye - Tata
Komárom-Esztergom megye - Tata
Komárom-Esztergom megye - Tata
Komárom-Esztergom megye - Tata
Komárom-Esztergom megye - Tata
Komárom-Esztergom megye - Tata
Komárom-Esztergom megye - Tata
Komárom-Esztergom megye - Tata
Komárom-Esztergom megye - Tata
Komárom-Esztergom megye - Tata
Komárom-Esztergom megye - Tata
Komárom-Esztergom megye - Tata
Komárom-Esztergom megye - Tata
Komárom-Esztergom megye - Tata
Komárom-Esztergom megye - Tata
Komárom-Esztergom megye - Tata
Komárom-Esztergom megye - Tata
Komárom-Esztergom megye - Tata
Komárom-Esztergom megye - Tata
Komárom-Esztergom megye - Tata
Komárom-Esztergom megye - Tata
Komárom-Esztergom megye - Tata
Komárom-Esztergom megye - Tata
Komárom-Esztergom megye - Tata