Eladó ház - Zsámbok

KAPCSOLAT
Otthonszakértő


+36 30 742

hunyas.adrienn@

Az időpont kérés naptár ikonja
IDŐPONTOT KÉREK
A visszahívás kérés telefon ikonja egy azt körbe ölelő nyíllal
VISSZAHÍVÁST KÉREK
Ajánlom egy ismerősömnek ikon
AJÁNLOM EGY ISMERŐSÖMNEK
Facebook megosztás ikon
MEGOSZTÁS

KAPCSOLATFELVÉTEL

Küldés

Az üzenetet sikeresen elküldtük!
Hiba történt!
INGATLAN ADATAI

Ingatlan jellege

családi ház

Belső terület

51 m²

Telek terület

1025 m²

Tájolás

délkelet

Építési állapot

használt

Építési mód

vályog

Szobák száma

3 szoba

Épület szintje

1.

Épült

kb. 1978

Ingatlan állapot

kívül: jó
belül: jó

Ablak szerkezete

2 rétegű thermoplan

Fűtés

gázkonvektor

Komfort

összkomfort

Parkolás

van fedetlen felszíni beálló

Közműállapot

csatorna: bekötve
gáz: bekötve
villany: bekötve
víz: bekötve

Energetika

nincs megadva

Az időpont kérés naptár ikonja
HTML
Az időpont kérés naptár ikonja
PDF
Eladó ház
Ingatlan azonosító:
69_osz

Pest megye, Zsámbok

Irányár

51 M Ft
(1 M Ft/㎡)

Szobák

3 szoba

Terület

51 m²

Telek terület

1025 m²
INGATLAN LEÍRÁSA
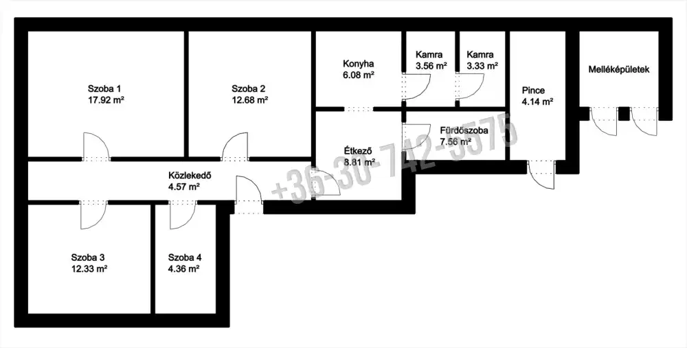
Zsámbokon ritkaság: részben felújított, családi ház nagy telekkel!

Ne maradj le erről a kivételes lehetőségről! Zsámbok csendes, nyugodt részén eladó egy 81,2 m²-es, részben felújított, összkomfortos családi ház, hatalmas, 1025 m²-es telekkel.

Amitől ez az ingatlan igazán értékes:

✔ Új fürdőszoba
✔ Felújított víz- és csatornahálózat
✔ Műanyag nyílászárók
✔ Friss lábazatvakolás
✔ Injektálás elkészült – profi vízszigetelés
✔ Padlásfödém szigetelve
✔ Gáz bevezetve
✔ Fedett terasz + pince
✔ 3 különálló szoba

A komfortért 3 modern hűtő–fűtő klíma felel (2×3,5 kW + 1×2,5 kW), így a fűtés-hűtés rendkívül gazdaságos.

A 1025 m²-es telek hatalmas előnyt jelent: kert, játszótér, medence, garázs vagy akár bővítés – bármi megvalósítható!

Ez a ház azoknak szól, akik nem akarnak felújítással bajlódni, hanem egy olyan otthonba költöznének, ahol minden alapvető munka már elkészült.

Stabil, száraz, kényelmes, energiatakarékos – igazi jó fogás Zsámbokon!

Ha kérdése merülne fel az ingatlannal kapcsolatban, készséggel állunk rendelkezésére. Keressen minket bizalommal!

Háztól függetlenül támogatjuk ügyfeleinket CSOK, CSOK PLUSZ és HITELFELVÉTEL intézésében!
Rajtunk keresztül kedvezőbb feltételekhez juthat a hitelfelvétel során, ráadásul közvetítői díj nélkül!
Emiatt is forduljon hozzánk bizalommal.

INGATLAN ADATAI

Ingatlan jellege
családi ház
Belső terület
51 m²
Telek terület
1025 m²
Tájolás
délkelet
Építési állapot
használt
Építési mód
vályog
Szobák száma
3 szoba
Épület szintje
1.
Épült
kb. 1978
Ingatlan állapot
kívül: jó
belül: jó
Ablak szerkezete
2 rétegű thermoplan
Fűtés
gázkonvektor
Komfort
összkomfort
Parkolás
van fedetlen felszíni beálló
Közműállapot
csatorna: bekötve
gáz: bekötve
villany: bekötve
víz: bekötve
Energetika
nincs megadva
TÉRKÉP

Pest megye, Zsámbok

Hitelkalkulátor


KAPCSOLAT
Otthonszakértő
Otthonszakértő


+36 30 742 5575

hunyas.adrienn@otthonszakerto.hu

KAPCSOLAT
Otthonszakértő

+36 30 742

hunyas.adrienn@

Az időpont kérés naptár ikonja
IDŐPONTOT KÉREK
A visszahívás kérés telefon ikonja egy azt körbe ölelő nyíllal
VISSZAHÍVÁST KÉREK
Ajánlom egy ismerősömnek ikon
AJÁNLOM EGY ISMERŐSÖMNEK
Facebook megosztás ikon
MEGOSZTÁS

KAPCSOLATFELVÉTEL

Küldés

Az üzenetet sikeresen elküldtük!
Hiba történt!
INGATLAN ADATAI

Ingatlan jellege

családi ház

Belső terület

51 m²

Telek terület

1025 m²

Tájolás

délkelet

Építési állapot

használt

Építési mód

vályog

Szobák száma

3 szoba

Épület szintje

1.

Épült

kb. 1978

Ingatlan állapot

kívül: jó
belül: jó

Ablak szerkezete

2 rétegű thermoplan

Fűtés

gázkonvektor

Komfort

összkomfort

Parkolás

van fedetlen felszíni beálló

Közműállapot

csatorna: bekötve
gáz: bekötve
villany: bekötve
víz: bekötve

Energetika

nincs megadva

Az időpont kérés naptár ikonja
HTML
Az időpont kérés naptár ikonja
PDF

Hasonló ingatlan hírdetések

Eladó családi ház, vagy kertes ház hirdetést keres Zsámbok területén?
Tekintse meg további ajánlatainkat!

eladó családi ház, Zsámbok

eladó családi ház

Pest megye, Zsámbok, Kossuth Lajos utca
Zsámbok főutcáján, mégis nyugodt környezetben kínálunk megvételre egy igazán különleges, egyedi hangulatú, 68 m² nettó alapterületű ingatlant. A ház minden részletében a természetes fa melegsége és id...
Belső terület
68 m²
Telek terület
891 m²
Szobák
3

43 M Ft

Pest megye - Zsámbok
Pest megye - Zsámbok
Pest megye - Zsámbok
Pest megye - Zsámbok
Pest megye - Zsámbok