KAPCSOLATFELVÉTEL
Ingatlan jellege
sorház
Belső terület
213 m²
Telek terület
344 m²
Tájolás
délnyugat
Építési állapot
használt
Építési mód
tégla
Szobák száma
5 szoba
Épület szintje
3.
Épült
2002
Ingatlan állapot
kívül: jó
belül: jó
Klíma
van
Fűtés
gázkazán
Komfort
duplakomfort
Közműállapot
csatorna: bekötve
gáz: bekötve
villany: bekötve
víz: bekötve
Energetika
nincs megadva
Pest megye, Szentendre, Sztaravodai utca
Irányár
(1.03 M Ft/㎡)
Szobák
Terület
Telek terület
Az ingatlan már az érkezés pillanatában is exkluzív benyomást kelt: az elektromos kapuval védett lakópark rendezett, igényes környezete, valamint a ház privát, intim kertkapcsolata valódi biztonságot és nyugalmat sugároz. A 344 m²-es saját telekrész ideális méretű ahhoz, hogy kényelmes kültéri életteret biztosítson, miközben könnyen fenntartható marad.
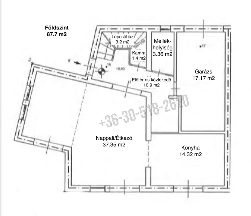
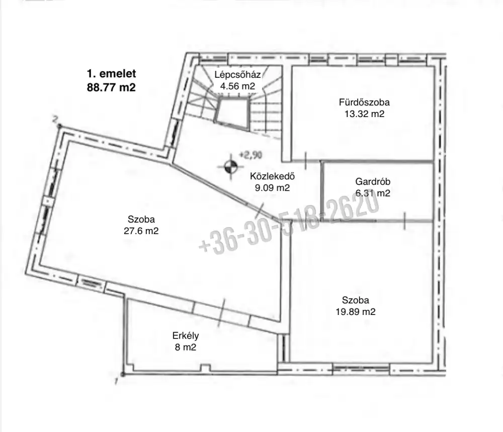
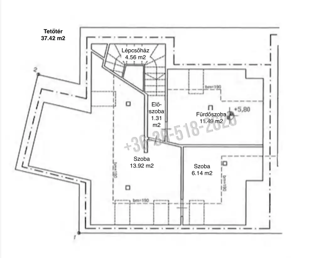
A három szinten elhelyezkedő, közel 214 m²-es lakótér rendkívül átgondolt kialakítású. A földszinten található tágas nappali, étkező és konyha egy légtérben helyezkedik el, amely világos, barátságos központi életteret teremt, tökéletes mind a mindennapi élethez, mind a vendégek fogadásához. Az emeleti és tetőtéri szinteken kialakított hálószobák kényelmes életteret biztosítanak akár nagyobb család számára is, a jelenlegi négy hálószoba mellett további egy szoba is könnyedén kialakítható. A beépített konyhabútor, a praktikus tárolóhelyiségek, valamint a két fürdőszoba és külön mellékhelyiség mind a funkcionalitást erősítik.
Az otthon műszaki tartalma és felszereltsége is a komfortot szolgálja: gázkazán által működtetett központi fűtés padlófűtéssel és radiátorokkal, hűtő/fűtő klímák, hőszigetelt fa nyílászárók redőnyökkel, riasztórendszer, valamint elektromos garázskapu teszik teljessé a mindennapi kényelmet. Az ingatlan 2002-ben épült, de csak 2013-ban költöztek be az első lakói.
A lakópark zárt jellege, az alacsony közös költség, valamint a rendezett környezet egyaránt hozzájárulnak ahhoz, hogy ez az ingatlan valódi prémium életminőséget kínáljon. Elhelyezkedése ideális: Szentendre hangulatos belvárosa könnyen elérhető, miközben a környezet csendes, nyugodt és zöldövezeti. A zárt garázs mellett további kizárólagos parkolók állnak rendelkezésre.
Ez az ingatlan kiváló választás mindazok számára, akik kompromisszumok nélkül keresnek tágas, elegáns és azonnal költözhető otthont egy exkluzív lakókörnyezetben.
Az ingatlan tehermentes, vételára: 219.990.000 Ft.
belül: jó
gáz: bekötve
villany: bekötve
víz: bekötve
Pest megye, Szentendre, Sztaravodai utca
Hitelkalkulátor
+36 30 518 2620
erdosi.tamas.rds@gmail.com
KAPCSOLATFELVÉTEL
Ingatlan jellege
sorház
Belső terület
213 m²
Telek terület
344 m²
Tájolás
délnyugat
Építési állapot
használt
Építési mód
tégla
Szobák száma
5 szoba
Épület szintje
3.
Épült
2002
Ingatlan állapot
kívül: jó
belül: jó
Klíma
van
Fűtés
gázkazán
Komfort
duplakomfort
Közműállapot
csatorna: bekötve
gáz: bekötve
villany: bekötve
víz: bekötve
Energetika
nincs megadva