KAPCSOLATFELVÉTEL
Ingatlan jellege
sorház
Belső terület
97 m²
Telek terület
122 m²
Tájolás
dél
Építési állapot
használt
Építési mód
tégla
Szobák száma
3 szoba
Épület szintje
földszint + tetőteres.
Épült
2025
Ingatlan állapot
kívül: új
belül: új
Klíma
van
Szigetelés
15 cm
Ablak szerkezete
3 rétegű thermoplan
Fűtés
padlófűtés
Komfort
összkomfort
Parkolás
van fedetlen felszíni beálló
Közműállapot
csatorna: bekötve
gáz: bekötve
villany: bekötve
víz: bekötve
Energetika
nincs megadva
Pest megye, Szigetszentmárton
Irányár
(669.07 E Ft/㎡)
Szobák
Terület
Telek terület
Szeretne egy modern, energiatakarékos otthont csendes, zöldövezeti környezetben? Akkor ez a szigetszentmártoni új építésű sorházi lakás tökéletes választás lehet Önnek!
Főbb jellemzők:
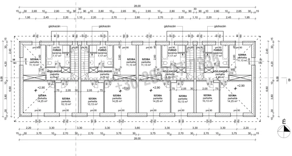
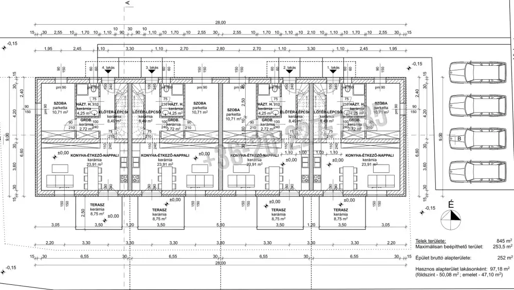
- 97 m² hasznos alapterület – Kényelmes, két szintes elrendezés
- 4 szoba – Ideális családok számára
- Kiváló minőségű építés – Téglafalazat, Silka hanggátló téglafal a lakások között (nincs áthallás!)
- Energihatékony szigetelés – 10 cm lábazati, 10 cm lépésálló aljzati, 15 cm homlokzati, 30 cm födém
- Modern fűtési rendszer – Gázkazán, padlófűtés + nagyteljesítményű hűtő-fűtő klíma
- Prémium nyílászárók – 3 rétegű üvegezésű műanyag ablakok
- telek – 293 m² vagy 122 m²-es, tökéletes kikapcsolódásra
- Térkövezett parkoló – Kényelmes és rendezett környezet
Lakások:
1. lakás: 197nm telekkel - 67,9M ft.- ELADVA
2. lakás: 122nm telekkel - 64,9M ft.-
3. lakás: 122nm telekkel - 64,9M ft.-
4. lakás: 293nm telekkel - 72,9M ft.-
Elhelyezkedés:
Szigetszentmárton Budapesttől mindössze 30 km-re található, könnyen elérhető HÉV-vel, Volánbusszal vagy autóval. A Duna-part közelsége páratlan lehetőséget kínál horgászatra, kirándulásra és pihenésre!
Környék és infrastruktúra:
- Iskola, óvoda, közért, posta, gyógyszertár, orvosi rendelő, autószerviz, virágüzlet és szépségszalon a közelben
- Hajókikötő és szabadstrand a Duna-parton
- Zöldövezeti, családbarát környezet, összetartó közösség
CSOK IGÉNYBE VEHETŐ!
Ne maradjon le erről a fantasztikus lehetőségről! Keressen bizalommal további információért és megtekintésért!
belül: új
gáz: bekötve
villany: bekötve
víz: bekötve
Pest megye, Szigetszentmárton
Hitelkalkulátor

+36 20 227 7335
b.ilonakinga@gmail.com
KAPCSOLATFELVÉTEL
Ingatlan jellege
sorház
Belső terület
97 m²
Telek terület
122 m²
Tájolás
dél
Építési állapot
használt
Építési mód
tégla
Szobák száma
3 szoba
Épület szintje
földszint + tetőteres.
Épült
2025
Ingatlan állapot
kívül: új
belül: új
Klíma
van
Szigetelés
15 cm
Ablak szerkezete
3 rétegű thermoplan
Fűtés
padlófűtés
Komfort
összkomfort
Parkolás
van fedetlen felszíni beálló
Közműállapot
csatorna: bekötve
gáz: bekötve
villany: bekötve
víz: bekötve
Energetika
nincs megadva