Eladó újszerű téglalakás - Budapest, IX. kerület

Újszerű!
Újszerű
KAPCSOLAT
Barsi Judit


+36 30 691 0

barsi.judit@

Az időpont kérés naptár ikonja
IDŐPONTOT KÉREK
A visszahívás kérés telefon ikonja egy azt körbe ölelő nyíllal
VISSZAHÍVÁST KÉREK
Ajánlom egy ismerősömnek ikon
AJÁNLOM EGY ISMERŐSÖMNEK
Facebook megosztás ikon
MEGOSZTÁS

KAPCSOLATFELVÉTEL

Küldés

Az üzenetet sikeresen elküldtük!
Hiba történt!
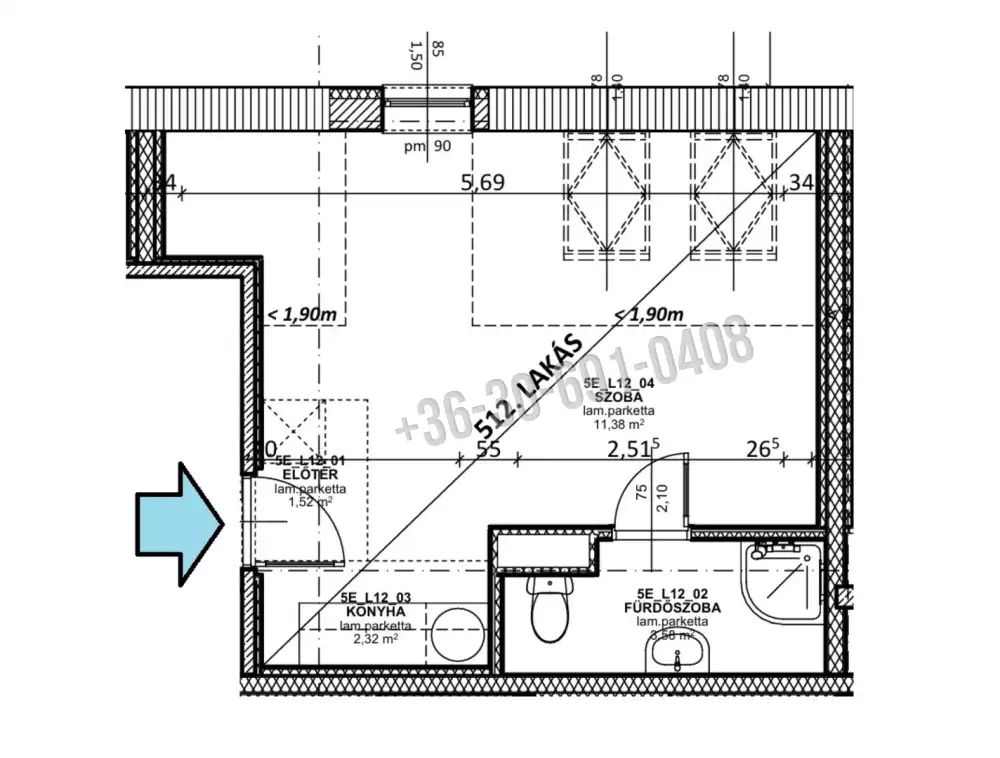
INGATLAN ADATAI

Ingatlan jellege

téglalakás

Belső terület

24 m²

Tájolás

délkelet

Építési állapot

újszerű

Építési mód

tégla

Szobák száma

1 szoba

Kert

(közös kerthasználat)

Erkély

1 m²

Emelet

5.

Az ingatlan a legfelső szinten van.

Épület szintje

5.

Épült

2017

Lift

van

Ingatlan állapot

kívül: újszerű
belül: újszerű

Szigetelés

10 cm

Ablak szerkezete

2 rétegű thermoplan

Fűtés

központi fűtés

Komfort

összkomfort

Parkolás

van teremgarázs

Kilátás

utcára

Energetika

B 2024:

Az időpont kérés naptár ikonja
HTML
Az időpont kérés naptár ikonja
PDF
Eladó újszerű téglalakás
Ingatlan azonosító:
1597_ujei

Budapest, IX. kerület, Telepy

Irányár

41.5 M Ft
(1.73 M Ft/㎡)

Szobák

1 szoba

Emelet

5

Terület

24 m²
INGATLAN LEÍRÁSA
A 9. kerületben, a Telepy utcában eladó, jogilag új építésűnek minősülő, 5 emeletes, SZIGETELT, liftes épületben 80 db lakás. (Már kb. a 80%-át megvették. De még kb. 15 db lakás közül választhat!)

Vannak még 1 SZOBÁS,
- 24 m2 + 6 m2 erélyes,
- 27 m2 + 6 m2 erkélyes,
- 27 m2-es erkély nélküli és
- tetőtéri (22-26 m2) erkély nélküli lakások.
(A legkisebb, legkedvezőbb árú lakás, 22 m2-es a tetőtérben és az ára 38,1 M Ft.)

...és vannak még 1+1 SZOBÁS
- 39-40 m2-es erkély nélküli, és
- 42-43 m2 + 3 m2 erkéllyel rendelkező lakások.

A lakások m2 árai különbözőek.
A házban a teremgarázsban kocsibeállók és a felső emeleteken kis tárolók is eladók.

Fizikailag 8 éve épült a ház bérbeadási céllal és 2025 elejéig bérbe is volt adva minden egyes apartman. Eddig egy helyrajzi számon volt az egész épület, de az év elején elindult egy többlépcsős folyamat, aminek köszönhetően most már 80 db "lakás" van ebben az épületben, megkapták a HASZNÁLATBAVÉTELI ENGEDÉLYT, és szeptemberre ÖNÁLLÓ HELYRAJZI SZÁMMAL fognak rendelkezni. (Ezért minősülnek jogilag új építésűnek, és így az ár 5% áfát tartalmaz.)

Ráadásul AZ ÖN ÍZLÉSE SZERINT, frissen FELÚJÍTVA vásárolhatóak meg a lakások.
(Azért kerülnek felújításra, mert eddig nem voltak lakásonként mérőórák, és pl. az új vízórák miatt a fürdőszobákat mindenképp "szét kell verni".)
Mivel néhány éve épült, így nincs szükség arra, hogy a villanyvezetékeket, a vízcsöveket, ablakokat, radiátorokat cseréljék. De az összes burkolat, az ajtók, és a szaniterek is cserélve lesznek az ön által kért módon.
AZ ÁR A FRISSEN FELÚJÍTOTT INGATLANRA ÉRTENDŐ.

MINTALAKÁSKÉNT 2 DB FELÚJÍTÁSRA KERÜLT.
A műszaki leírás tartalmazza, hogy milyen összegig van benne a felújítás az árban.
Pl. laminált padló 6.500 Ft/m2-ig, fürdőszobai padló és falburkolat 10.000 Ft/m2 árig, stb.

Van egy nagy méretű BELSŐ UDVAR is, amit közösen használhatnak a lakók. Így ha ön olyan lakást vesz, aminek nincs erkélye, akkor is ki tud menni a szabad levegőre anélkül, hogy az utcára ki kellene lépnie. Ráadásul a 4. emeleten még egy közös erkély is helyet kapott. Azoknak a dohányzó embereknek, akik erkély nélküli lakást vesznek, ez biztosan nagy segítség. Majdnem olyan mintha saját erkélye lenne.

A lakások nem egy szűk kis sötét utcára néznek, hanem tágas térre, a Telepy utca és a Haller utca találkozásánál lévő kis parkosított részre, így NAGYON VILÁGOS LAKÁSOK.

A fűtés házközponti, radiátorokon keresztül ad meleget, és a vízmelegítést is a központi kazán végzi.
Légkondicionáló nincs.
Konyhabútor nincs benne az árban.
A közös költség 600 Ft/m2.
A LAKÁSOK ÁTADÁSA AZ ŐSZ FOLYAMÁN FOG MEGTÖRTÉNNI. Szeptembertől november végéig.

A Nagyvárad téri metró 5-8 perc sétára van. Ugyanígy közel vannak az orvosi egyetem, a közszolgálati egyetem a Semmelweis kórház.

A földszinten eladó még 2 db utcafronti üvegportálos ingatlan is, ami jogilag tároló, de fizikailag üzlethelyiség/iroda/lakás kialakítású. (Végezhető benne hivatalosan kereskedelmi és szolgáltató tevékenység is.) Mindkét tároló 62 m2, és a m2 áruk nettó 945.000 Ft, bruttó 1.200.000 Ft. Azaz ezek 27% áfát tartalmaznak. Tehát nettó 58,6 M Ft, bruttó 74,4 M Ft az áruk.

Élőben meg tudom mutatni a felújított mintalakásokat is és bármelyik eladó lakást is. Ez utóbbiaknál még hozzá kell képzelni a felújítást az ön által választott burkolatokkal.

Ha érdekli, akkor hívjon akár az esti órákban, vagy akár hétvégén is!

INGATLAN ADATAI

Ingatlan jellege
téglalakás
Belső terület
24 m²
Tájolás
délkelet
Építési állapot
újszerű
Építési mód
tégla
Szobák száma
1 szoba
Kert
(közös kerthasználat)
Erkély
1 m²
Emelet
5.
Az ingatlan a legfelső szinten van.
Épület szintje
5.
Épült
2017
Lift
van
Ingatlan állapot
kívül: újszerű
belül: újszerű
Szigetelés
10 cm
Ablak szerkezete
2 rétegű thermoplan
Fűtés
központi fűtés
Komfort
összkomfort
Parkolás
van teremgarázs
Kilátás
utcára
Energetika
B 2024:
TÉRKÉP

Budapest, IX. kerület, Telepy

Hitelkalkulátor


KAPCSOLAT
Barsi Judit
Barsi Judit


+36 30 691 0408

barsi.judit@gmail.com

KAPCSOLAT
Barsi Judit

+36 30 691 0

barsi.judit@

Az időpont kérés naptár ikonja
IDŐPONTOT KÉREK
A visszahívás kérés telefon ikonja egy azt körbe ölelő nyíllal
VISSZAHÍVÁST KÉREK
Ajánlom egy ismerősömnek ikon
AJÁNLOM EGY ISMERŐSÖMNEK
Facebook megosztás ikon
MEGOSZTÁS

KAPCSOLATFELVÉTEL

Küldés

Az üzenetet sikeresen elküldtük!
Hiba történt!
INGATLAN ADATAI

Ingatlan jellege

téglalakás

Belső terület

24 m²

Tájolás

délkelet

Építési állapot

újszerű

Építési mód

tégla

Szobák száma

1 szoba

Kert

(közös kerthasználat)

Erkély

1 m²

Emelet

5.

Az ingatlan a legfelső szinten van.

Épület szintje

5.

Épült

2017

Lift

van

Ingatlan állapot

kívül: újszerű
belül: újszerű

Szigetelés

10 cm

Ablak szerkezete

2 rétegű thermoplan

Fűtés

központi fűtés

Komfort

összkomfort

Parkolás

van teremgarázs

Kilátás

utcára

Energetika

B 2024:

Az időpont kérés naptár ikonja
HTML
Az időpont kérés naptár ikonja
PDF

Hasonló ingatlan hírdetések

Eladó újszerű tégla-, vagy panellakás hirdetést keres Budapesten a IX. kerületben?
Tekintse meg további ajánlatainkat!

eladó téglalakás, Budapest, IX. kerület

eladó téglalakás

Budapest, IX. kerület, Ferencváros-Belváros, Hőgyes Endre u.
Eladó a Hőgyes Endre utcában egy 20 nm-es jó állapotú, szuterén lakás. Az ingatlan két jó minőségű, utcára néző, új műanyag ablakkal rendelkezik. A fürdőszobában sarokkád található, a meleg vizet az o...
Belső terület
20 m²
Szobák
1
Emelet
szuterén

24.9 M Ft

eladó téglalakás, Budapest, IX. kerület

eladó téglalakás

Eladó exkluzív lakás saját kerttel Ferencváros megújult részén

Budapest, IX. kerület, Középső-Ferencváros
Eladó exkluzív lakás saját kerttel Ferencváros megújult részén – igazi ritkaság a piacon! A 9. kerület legdinamikusabban fejlődő részén, a Lenhossék utcában kínálunk megvételre egy valóban páratlan...
Belső terület
78 m²
Szobák
3
Emelet
félemelet

129 M Ft

eladó téglalakás, Budapest, IX. kerület

eladó téglalakás

Eladó 1 szobás, jó állapotú lakás a Lónyay utcában

Budapest, IX. kerület, Ferencváros-Belváros, Lónyay u.
Eladó 1 szobás, jó állapotú lakás a Lónyay utcában – szecessziós házban, lifttel! ELADÓ a IX. kerületben, a közkedvelt Lónyay utcában, egy gyönyörűen karbantartott, szecessziós stílusú, liftes tégl...
Belső terület
33 m²
Szobák
1
Emelet
3

51.9 M Ft

eladó téglalakás, Budapest, IX. kerület

eladó téglalakás

Eladó lakás Budapest szívében, a IX. kerületben, Középső-Ferencvárosban

Budapest, IX. kerület, Középső-Ferencváros
Modern téglalakás Budapest központjában, kiváló közlekedéssel! A Középső-Ferencváros közkedvelt részén kínálom eladásra ezt a 4. emeleti 57 m2-es lakást, mely remek választás mind otthonteremtésre, mi...
Belső terület
54 m²
Szobák
2
Emelet
4

102.6 M Ft

eladó téglalakás, Budapest, IX. kerület

eladó téglalakás

Budapest, IX. kerület,
A 9. kerületben, a Telepy utcában eladó, jogilag új építésűnek minősülő, 5 emeletes, SZIGETELT, liftes épületben 80 db lakás. (Már kb. a 80%-át megvették. De még kb. 15 db lakás közül választhat!) ...
Belső terület
27 m²
Szobák
1
Emelet
4

50 M Ft

eladó téglalakás, Budapest, IX. kerület

eladó téglalakás

Budapest, IX. kerület,
A 9. kerületben, a Telepy utcában eladó, jogilag új építésűnek minősülő, 5 emeletes, SZIGETELT, liftes épületben 80 db lakás. (Már kb. a 80%-át megvették. De még kb. 15 db lakás közül választhat!) ...
Belső terület
30 m²
Szobák
1
Emelet
3

55.5 M Ft

Új építésű!
Új építésű
eladó téglalakás, Budapest, IX. kerület

eladó téglalakás

BUDAPEST 09. KERÜLET KÖZPONTI RÉSZÉN, A JÓZSEF ATTILA LAKÓTELEPEN, MINDENHEZ IS KÖZEL, MEGVÉTELRE KÍNÁLUNK EGY 2 SZOBÁS, KÖZEPES ÁLLAPOTÚ, PANORÁMÁS SALAKBETON ÉPÍTÉSŰ LAKÁST!!

Budapest, IX. kerület, József Attila ltp., Dési Huber u.
BUDAPEST 09. KERÜLET KÖZPONTI RÉSZÉN, CSENDES KÖRNYEZETBEN, BUDAPEST BELVÁROSÁHOZ KÖZEL, MÉGIS A ZAJOKTÓL TÁVOL, A JÓZSEF ATTILA LAKÓTELEPEN, MEGVÉTELRE KÍNÁLUNK EGY 2 SZOBÁS, KÖZEPES ÁLLAPOTÚ, PANORÁ...
Belső terület
54 m²
Szobák
1+1
Emelet
9

62 M Ft

59.9 M Ft

akciós ár
Akciós
eladó téglalakás, Budapest, IX. kerület

eladó téglalakás

Álomotthon a megújult Ferencvárosban!

Budapest, IX. kerület, Középső-Ferencváros, Viola u.
Álomotthon a megújult Ferencvárosban! Eladó a IX. kerület szívében, a megújult Ferencváros egyik csendes, zöld utcájában, a Viola utcában ez a 75 négyzetméteres, újszerű állapotú, világos és szép k...
Belső terület
75 m²
Szobák
2
Emelet
3

110 M Ft

Budapest, IX. kerület - Rehabilitációs terület
Budapest, IX. kerület - Rehabilitációs terület
Budapest, IX. kerület - Rehabilitációs terület
Budapest, IX. kerület - Rehabilitációs terület
Budapest, IX. kerület - Rehabilitációs terület
Budapest, IX. kerület - Rehabilitációs terület
Budapest, IX. kerület - Rehabilitációs terület
Budapest, IX. kerület - Rehabilitációs terület
Budapest, IX. kerület - Rehabilitációs terület
Budapest, IX. kerület - Rehabilitációs terület
Budapest, IX. kerület - Rehabilitációs terület
Budapest, IX. kerület - Rehabilitációs terület
Budapest, IX. kerület - Rehabilitációs terület
Budapest, IX. kerület - Rehabilitációs terület
Budapest, IX. kerület - Rehabilitációs terület
Budapest, IX. kerület - Rehabilitációs terület
Budapest, IX. kerület - Rehabilitációs terület
Budapest, IX. kerület - Rehabilitációs terület
Budapest, IX. kerület - Rehabilitációs terület
Budapest, IX. kerület - Rehabilitációs terület
Budapest, IX. kerület - Rehabilitációs terület
Budapest, IX. kerület - Rehabilitációs terület
Budapest, IX. kerület - Rehabilitációs terület
Budapest, IX. kerület - Rehabilitációs terület
Budapest, IX. kerület - Rehabilitációs terület
Budapest, IX. kerület - Rehabilitációs terület
Budapest, IX. kerület - Rehabilitációs terület
Budapest, IX. kerület - Rehabilitációs terület
Budapest, IX. kerület - Rehabilitációs terület
Budapest, IX. kerület - Rehabilitációs terület
Budapest, IX. kerület - Rehabilitációs terület
Budapest, IX. kerület - Rehabilitációs terület
^