Eladó téglalakás - Budapest, XI. kerület

KAPCSOLAT
Vargáné Polyakovszky Andrea


+36 30 366

avitekingatlan@

Az időpont kérés naptár ikonja
IDŐPONTOT KÉREK
A visszahívás kérés telefon ikonja egy azt körbe ölelő nyíllal
VISSZAHÍVÁST KÉREK
Ajánlom egy ismerősömnek ikon
AJÁNLOM EGY ISMERŐSÖMNEK
Facebook megosztás ikon
MEGOSZTÁS

KAPCSOLATFELVÉTEL

Küldés

Az üzenetet sikeresen elküldtük!
Hiba történt!
INGATLAN ADATAI

Ingatlan jellege

téglalakás

Belső terület

56 m²

Tájolás

kelet

Építési állapot

használt

Építési mód

tégla

Szobák száma

2 szoba

Erkély

6 m²

Emelet

2.

Épület szintje

3.

Lift

nincs

Ingatlan állapot

kívül: jó
belül: jó

Klíma

van

Fűtés

cirko

Komfort

összkomfort

Kilátás

utcára

Energetika

nincs megadva

Az időpont kérés naptár ikonja
HTML
Az időpont kérés naptár ikonja
PDF
Eladó téglalakás
Ingatlan azonosító:
222_at

Budapest, XI. kerület, Gellért-hegy

Irányár

120 M Ft
(2.14 M Ft/㎡)

Szobák

2 szoba

Emelet

2

Terület

56 m²
INGATLAN LEÍRÁSA
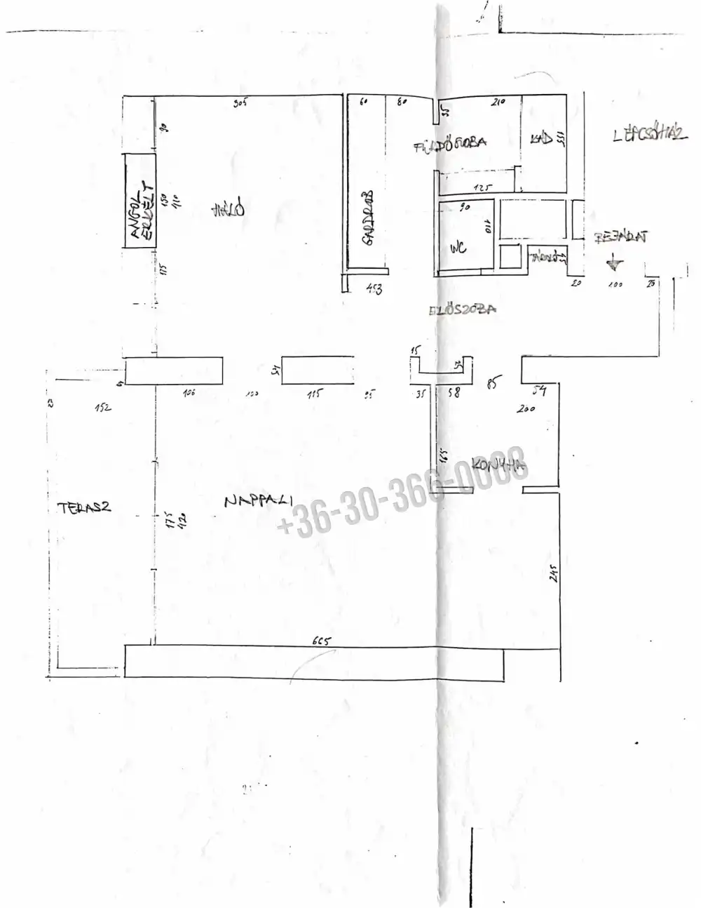
Bp., 11. ker., GELLÉRT-HEGYEN napfényes ERKÉLYES lakás eladó KEDVEZŐ ÁRON
For English, please, switch
- CITADELLA mellett, csendes zöldövezet
- LEGFELSŐ emelet, ERKÉLY
- légkondi, kandalló
- 2 külön bejáratú szoba
Bp., 11.ker. GELLÉRT-hegyen, CITADELLA közelében, GYULA utcában, CSENDES, zöldövezeti mellékutcában 56 nm-es, 7 nm ERKÉLYES, nappali + 1 hálószobás, 2. emeleti, keleti fekvésű, LÉGKONDIS, zöldre néző, jó állapotú lakás eladó.
A LEGFELSŐ emeleti, VILÁGOS lakás ablakaiból gyönyörű kilátás nyílik a CSENDES, zöld környezetre. Az amerikai konyhás nappali keleti fekvésű, az egész falat betöltő üveg teraszajtón keresztül a 7 nm-es erkélyre léphetünk ki, ahonnan részleges panoráma nyílik.
A külön bejáratú hálószoba és nappali között fatüzelésű KANDALLÓ biztosítja a hideg napokon a meleget és a hangulatot, egyszerre mindkét helyiségben.
Beépített szekrények biztosítanak helyet a tárolásra.
A konyha beépített szekrényekkel, gáztűzhellyel, sütővel, elszívóval, mosogatógéppel felszerelt.
A fürdőszoba KÁDAS, a wc külön helyiségben található.
Videóbejárás, alaprajz megtekinthető a hirdetésben.
15 éve a fűtésrendszer, vezetékek és ablakok cseréje megtörtént, dupla rétegű, fa ablakok kerültek beszerelésre. A fűtést 1 éves cirkó kazán biztosítja radiátorokkal. Mindkét szobában 1 éves hűtő-fűtő légkondicionáló működik.
Az 1980-as években épült, 12 lakásos társasház leszigetelt, folyamatosan karbantartott. Lift nem található benne. A közös költség 14 000 Ft.
Parkolás az utcán, fizetős övezet, helyi lakosok éves lakossági díj fejében ingyen parkolhatnak.
A tömegközlekedés kiváló: sétatávolságra elérhető a 27-es busz megállója a Móricz Zs. körtér ill. a Hegyalja út felé.
Befektetésnek is kiváló, mert könnyen kiadható, értékálló ingatlan.
Remek szabadidős programokat nyújtanak a közeli kirándulóhelyek, Citadella.
Ideális választás azoknak, akik zöldövezetben szeretnének lakni, de a városi infrastruktúra előnyeiről sem szeretnének lemondani.
Ár: 120 millió Ft, tehermentes
+36 30 366 0068 (whatsapp, viber is)
Várom megtisztelő érdeklődését akár hétvégén is.
You can contact me in English as well even in the weekends.

INGATLAN ADATAI

Ingatlan jellege
téglalakás
Belső terület
56 m²
Tájolás
kelet
Építési állapot
használt
Építési mód
tégla
Szobák száma
2 szoba
Erkély
6 m²
Emelet
2.
Épület szintje
3.
Lift
nincs
Ingatlan állapot
kívül: jó
belül: jó
Klíma
van
Fűtés
cirko
Komfort
összkomfort
Kilátás
utcára
Energetika
nincs megadva
TÉRKÉP

Budapest, XI. kerület, Gellért-hegy

Hitelkalkulátor


KAPCSOLAT
Vargáné Polyakovszky Andrea
Vargáné Polyakovszky Andrea


+36 30 366 0068

avitekingatlan@gmail.com

KAPCSOLAT
Vargáné Polyakovszky Andrea

+36 30 366

avitekingatlan@

Az időpont kérés naptár ikonja
IDŐPONTOT KÉREK
A visszahívás kérés telefon ikonja egy azt körbe ölelő nyíllal
VISSZAHÍVÁST KÉREK
Ajánlom egy ismerősömnek ikon
AJÁNLOM EGY ISMERŐSÖMNEK
Facebook megosztás ikon
MEGOSZTÁS

KAPCSOLATFELVÉTEL

Küldés

Az üzenetet sikeresen elküldtük!
Hiba történt!
INGATLAN ADATAI

Ingatlan jellege

téglalakás

Belső terület

56 m²

Tájolás

kelet

Építési állapot

használt

Építési mód

tégla

Szobák száma

2 szoba

Erkély

6 m²

Emelet

2.

Épület szintje

3.

Lift

nincs

Ingatlan állapot

kívül: jó
belül: jó

Klíma

van

Fűtés

cirko

Komfort

összkomfort

Kilátás

utcára

Energetika

nincs megadva

Az időpont kérés naptár ikonja
HTML
Az időpont kérés naptár ikonja
PDF

Hasonló ingatlan hírdetések

Eladó tégla-, vagy panellakás hirdetést keres Budapesten a XI. kerületben?
Tekintse meg további ajánlatainkat!

eladó téglalakás, Budapest, XI. kerület

eladó téglalakás

Budapest, XI. kerület, Gellért-hegy
XI. kerület, Gellérthegy – belső kétszintes, kertkapcsolatos lakás különálló épületben A Gellérthegy belső, csendes részén, a Gombócz Zoltán utcában eladó egy nettó 187 nm-es, belső kétszintes társ...
Belső terület
187 m²
Szobák
4
Emelet
földszint

359 M Ft

eladó téglalakás, Budapest, XI. kerület

eladó téglalakás

Budapest, XI. kerület, Műegyetem környéke
XI. kerület egyik legkeresettebb, legfrekventáltabb részén, az ALLÉ bevásárlóközpont és az egyetemek közvetlen közelében, a Duna-part mellett eladó egy jó adottságú, földszinti, zárt lépcsőházból nyíl...
Belső terület
68 m²
Szobák
3
Emelet
földszint

89.5 M Ft

eladó téglalakás, Budapest, XI. kerület

eladó téglalakás

Budapest, XI. kerület, Kelenföld, Budafoki út
MÉRNÖKÖK HÁZÁBAN A BME MELLETT IMPOZÁNS NAGYPOLGÁRI LAKÁS ELADÓ 4 KÜLÖN BEJÁRATÚ SZOBA Közvetlen a BME mellett Budafoki úton, 1927-ben Fischer József tervei alapján épült impozáns 5 emeletes, li...
Belső terület
113 m²
Szobák
4
Emelet
4

170 M Ft

eladó téglalakás, Budapest, XI. kerület

eladó téglalakás

Budapest, XI. kerület, Lágymányos, Irinyi József u.
Világos, erkélyes lakás eladó Lágymányoson – Irinyi József utcában Budapest XI. kerületében, Lágymányos közkedvelt részén, az Irinyi József utcában eladó egy 4. emeleti, 77 m²-es, 2 szoba + hallos,...
Belső terület
77 m²
Szobák
2
Emelet
4

115 M Ft

eladó új építésű téglalakás, Budapest, XI. kerület

eladó új építésű téglalakás

ÚJ ÉPÍTÉSŰ, ERKÉLYES 2 SZOBÁS LAKÁS AZ KELENFÖLDÖN

Budapest, XI. kerület,
Etele Square – Fenntartható luxus és értékállóság Kelenföld szívében (Átadás: 2026. október). Szeretne egy olyan otthonba költözni, ahol a jövő technológiája találkozik Budapest legdinamikusabb l...
Belső terület
45 m²
Szobák
2
Emelet
1

73.36 M Ft

Új építésű!
Új építésű
eladó új építésű téglalakás, Budapest, XI. kerület

eladó új építésű téglalakás

Budapest, XI. kerület
ÚJ ÉPÍTÉSŰ, ERKÉLYES 3 SZOBÁS LAKÁS AZ ETELE ÚTON – XI. KERÜLET Családi kényelem és fenntarthatóság Kelenföldön! Eladó egy kiváló elosztású, 63 m²-es, nappali + 2 hálószobás új építésű lakás az Ete...
Belső terület
63 m²
Szobák
3
Emelet
2

110.4 M Ft

Új építésű!
Új építésű
eladó új építésű téglalakás, Budapest, XI. kerület

eladó új építésű téglalakás

ÚJ ÉPÍTÉSŰ, ERKÉLYES 2 SZOBÁS LAKÁS AZ ETELE ÚTON – XI. KERÜLET - KELENFÖLD

Budapest, XI. kerület
ÚJ ÉPÍTÉSŰ, ERKÉLYES 2 SZOBÁS LAKÁS AZ ETELE ÚTON – XI. KERÜLET Eladó modern, kiváló elosztású, 52 m²-es, 2 szobás, erkélyes lakás a XI. kerület egyik legkeresettebb részén, az Etele út közelében, ...
Belső terület
52 m²
Szobák
2
Emelet
1

94 M Ft

Új építésű!
Új építésű
eladó téglalakás, Budapest, XI. kerület

eladó téglalakás

Újbuda Központban

Budapest, XI. kerület, Körösy József u.
Bp. XI. Allee főbejáratával szemben erkélyes panorámás lakás eladó! Legfelső emeleten lévő a városra és a hegyekre panorámás 47 m2-es és 1,5 szobás távfűtéses tégla társasházi lakás az Allee bevásárl...
Belső terület
47 m²
Szobák
1+1
Emelet
6

81.9 M Ft

Panorámás!
Panorámás
Budapest, XI. kerület - Gellért-hegy
Budapest, XI. kerület - Gellért-hegy
Budapest, XI. kerület - Gellért-hegy
Budapest, XI. kerület - Gellért-hegy
Budapest, XI. kerület - Gellért-hegy
Budapest, XI. kerület - Gellért-hegy
Budapest, XI. kerület - Gellért-hegy
Budapest, XI. kerület - Gellért-hegy
Budapest, XI. kerület - Gellért-hegy
Budapest, XI. kerület - Gellért-hegy
Budapest, XI. kerület - Gellért-hegy
Budapest, XI. kerület - Gellért-hegy
Budapest, XI. kerület - Gellért-hegy
Budapest, XI. kerület - Gellért-hegy
Budapest, XI. kerület - Gellért-hegy
Budapest, XI. kerület - Gellért-hegy
Budapest, XI. kerület - Gellért-hegy