Eladó téglalakás - Budapest, XVI. kerület

KAPCSOLAT
Otthonszakértő


+36 30 742

hunyas.adrienn@

Az időpont kérés naptár ikonja
IDŐPONTOT KÉREK
A visszahívás kérés telefon ikonja egy azt körbe ölelő nyíllal
VISSZAHÍVÁST KÉREK
Ajánlom egy ismerősömnek ikon
AJÁNLOM EGY ISMERŐSÖMNEK
Facebook megosztás ikon
MEGOSZTÁS

KAPCSOLATFELVÉTEL

Küldés

Az üzenetet sikeresen elküldtük!
Hiba történt!
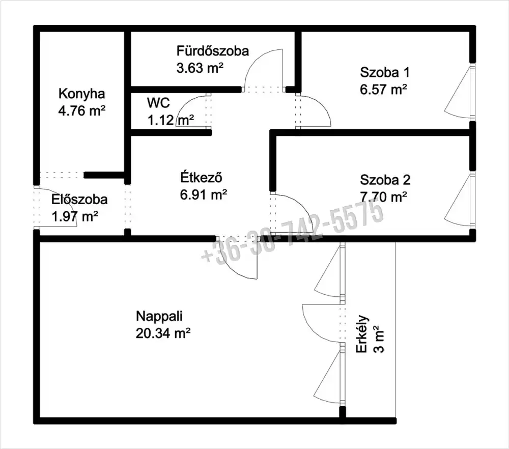
INGATLAN ADATAI

Ingatlan jellege

téglalakás

Belső terület

56 m²

Tájolás

kelet

Építési állapot

használt

Építési mód

tégla

Szobák száma

1+2 félszoba

Emelet

2.

Épület szintje

4.

Épült

1978

Lift

nincs

Ingatlan állapot

kívül: jó
belül: jó

Klíma

van

Fűtés

gázkonvektor

Komfort

összkomfort

Kilátás

utcára

Energetika

nincs megadva

Az időpont kérés naptár ikonja
HTML
Az időpont kérés naptár ikonja
PDF
Eladó téglalakás
Belső azonosító:
HA
Ingatlan azonosító:
96_osz

Budapest, XVI. kerület, Újmátyásföld - Centenáriumi lakótelep

Irányár

79.9 M Ft + Áfa
(1.43 M Ft/㎡) + Áfa

Szobák

1+2 félszoba

Emelet

2

Terület

56 m²
INGATLAN LEÍRÁSA
Budapest XVI. kerületében, csendes, rendezett környezetben kínálok megvételre egy 56 m2-es, 1+2 fél szobás, jó állapotú lakást, amely ideális választás lehet akár saját otthonnak, akár befektetésnek.

A lakás praktikus elrendezésének köszönhetően minden helyiség jól kihasználható, a terek élhetőek és világosak.

Főbb jellemzők:
- 1978-ban épült, tégla szerkezet
- jó állapot
- 10 éve felújított elektromos hálózat
- egyedi fűtés
- légkondicionáló
- 2. emeleti
- a tető szigetelt
- redőny, reluxa és szúnyogháló
- jó lakóközösség
- saját tároló
- zárt gondozott kert használat

A lakás ideális választás lehet családoknak, pároknak vagy akár befektetőknek is, akik egy stabil, jól kiadható ingatlant keresnek Budapest egyik kedvelt kertvárosi részén.

Ha egy olyan lakást keresel, ahol már a beköltözésre koncentrálhatsz, ne hagyd ki ezt a lehetőséget!

--------------------

Háztól függetlenül támogatjuk ügyfeleinket CSOK, CSOK PLUSZ és HITELFELVÉTEL intézésében!
Rajtunk keresztül kedvezőbb feltételekhez juthat a hitelfelvétel során, ráadásul közvetítői díj nélkül!
Emiatt is forduljon hozzánk bizalommal.

INGATLAN ADATAI

Ingatlan jellege
téglalakás
Belső terület
56 m²
Tájolás
kelet
Építési állapot
használt
Építési mód
tégla
Szobák száma
1+2 félszoba
Emelet
2.
Épület szintje
4.
Épült
1978
Lift
nincs
Ingatlan állapot
kívül: jó
belül: jó
Klíma
van
Fűtés
gázkonvektor
Komfort
összkomfort
Kilátás
utcára
Energetika
nincs megadva
TÉRKÉP

Budapest, XVI. kerület, Újmátyásföld - Centenáriumi lakótelep

Hitelkalkulátor


KAPCSOLAT
Otthonszakértő
Otthonszakértő


+36 30 742 5575

hunyas.adrienn@otthonszakerto.hu

KAPCSOLAT
Otthonszakértő

+36 30 742

hunyas.adrienn@

Az időpont kérés naptár ikonja
IDŐPONTOT KÉREK
A visszahívás kérés telefon ikonja egy azt körbe ölelő nyíllal
VISSZAHÍVÁST KÉREK
Ajánlom egy ismerősömnek ikon
AJÁNLOM EGY ISMERŐSÖMNEK
Facebook megosztás ikon
MEGOSZTÁS

KAPCSOLATFELVÉTEL

Küldés

Az üzenetet sikeresen elküldtük!
Hiba történt!
INGATLAN ADATAI

Ingatlan jellege

téglalakás

Belső terület

56 m²

Tájolás

kelet

Építési állapot

használt

Építési mód

tégla

Szobák száma

1+2 félszoba

Emelet

2.

Épület szintje

4.

Épült

1978

Lift

nincs

Ingatlan állapot

kívül: jó
belül: jó

Klíma

van

Fűtés

gázkonvektor

Komfort

összkomfort

Kilátás

utcára

Energetika

nincs megadva

Az időpont kérés naptár ikonja
HTML
Az időpont kérés naptár ikonja
PDF

Hasonló ingatlan hírdetések

Eladó tégla-, vagy panellakás hirdetést keres Budapesten a XVI. kerületben?
Tekintse meg további ajánlatainkat!

eladó téglalakás, Budapest, XVI. kerület

eladó téglalakás

Budapest, XVI. kerület, Cinkota – Honfoglalás lakópark
MODERN, ENERGIATAKARÉKOS APARTMANHÁZ A KERTVÁROSBAN! Eladó 3 éves újszerű 70 m²-es nappali + 3 szobas erkélyes lakás a Csabaliget Centerben! Árpádföld zöldövezeti részén, a 16. kerületben eladó...
Belső terület
70 m²
Szobák
4
Emelet
1

105 M Ft

árcsökkenés!
Árcsökkenés
Budapest, XVI. kerület - Újmátyásföld - Centenáriumi lakótelep
Budapest, XVI. kerület - Újmátyásföld - Centenáriumi lakótelep
Budapest, XVI. kerület - Újmátyásföld - Centenáriumi lakótelep
Budapest, XVI. kerület - Újmátyásföld - Centenáriumi lakótelep
Budapest, XVI. kerület - Újmátyásföld - Centenáriumi lakótelep
Budapest, XVI. kerület - Újmátyásföld - Centenáriumi lakótelep
Budapest, XVI. kerület - Újmátyásföld - Centenáriumi lakótelep
Budapest, XVI. kerület - Újmátyásföld - Centenáriumi lakótelep
Budapest, XVI. kerület - Újmátyásföld - Centenáriumi lakótelep
Budapest, XVI. kerület - Újmátyásföld - Centenáriumi lakótelep