Eladó téglalakás - Tatabánya

kiemelt
Kiemelt
KAPCSOLAT
Papp László


+36 70 528

papp.laszlo@

Az időpont kérés naptár ikonja
IDŐPONTOT KÉREK
A visszahívás kérés telefon ikonja egy azt körbe ölelő nyíllal
VISSZAHÍVÁST KÉREK
Ajánlom egy ismerősömnek ikon
AJÁNLOM EGY ISMERŐSÖMNEK
Facebook megosztás ikon
MEGOSZTÁS

KAPCSOLATFELVÉTEL

Küldés

Az üzenetet sikeresen elküldtük!
Hiba történt!
INGATLAN ADATAI

Ingatlan jellege

téglalakás

Belső terület

77 m²

Tájolás

dél

Panoráma

zöldövezetre

Építési állapot

használt

Építési mód

tégla

Szobák száma

4+2 félszoba

Emelet

4.

Épület szintje

4.

Épült

kb. 1960

Lift

nincs

Ingatlan állapot

kívül: jó
belül: kitűnő

Klíma

van

Ablak szerkezete

2 rétegű thermoplan

Fűtés

távfűtés

Komfort

összkomfort

Kilátás

utcára

Energetika

nincs

Extrák

plusz lakótér de önkormányzati, +30m2

Az időpont kérés naptár ikonja
HTML
Az időpont kérés naptár ikonja
PDF
Eladó téglalakás
Ingatlan azonosító:
4244_ko

Komárom-Esztergom megye, Tatabánya, (Újváros), Huba vezér utca

Irányár

72 M Ft
(935.06 E Ft/㎡)

Szobák

4+2 félszoba

Emelet

4

Terület

77 m²
INGATLAN LEÍRÁSA
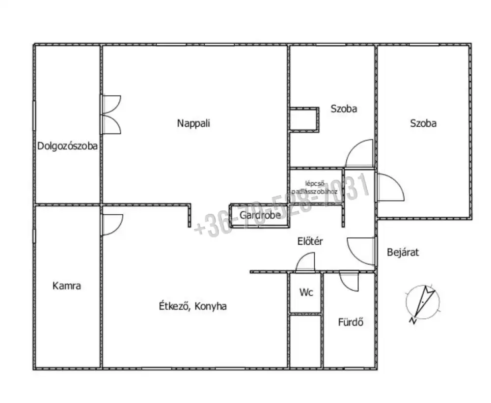
Eladó Tatabánya Újvárosban egy nagyon tágas, világos, tetőtéri, 77 m2-es otthon a 4. emeleten.
A lakás nagyon különleges elrendezésű, tágas nappalival, és élhető szép konyha- étkezővel rendelkezik. Az ingatlan jó minőségű fa, és modern műanyag ablakokkal is felszerelt.
Az otthon összeköttetésben van egy padlásszobával is amihez egyedülálló haszonélvezeti joggal rendelkezik.
Összessen így 4 szoba+2 fél szoba is rendelkezésre áll az új tulajdonos számára. Minden helyiségben kíváló minőségű burkolatok lettek felhelyezve.
Az ingatlan közelében minden megtalálható, ami a kényelmes mindennapi élethez szükséges.
Nézzük meg együtt ezt a különleges lakást, időpont egyeztetés végett keressen akár hétvégén, vagy az esti órákban is! Bankfüggetlen pénzügyi szakembereinkkel intézzük az esetleges hiteligényét!

INGATLAN ADATAI

Ingatlan jellege
téglalakás
Belső terület
77 m²
Tájolás
dél
Panoráma
zöldövezetre
Építési állapot
használt
Építési mód
tégla
Szobák száma
4+2 félszoba
Emelet
4.
Épület szintje
4.
Épült
kb. 1960
Lift
nincs
Ingatlan állapot
kívül: jó
belül: kitűnő
Klíma
van
Ablak szerkezete
2 rétegű thermoplan
Fűtés
távfűtés
Komfort
összkomfort
Kilátás
utcára
Energetika
nincs
Extrák
plusz lakótér de önkormányzati, +30m2

Hitelkalkulátor


KAPCSOLAT
Papp László
Papp László


+36 70 528 7031

papp.laszlo@komplexingatlan.com

KAPCSOLAT
Papp László

+36 70 528

papp.laszlo@

Az időpont kérés naptár ikonja
IDŐPONTOT KÉREK
A visszahívás kérés telefon ikonja egy azt körbe ölelő nyíllal
VISSZAHÍVÁST KÉREK
Ajánlom egy ismerősömnek ikon
AJÁNLOM EGY ISMERŐSÖMNEK
Facebook megosztás ikon
MEGOSZTÁS

KAPCSOLATFELVÉTEL

Küldés

Az üzenetet sikeresen elküldtük!
Hiba történt!
INGATLAN ADATAI

Ingatlan jellege

téglalakás

Belső terület

77 m²

Tájolás

dél

Panoráma

zöldövezetre

Építési állapot

használt

Építési mód

tégla

Szobák száma

4+2 félszoba

Emelet

4.

Épület szintje

4.

Épült

kb. 1960

Lift

nincs

Ingatlan állapot

kívül: jó
belül: kitűnő

Klíma

van

Ablak szerkezete

2 rétegű thermoplan

Fűtés

távfűtés

Komfort

összkomfort

Kilátás

utcára

Energetika

nincs

Extrák

plusz lakótér de önkormányzati, +30m2

Az időpont kérés naptár ikonja
HTML
Az időpont kérés naptár ikonja
PDF

Hasonló ingatlan hírdetések

Eladó tégla-, vagy panellakás hirdetést keres Tatabánya területén?
Tekintse meg további ajánlatainkat!

eladó panellakás, Tatabánya

eladó panellakás

Csendes környéken lévő, jó lakóközösséggel rendelkező 3 szoba+hallos, erkélyes lakás.

Komárom-Esztergom megye, Tatabánya, (Gál István lakótelep), Gál István lakótelep
Eladó egy 64 m2-es, 3 szoba + hallos, 3. emeleti erkélyes lakás, Tatabányán, a Gál István lakótelep egy nagyon nyugodt részén, gyönyörű panorámával a Gerecsére, rajta a Turul madárral. A lakás egy sz...
Belső terület
64 m²
Szobák
3
Emelet
3

46.4 M Ft

kiemelt
Kiemelt
eladó panellakás, Tatabánya

eladó panellakás

Fiatalos lakás, Tatabánya központjában. 2db lifttel, A++ os energetikával

Komárom-Esztergom megye, Tatabánya, (Újváros), Ifjúság utca
Megvételre kínálunk egy Tatabánya, Ifjúság utcai 10. emeleti, 2 szobás 53 m2 es lakást, a város központjában. A leendő otthon tisztasági festése a közelmúltban készült el! A lépcsőházban 2 db lift i...
Belső terület
53 m²
Szobák
2
Emelet
10

35.9 M Ft

kiemelt
Kiemelt
eladó panellakás, Tatabánya

eladó panellakás

Praktikus 1 szobás 37m2-es nagyerkélyes lakás

Komárom-Esztergom megye, Tatabánya, (Gál István lakótelep), Gál István ltp
Eladó egy Tatabánya Gál István lakótelepi 10 emeletes panel épületben lévő, 7. emeleti 1 szobás, erkélyes 37 m2-es lakás. A nyílászárók jó minőségű műanyagból készültek, 2 rétegű üvegekkel. Az ablako...
Belső terület
37 m²
Szobák
1
Emelet
7

34 M Ft

kiemelt
Kiemelt
eladó téglalakás, Tatabánya

eladó téglalakás

Komárom-Esztergom megye, Tatabánya, Ságvári lakótelep
: RITKA LEHETŐSÉG! PARK MELLETTI LAKÁS TATABÁNYA ÓVÁROSÁBAN Tatabánya Óvárosában, a Május 1. park közvetlen közelében, csendes, zöldövezeti környezetben eladó egy 1. emeleti, 57 m²-es, erkélyes...
Belső terület
57 m²
Szobák
2
Emelet
1

41.5 M Ft

eladó panellakás, Tatabánya

eladó panellakás

Tatabánya központjában, 53m2 nagyságú, igényesen felújított lakás eladó!

Komárom-Esztergom megye, Tatabánya, (Újváros), Mártírok útja
Tatabánya központjában, a Mártírok útján 53m2 nagyságú, igényesen átalakított lakás eladó! Kimagasló minőség, modern belsőépítészeti megoldások! Ide csak költözni kell! A lakás egy tízemeletes t...
Belső terület
53 m²
Szobák
2
Emelet
5

46.9 M Ft

eladó téglalakás, Tatabánya

eladó téglalakás

Tatabánya, Kós Károly utcában, 51 m²-es, 2 szobás, erkélyes téglaépítésű lakás.

Komárom-Esztergom megye, Tatabánya, (Újváros), Kós Károly utca
Eladó Tatabánya közkedvelt részén, a Kós Károly utcában egy 51 m² nagyságú, jó elosztású, téglaépítésű lakás. Befektetők figyelem! Az ingatlan téglaépítésű, négy szintes társasház negyedik emeleté...
Belső terület
51 m²
Szobák
2
Emelet
4

39.9 M Ft

eladó panellakás, Tatabánya

eladó panellakás

2 szoba hallos nagy erkélyes lakás a 9.-en, szép kilátással!

Komárom-Esztergom megye, Tatabánya, (Gál István lakótelep), Gál István lakótelep
Eladó egy 2 szoba hallos, nagy erkélyes, lakás Tatabányán a Gál istván lakótelepen, egy 10 emeletes ház 9. emeletén. A házban korszerűsített lift működik, ezért akár mozgássérülteknek is megfelelő le...
Belső terület
55 m²
Szobák
2
Emelet
9

41.5 M Ft

eladó téglalakás, Tatabánya

eladó téglalakás

Remek lakás, Tatabánya szívében!

Komárom-Esztergom megye, Tatabánya, (Újváros), Mártírok útja
Megvételre kínálunk egy Tatabánya Fő teréhez közeli, Újvárosi, 1 szoba+1 fél szobás, csúsztatott zsalus, francia kilépőerkélyes 43 m2 -es lakást. A lakás belső, és külső nyílászárói cserélve lettek,...
Belső terület
43 m²
Szobák
1+1
Emelet
4

38.1 M Ft

kiemelt
Kiemelt
Komárom-Esztergom megye - Tatabánya
Komárom-Esztergom megye - Tatabánya
Komárom-Esztergom megye - Tatabánya
Komárom-Esztergom megye - Tatabánya
Komárom-Esztergom megye - Tatabánya
Komárom-Esztergom megye - Tatabánya
Komárom-Esztergom megye - Tatabánya
Komárom-Esztergom megye - Tatabánya
Komárom-Esztergom megye - Tatabánya
Komárom-Esztergom megye - Tatabánya
Komárom-Esztergom megye - Tatabánya
Komárom-Esztergom megye - Tatabánya
Komárom-Esztergom megye - Tatabánya
Komárom-Esztergom megye - Tatabánya
Komárom-Esztergom megye - Tatabánya
Komárom-Esztergom megye - Tatabánya
Komárom-Esztergom megye - Tatabánya
Komárom-Esztergom megye - Tatabánya
Komárom-Esztergom megye - Tatabánya
Komárom-Esztergom megye - Tatabánya
Komárom-Esztergom megye - Tatabánya
Komárom-Esztergom megye - Tatabánya
Komárom-Esztergom megye - Tatabánya
Komárom-Esztergom megye - Tatabánya
Komárom-Esztergom megye - Tatabánya
Komárom-Esztergom megye - Tatabánya
Komárom-Esztergom megye - Tatabánya
Komárom-Esztergom megye - Tatabánya