Eladó téglalakás - Vác

KAPCSOLAT
Hanzli-Virág Edina


+36 70 634

viragedinards@

Az időpont kérés naptár ikonja
IDŐPONTOT KÉREK
A visszahívás kérés telefon ikonja egy azt körbe ölelő nyíllal
VISSZAHÍVÁST KÉREK
Ajánlom egy ismerősömnek ikon
AJÁNLOM EGY ISMERŐSÖMNEK
Facebook megosztás ikon
MEGOSZTÁS

KAPCSOLATFELVÉTEL

Küldés

Az üzenetet sikeresen elküldtük!
Hiba történt!
INGATLAN ADATAI

Ingatlan jellege

téglalakás

Belső terület

49 m²

Tájolás

északnyugat

Építési állapot

használt

Építési mód

tégla

Szobák száma

2 szoba

Emelet

5.

Épület szintje

5.

Épült

kb. 1960

Lift

van

Ingatlan állapot

kívül: jó
belül: jó

Fűtés

központi fűtés

Komfort

összkomfort

Kilátás

utcára, függőfolyosóra

Energetika

nincs megadva

Az időpont kérés naptár ikonja
HTML
Az időpont kérés naptár ikonja
PDF
Eladó téglalakás
Ingatlan azonosító:
12747_rds

Pest megye, Vác

Irányár

55 M Ft
(1.12 M Ft/㎡)

Szobák

2 szoba

Emelet

5

Terület

49 m²
INGATLAN LEÍRÁSA
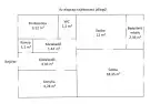
Eladóvá vált Vácon egy 49 m2-es, 2 szobás, tégla építésű lakás!

A lakás csendes, tiszta, liftes házban található, a legfelső szinten, felső szomszéd hiányában teljes nyugalma lehet az itt lakóknak. A lakásból csodás panoráma nyílik az egész városra!

A lakásban található nappali, hálószoba, konyha, kamra, közlekedő, kádas fürdőszoba és a WC külön helyiségben. Az erkély beépítésre került.

A tégla építésű ház az 1960-as években épült. A nyílászárók hőszigetelt műanyagra lettek cserélve, a nappaliban és a konyhában az ablakokon redőny és szúnyogháló is található. A padló parkettával és járólappal van burkolva. A nappaliban található egy plafonig érő beépített szekrény. A lakáshoz saját pincehelyiség tartozik.

A házban van víz, villany, csatorna, gáz, a fűtés közös központi kazánnal történik, a lakásban vas radiátorok adják a meleget, a fűtésszámla egyedi mérés alapján kerül fizetésre. A lakás alacsony rezsivel rendelkezik! Van lépcsőház takarítás és lift készenléti díj!

Az ingatlan per és tehermentes, előre egyeztetett időpontban megtekinthető.
Ha felkeltettem az érdeklődését várom megtisztelő hívását!

Az alábbi szolgáltatásokkal állunk rendelkezésre ingatlan vásárlásban/eladásban:

- Ingatlanközvetítés
- Értékbecslés
- Hirdetés: profi ingatlanfotóssal, drón-felvétellel, alaprajzzal
- Szerződéskötés szervezése
- Földhivatali ügyintézés
- Ügyvéd biztosítása
- Energetikai tanúsítvány elkészítése

Hitelügyintézés: Független hiteltanácsadó díjmentesen segít kiválasztani a legmegfelelőbb hitelkonstrukciót



INGATLAN ADATAI

Ingatlan jellege
téglalakás
Belső terület
49 m²
Tájolás
északnyugat
Építési állapot
használt
Építési mód
tégla
Szobák száma
2 szoba
Emelet
5.
Épület szintje
5.
Épült
kb. 1960
Lift
van
Ingatlan állapot
kívül: jó
belül: jó
Fűtés
központi fűtés
Komfort
összkomfort
Kilátás
utcára, függőfolyosóra
Energetika
nincs megadva
TÉRKÉP

Pest megye, Vác

Hitelkalkulátor


KAPCSOLAT
Hanzli-Virág Edina
Hanzli-Virág Edina


+36 70 634 4043

viragedinards@gmail.com

KAPCSOLAT
Hanzli-Virág Edina

+36 70 634

viragedinards@

Az időpont kérés naptár ikonja
IDŐPONTOT KÉREK
A visszahívás kérés telefon ikonja egy azt körbe ölelő nyíllal
VISSZAHÍVÁST KÉREK
Ajánlom egy ismerősömnek ikon
AJÁNLOM EGY ISMERŐSÖMNEK
Facebook megosztás ikon
MEGOSZTÁS

KAPCSOLATFELVÉTEL

Küldés

Az üzenetet sikeresen elküldtük!
Hiba történt!
INGATLAN ADATAI

Ingatlan jellege

téglalakás

Belső terület

49 m²

Tájolás

északnyugat

Építési állapot

használt

Építési mód

tégla

Szobák száma

2 szoba

Emelet

5.

Épület szintje

5.

Épült

kb. 1960

Lift

van

Ingatlan állapot

kívül: jó
belül: jó

Fűtés

központi fűtés

Komfort

összkomfort

Kilátás

utcára, függőfolyosóra

Energetika

nincs megadva

Az időpont kérés naptár ikonja
HTML
Az időpont kérés naptár ikonja
PDF

Hasonló ingatlan hírdetések

Eladó tégla-, vagy panellakás hirdetést keres Vác területén?
Tekintse meg további ajánlatainkat!

eladó téglalakás, Vác

eladó téglalakás

Pest megye, Vác, (Deákvár), Újhegyi út
Vác Deákvár városrészén, az Újhegyi úton kínálok megvételre egy magasföldszinti elhelyezkedésű, erkélyes, tégla falazatú társasházi lakást, amely kiváló választás lehet saját otthonnak vagy akár befek...
Belső terület
57 m²
Szobák
2

59.5 M Ft

eladó téglalakás, Vác

eladó téglalakás

Eladó földszinti tégla lakás Vác szívében! Központi helyen, kiváló közlekedéssel – álmai lakását most találja meg! ➡️ 59.9 millió Ft. Ragadja meg ezt a lehetőséget Vác nyüzsgő központjában! ✨ #eladó #václakás

Pest megye, Vác, Belváros
Eladó földszinti tégla lakás Vác központjában! Kiemelkedő lehetőség váci lakásvásárlóknak: most kínálunk megvételre egy földszinten található tégla építésű lakást Vác egyik legkedveltebb részen, ki...
Belső terület
51 m²
Szobák
2
Emelet
földszint

59.9 M Ft

eladó téglalakás, Vác

eladó téglalakás

Pest megye, Vác, Václiget
Eladó új építésű, akadálymentes lakás Vácon – kiváló befektetés! Ár (cégek részére): 39 millió Ft + ÁFA (nettó) Vác déli részén, modern társasházban eladó egy 50 m²-es, földszinti, teljesen akadál...
Belső terület
50 m²
Szobák
1+1
Emelet
földszint

49.9 M Ft

eladó panellakás, Vác

eladó panellakás

Pest megye, Vác, (Deákvár), Deákvári főút
Felújított lakás Vác-Deákváron – azonnal költözhető lehetőség! Eladó Vác-Deákváron, főút közelében egy 58 nm-es, 2 szobás, világos és jó állapotú lakás, amely tökéletes választás saját otthonnak va...
Belső terület
58 m²
Szobák
2
Emelet
3

62.9 M Ft

alkalmi vétel
Alkalmi vétel
eladó panellakás, Vác

eladó panellakás

Pest megye, Vác, (Deákvári lakótelep), Kakukk utca
Világos, parkra néző 2 szobás lakás eladó – kiváló elosztás! Eladó egy 57 nm-es, 3. emeleti csúszózsalus lakás, amely ideális választás akár saját otthonnak, akár befektetésnek. A lakás prak...
Belső terület
57 m²
Szobák
4
Emelet
3

56.9 M Ft

eladó téglalakás, Vác

eladó téglalakás

Eladó igényesen felújított 1. emeleti garzon lakás!

Pest megye, Vác
Eladó igényesen felújított 1. emeleti, erkélyes garzon lakás! A 47 nm-es lakás minden részletében a minőséget képviseli. Teljes körű felújítás során minden megújult: modern nyílászárók, burkolatok, v...
Belső terület
47 m²
Szobák
1+1
Emelet
1

64 M Ft

eladó téglalakás, Vác

eladó téglalakás

Pest megye, Vác, Zab utca
Vác kedvelt, nyugodt és rendezett részén, a Csendesréti lakókertben, a Zab utcában kínálok megvételre egy 2019-ben épült, bruttó 96 m2, nettó 80 m2-es, újszerű állapotú sorházi ingatlant, amely egy há...
Belső terület
96 m²
Szobák
4

98.9 M Ft

eladó téglalakás, Vác

eladó téglalakás

Pest megye, Vác, (Burgundia), Budapesti főút
Eladó Vác Burgundia városrészben belső kétszintes 53nm téglalakás. Elosztása alsó szinten: előszoba, konyha, fürdő+wc, nappali. A felső szinten előtér és két hálószoba. A fűtés központi egyedi mér...
Belső terület
53 m²
Szobák
3
Emelet
1

69.5 M Ft

Pest megye - Vác
Pest megye - Vác
Pest megye - Vác
Pest megye - Vác
Pest megye - Vác
Pest megye - Vác
Pest megye - Vác
Pest megye - Vác
Pest megye - Vác
Pest megye - Vác
Pest megye - Vác
Pest megye - Vác
Pest megye - Vác
Pest megye - Vác
Pest megye - Vác
Pest megye - Vác
Pest megye - Vác
Pest megye - Vác