Eladó új építésű ház - Lövő

Új építésű!
Új építésű
KAPCSOLAT
Szabó Judith


+36 30 233

szabojudithingatlan@

Az időpont kérés naptár ikonja
IDŐPONTOT KÉREK
A visszahívás kérés telefon ikonja egy azt körbe ölelő nyíllal
VISSZAHÍVÁST KÉREK
Ajánlom egy ismerősömnek ikon
AJÁNLOM EGY ISMERŐSÖMNEK
Facebook megosztás ikon
MEGOSZTÁS

KAPCSOLATFELVÉTEL

Küldés

Az üzenetet sikeresen elküldtük!
Hiba történt!
INGATLAN ADATAI

Ingatlan jellege

családi ház

Belső terület

72 m²

Telek terület

952 m²

Tájolás

délkelet

Építési állapot

új

Építési mód

tégla

Szobák száma

3 szoba

Terasz

17 m²

Épület szintje

1.

Épült

2026

Ingatlan állapot

kívül: új
belül: új

Szigetelés

15 cm

Fűtés

gázkazán

Komfort

összkomfort

Közműállapot

csatorna: bekötve
gáz: bekötve
villany: bekötve
víz: bekötve

Az időpont kérés naptár ikonja
HTML
Az időpont kérés naptár ikonja
PDF
Eladó új építésű ház
Ingatlan azonosító:
107_wo

Győr-Moson-Sopron megye, Lövő, Horváth Ferenc utca

Irányár

83.9 M Ft
(1.17 M Ft/㎡)

Szobák

3 szoba

Terület

72 m²

Telek terület

952 m²
INGATLAN LEÍRÁSA
A napfény íze
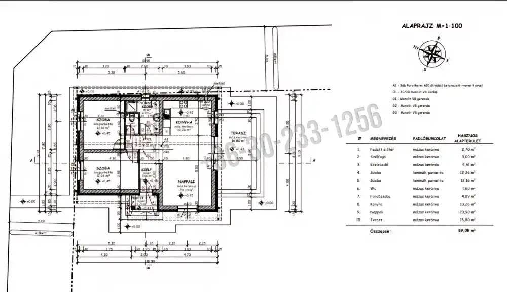
LÖVŐN, családi házas, zöldfás övezetben ELADÓ egy júliusi átadású, ÚJ ÉPÍTÉSŰ, 952 nm-es telekre épült egyszintes, amerikai konyha- nappali + 2 szobás családi ház hátsó terasszal, extrákkal.
A fotókon a már megépült és átadott ingatlan fotói láthatóak, majd a jelenlegi készültségi állapot. Mindkét épület teljesen egyforma úgy méretben, mint elosztás tekintetében.
A kiváló elosztásnak köszönhetően több, mint 30 nm-es amerikai konyha- nappali, külön fürdő, külön wc, 2 háloszoba került kialakításra, a napfényes nappaliból hátsó teraszra léphetünk.
Főbb műszaki adatok: tégla építés, Leier cseréptető, 15 cm-es külső hőszigetelés, 3 rétegű üvegezés, gáz kazán fűtés padlófűtéssel, beépített konyhabútor, klíma, elektromos redőnyök, 17 nm-es terasz.
❗️Eladási ára: 83,9 millió Ft ❗️- kerítés nélkül (kerítés külön kérhető)

INGATLAN ADATAI

Ingatlan jellege
családi ház
Belső terület
72 m²
Telek terület
952 m²
Tájolás
délkelet
Építési állapot
új
Építési mód
tégla
Szobák száma
3 szoba
Terasz
17 m²
Épület szintje
1.
Épült
2026
Ingatlan állapot
kívül: új
belül: új
Szigetelés
15 cm
Fűtés
gázkazán
Komfort
összkomfort
Közműállapot
csatorna: bekötve
gáz: bekötve
villany: bekötve
víz: bekötve
Energetika
TÉRKÉP

Győr-Moson-Sopron megye, Lövő, Horváth Ferenc utca

Hitelkalkulátor


KAPCSOLAT
Szabó Judith
Szabó Judith


+36 30 233 1256

szabojudithingatlan@gmail.com

KAPCSOLAT
Szabó Judith

+36 30 233

szabojudithingatlan@

Az időpont kérés naptár ikonja
IDŐPONTOT KÉREK
A visszahívás kérés telefon ikonja egy azt körbe ölelő nyíllal
VISSZAHÍVÁST KÉREK
Ajánlom egy ismerősömnek ikon
AJÁNLOM EGY ISMERŐSÖMNEK
Facebook megosztás ikon
MEGOSZTÁS

KAPCSOLATFELVÉTEL

Küldés

Az üzenetet sikeresen elküldtük!
Hiba történt!
INGATLAN ADATAI

Ingatlan jellege

családi ház

Belső terület

72 m²

Telek terület

952 m²

Tájolás

délkelet

Építési állapot

új

Építési mód

tégla

Szobák száma

3 szoba

Terasz

17 m²

Épület szintje

1.

Épült

2026

Ingatlan állapot

kívül: új
belül: új

Szigetelés

15 cm

Fűtés

gázkazán

Komfort

összkomfort

Közműállapot

csatorna: bekötve
gáz: bekötve
villany: bekötve
víz: bekötve

Energetika

Az időpont kérés naptár ikonja
HTML
Az időpont kérés naptár ikonja
PDF

Hasonló ingatlan hírdetések

Eladó új építésű családi ház, vagy kertes ház hirdetést keres Lövő területén?
Jelenleg nincsenek hasonló aktuális ajánlatok Lövő településen.
Tekintse meg további Győr-Moson-Sopron megyei ajánlatainkat !

eladó családi ház, Kópháza

eladó családi ház

Győr-Moson-Sopron megye, Kópháza, Kossuth Lajos utca
FANTASZTIKUS ÁRON, ÖNÁLLÓ CSALÁDI HÁZ, HATALMAS TELKEN !! KÓPHÁZÁN CSENDES, NYUGODT CSALÁD HÁZAS KÖRNYEZETBEN, NAGYKÓPHÁZÁN, MEGVÉTELRE KÍNÁLUNK EGY ÖNÁLLÓ TELKEN, LÉVŐ NORMÁL ÁLLAPOTÚ CSALÁDI HÁZ...
Belső terület
120 m²
Telek terület
1780 m²
Szobák
4

99 M Ft

89.9 M Ft

alkalmi vétel
Alkalmi vétel
eladó családi ház, Győr

eladó családi ház

Győr-Moson-Sopron megye, Győr, Gyárváros
Polgári jellegű családi ház eladó Győr–Gyárváros szívében, csendes utcában A Komplex Ingatlaniroda megvételre kínálja Győr – Gyárváros központi részén, mégis nyugodt, kis forgalmú utcában ezt a pol...
Belső terület
150 m²
Telek terület
300 m²
Szobák
3

69 M Ft

eladó családi ház, Sopron

eladó családi ház

Győr-Moson-Sopron megye, Sopron, Nemeskúti út
Eladó lekötésre épülő, könnyű szerkezetes ház. Az ingatlan a Nemeskúti úton, Sopron egyik kedvelt, nyugodt kertvárosi övezetében található, ahol a természetközeli élet és a városi kényelem tö...
Belső terület
101 m²
Telek terület
581 m²
Szobák
3

127.61 M Ft

eladó családi ház, Rajka

eladó családi ház

Győr-Moson-Sopron megye, Rajka
Családi ház Rajkán – tágas telek, rengeteg lehetőség! A Komplex Ingatlaniroda megvételre kínál Rajkán, nyugodt környezetben egy 1981-ben épült, tégla szerkezetű családi házat, amely ideális választ...
Belső terület
90 m²
Telek terület
1241 m²
Szobák
3

70 M Ft

eladó családi ház, Fertőrákos

eladó családi ház

Győr-Moson-Sopron megye, Fertőrákos
Fertőrákos csendes utcájában, gondosan karbantartott családi ház eladó Fertőrákos egyik nyugodt, csendes utcájában kínálunk megvételre egy 116 nm-es, jó állapotú, folyamatosan karbantartott, kétszi...
Belső terület
116 m²
Telek terület
231 m²
Szobák
4

94.9 M Ft

eladó új építésű sorház, Győr

eladó új építésű sorház

Győr-Moson-Sopron megye, Győr, Szitásdomb
Családi ház, sorház – Győr Szitásdomb II. A Komplex Ingatlaniroda megvételre kínálja Győr egyik legdinamikusabban fejlődő környezetében, a Szitásdomb II. lakóparkban (közigazgatásilag Vámosszabadi...
Belső terület
112 m²
Telek terület
303 m²
Szobák
2+2

108 M Ft

eladó családi ház, Sopron

eladó családi ház

Győr-Moson-Sopron megye, Sopron
Erdőszéli nyugalom Sopron egyik legkedveltebb, zöldövezeti részén, Bánfalván, az erdő és a történelmi Bánfalvi kolostor közvetlen közelében ELADÓ egy folyamatosan és igényesen felújított, 132 nm has...
Belső terület
132 m²
Telek terület
1260 m²
Szobák
3+1

142 M Ft

Panorámás!
Panorámás
eladó új építésű családi ház, Veszprémvarsány

eladó új építésű családi ház

Győr-Moson-Sopron megye, Veszprémvarsány
Új építésű családi ház eladó Veszprémvarsányban A Komplex Ingatlaniroda megvételre kínálja Veszprémvarsány csendes, családi házas övezetében ezt az új építésű családi házat, amely egy 812 m²-es sa...
Belső terület
88 m²
Telek terület
812 m²
Szobák
1+3

75 M Ft + Áfa

Győr-Moson-Sopron megye - Lövő
Győr-Moson-Sopron megye - Lövő
Győr-Moson-Sopron megye - Lövő
Győr-Moson-Sopron megye - Lövő
Győr-Moson-Sopron megye - Lövő
Győr-Moson-Sopron megye - Lövő
Győr-Moson-Sopron megye - Lövő
Győr-Moson-Sopron megye - Lövő
Győr-Moson-Sopron megye - Lövő
Győr-Moson-Sopron megye - Lövő
Győr-Moson-Sopron megye - Lövő
Győr-Moson-Sopron megye - Lövő
Győr-Moson-Sopron megye - Lövő
Győr-Moson-Sopron megye - Lövő
Győr-Moson-Sopron megye - Lövő
Győr-Moson-Sopron megye - Lövő
Győr-Moson-Sopron megye - Lövő
Győr-Moson-Sopron megye - Lövő
Győr-Moson-Sopron megye - Lövő
Győr-Moson-Sopron megye - Lövő
Győr-Moson-Sopron megye - Lövő
Győr-Moson-Sopron megye - Lövő
Győr-Moson-Sopron megye - Lövő
Győr-Moson-Sopron megye - Lövő
Győr-Moson-Sopron megye - Lövő
Győr-Moson-Sopron megye - Lövő
Győr-Moson-Sopron megye - Lövő
Győr-Moson-Sopron megye - Lövő
Győr-Moson-Sopron megye - Lövő
Győr-Moson-Sopron megye - Lövő
Győr-Moson-Sopron megye - Lövő
Győr-Moson-Sopron megye - Lövő