Eladó új építésű ház - Veresegyház

KAPCSOLAT
Otthonszakértő


+36 30 742

hunyas.adrienn@

Az időpont kérés naptár ikonja
IDŐPONTOT KÉREK
A visszahívás kérés telefon ikonja egy azt körbe ölelő nyíllal
VISSZAHÍVÁST KÉREK
Ajánlom egy ismerősömnek ikon
AJÁNLOM EGY ISMERŐSÖMNEK
Facebook megosztás ikon
MEGOSZTÁS

KAPCSOLATFELVÉTEL

Küldés

Az üzenetet sikeresen elküldtük!
Hiba történt!
INGATLAN ADATAI

Ingatlan jellege

családi ház

Belső terület

136 m²

Telek terület

698 m²

Tájolás

nyugat

Építési állapot

új

Építési mód

tégla

Szobák száma

4 szoba

Épület szintje

1.

Épült

kb. 2026

Ingatlan állapot

kívül: új
belül: új

Ablak szerkezete

3 rétegű thermoplan

Fűtés

padlófűtés

Komfort

duplakomfort

Parkolás

van, nem meghatározott

Közműállapot

csatorna: bekötve
gáz: bekötve
villany: bekötve
víz: bekötve

Energetika

A:

Az időpont kérés naptár ikonja
HTML
Az időpont kérés naptár ikonja
PDF
Eladó új építésű ház
Belső azonosító:
PKV
Ingatlan azonosító:
95_osz

Pest megye, Veresegyház, (Öreghegy), Hajnal utca

Irányár

121 M Ft
(889.71 E Ft/㎡)

Szobák

4 szoba

Terület

136 m²

Telek terület

698 m²
INGATLAN LEÍRÁSA
Veresegyház egyik csendes részén, a Hajnal utcában kínálunk megvételre egy új építésű, modern kialakítású családi házat.

Az ingatlan praktikus elrendezéssel, tágas közösségi terekkel és kényelmes hálószobákkal készül, így ideális választás családok számára.

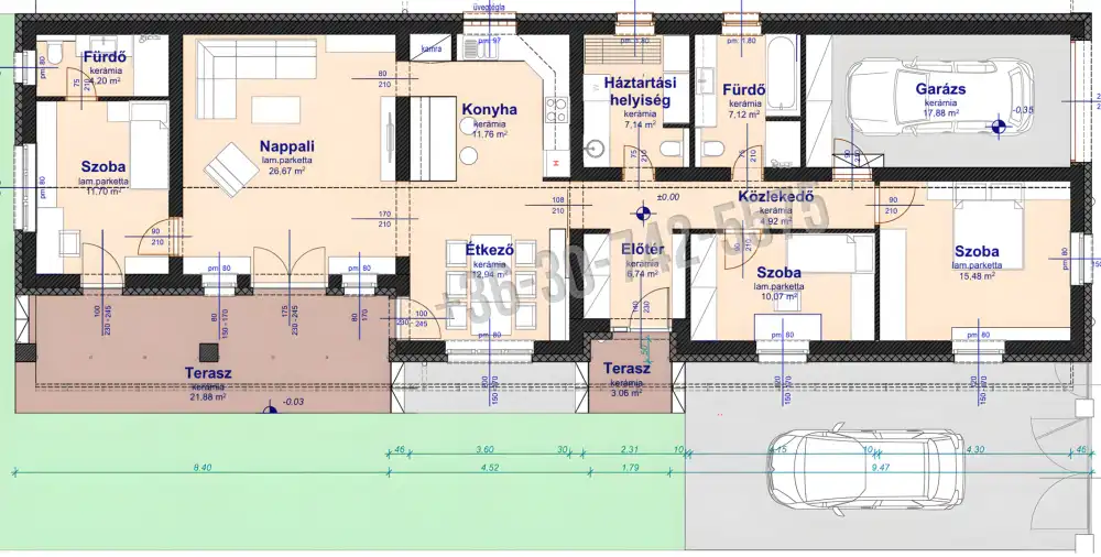
Főbb jellemzők
- Lakótér: 118,7 m²
- Garázs: 17,9 m²
- Terasz: több mint 20 m²
- Nappali + 3 szoba
- 2 fürdőszoba
- külön háztartási helyiség
- kamra
- tágas amerikai konyhás nappali + étkező
- fedett terasz

Helyiségek:

- előtér
- közlekedő
- nappali (26,67 m²)
- konyha (11,76 m²)
- étkező (12,94 m²)
- 3 külön nyíló szoba
- 2 fürdőszoba
- háztartási helyiség
- kamra
- garázs
- terasz

A nappali és az étkező közvetlen kapcsolatban áll a nagy méretű terasszal, amely kiváló helyszín családi és baráti összejövetelekhez.

Környék

Veresegyház az egyik legkedveltebb agglomerációs település Budapest közelében.

A környéken megtalálható:iskola, óvoda,bevásárlási lehetőségek, orvosi ellátás, kiváló közlekedés Budapest felé.

Ha kérdése merülne fel az ingatlannal kapcsolatban, készséggel állunk rendelkezésére. Keressen minket bizalommal!

Háztól függetlenül támogatjuk ügyfeleinket CSOK, CSOK PLUSZ és HITELFELVÉTEL intézésében!
Rajtunk keresztül kedvezőbb feltételekhez juthat a hitelfelvétel során, ráadásul közvetítői díj nélkül!
Emiatt is forduljon hozzánk bizalommal.

INGATLAN ADATAI

Ingatlan jellege
családi ház
Belső terület
136 m²
Telek terület
698 m²
Tájolás
nyugat
Építési állapot
új
Építési mód
tégla
Szobák száma
4 szoba
Épület szintje
1.
Épült
kb. 2026
Ingatlan állapot
kívül: új
belül: új
Ablak szerkezete
3 rétegű thermoplan
Fűtés
padlófűtés
Komfort
duplakomfort
Parkolás
van, nem meghatározott
Közműállapot
csatorna: bekötve
gáz: bekötve
villany: bekötve
víz: bekötve
Energetika
A:
TÉRKÉP

Pest megye, Veresegyház, Hajnal utca

Hitelkalkulátor


KAPCSOLAT
Otthonszakértő
Otthonszakértő


+36 30 742 5575

hunyas.adrienn@otthonszakerto.hu

KAPCSOLAT
Otthonszakértő

+36 30 742

hunyas.adrienn@

Az időpont kérés naptár ikonja
IDŐPONTOT KÉREK
A visszahívás kérés telefon ikonja egy azt körbe ölelő nyíllal
VISSZAHÍVÁST KÉREK
Ajánlom egy ismerősömnek ikon
AJÁNLOM EGY ISMERŐSÖMNEK
Facebook megosztás ikon
MEGOSZTÁS

KAPCSOLATFELVÉTEL

Küldés

Az üzenetet sikeresen elküldtük!
Hiba történt!
INGATLAN ADATAI

Ingatlan jellege

családi ház

Belső terület

136 m²

Telek terület

698 m²

Tájolás

nyugat

Építési állapot

új

Építési mód

tégla

Szobák száma

4 szoba

Épület szintje

1.

Épült

kb. 2026

Ingatlan állapot

kívül: új
belül: új

Ablak szerkezete

3 rétegű thermoplan

Fűtés

padlófűtés

Komfort

duplakomfort

Parkolás

van, nem meghatározott

Közműállapot

csatorna: bekötve
gáz: bekötve
villany: bekötve
víz: bekötve

Energetika

A:

Az időpont kérés naptár ikonja
HTML
Az időpont kérés naptár ikonja
PDF

Hasonló ingatlan hírdetések

Eladó új építésű családi ház, vagy kertes ház hirdetést keres Veresegyház területén?
Tekintse meg további ajánlatainkat!

eladó új építésű ikerház, Veresegyház

eladó új építésű ikerház

Pest megye, Veresegyház, Harmatok
Eladó ÚJ ÉPÍTÉSŰ, energiatakarékos ikerház, Veresegyház Harmatok városrészben! BERUHÁZÓI ÁRON! MEGKEZDETT ÉPÍTKEZÉS, őszi átadás! Magas műszaki tartalom alacsony fenntartási költségek! Ela...
Belső terület
123 m²
Telek terület
480 m²
Szobák
4

145.8 M Ft + Áfa

Új építésű!
Új építésű
eladó családi ház, Veresegyház

eladó családi ház

Pest megye, Veresegyház, Mézesvölgy
Modern, energiatakarékos új építésű családi ház Veresegyház egyik legjobb részén! Veresegyház kedvelt, központhoz közeli, mégis nyugodt egyirányú utcájában épül ez a nettó 125,93 m²-es, átgondolt...
Belső terület
126 m²
Telek terület
636 m²
Szobák
4

120 M Ft

eladó új építésű családi ház, Veresegyház

eladó új építésű családi ház

Pest megye, Veresegyház, Revetek
Eladó ÚJ ÉPÍTÉSŰ családi ház Veresegyház Revetek városrészben! MEGKEZDETT ÉPÍTKEZÉS! Igény esetén a belső kialakítás jelenleg még módosítható, a garázsból is készülhet + egy szoba! BERUHÁZÓI Á...
Belső terület
133 m²
Telek terület
800 m²
Szobák
4

144.99 M Ft

Új építésű!
Új építésű
eladó új építésű családi ház, Veresegyház

eladó új építésű családi ház

Pest megye, Veresegyház, Revetek
Eladó Veresegyházon ÚJ ÉPÍTÉSŰ, ÖNÁLLÓ, ENERGIATAKARÉKOS CSALÁDI HÁZ csendes, természet közeli környezetben! BERUHÁZÓI ÁRON! Eladó Veresegyház Revetek városrészben, ÚJ ÉPÍTÉSŰ, nettó 110 nm-es, ...
Belső terület
120 m²
Telek terület
762 m²
Szobák
5

144.9 M Ft

Új építésű!
Új építésű
eladó új építésű családi ház, Veresegyház

eladó új építésű családi ház

Pest megye, Veresegyház, Harmatok
Eladó igényes családi ház Veresegyház közkedvelt részén! Veresegyház egyik legkeresettebb, csendes és kertvárosias részén, a Harmatokban kínálunk megvételre egy kiváló minőségű, igényesen kivitelez...
Belső terület
115 m²
Telek terület
950 m²
Szobák
4

159.99 M Ft

Új építésű!
Új építésű
eladó családi ház, Veresegyház

eladó családi ház

Pest megye, Veresegyház, Ligetek
Eladó kétszintes, szerkezetkész családi ház! Hozza ki a maximumot ebből a fantasztikus lehetőségből és alakítsa saját ízlésére új otthonát! Ne hagyja ki, tegye meg ajánlatát még ma! Eladó ...
Belső terület
393 m²
Telek terület
1298 m²
Szobák
4+3

139.8 M Ft

eladó új építésű családi ház, Veresegyház

eladó új építésű családi ház

Azonnali költözés !

Pest megye, Veresegyház, Széchenyidomb
Augusztusi költözés, Önnek már csak a burkolatokat kell kiválasztania ! Veresegyház, Széchenyidomb városrészében kínálom eladásra ezt az új építésű, nappali+négy hálószobás, dupla garázzsal, fedett...
Belső terület
145 m²
Telek terület
820 m²
Szobák
5

119.9 M Ft

eladó új építésű családi ház, Veresegyház

eladó új építésű családi ház

Azonnali költözés !

Pest megye, Veresegyház, Széchenyidomb
Augusztusi költözés, Önnek már csak a burkolatokat kell kiválasztania ! Veresegyház, Széchenyidomb városrészében kínálom eladásra ezt az új építésű, nappali+négy hálószobás, dupla garázzsal, fedett...
Belső terület
145 m²
Telek terület
820 m²
Szobák
5

119.9 M Ft

azonnal költözhető
Azonnal költözhető
Pest megye - Veresegyház
Pest megye - Veresegyház
Pest megye - Veresegyház
Pest megye - Veresegyház
Pest megye - Veresegyház
Pest megye - Veresegyház
Pest megye - Veresegyház