Eladó új építésű ház - Veresegyház

Új építésű!
Új építésű
KAPCSOLAT
Kiss Jutka


+36 20 334

arenaingatlanok@

Az időpont kérés naptár ikonja
IDŐPONTOT KÉREK
A visszahívás kérés telefon ikonja egy azt körbe ölelő nyíllal
VISSZAHÍVÁST KÉREK
Ajánlom egy ismerősömnek ikon
AJÁNLOM EGY ISMERŐSÖMNEK
Facebook megosztás ikon
MEGOSZTÁS

KAPCSOLATFELVÉTEL

Küldés

Az üzenetet sikeresen elküldtük!
Hiba történt!
INGATLAN ADATAI

Ingatlan jellege

családi ház

Belső terület

136 m²

Telek terület

817 m²

Tájolás

délnyugat

Építési állapot

új

Építési mód

tégla

Szobák száma

5 szoba

Terasz

17 m²

Épület szintje

1.

Épült

2025

Ingatlan állapot

kívül: új
belül: új

Klíma

előkészítve

Szigetelés

15 cm

Ablak szerkezete

3 rétegű thermoplan

Fűtés

gázkazán

Komfort

duplakomfort

Parkolás

van önálló garázs

Közműállapot

csatorna: bekötve
gáz: bekötve
villany: bekötve
víz: bekötve

Energetika

nincs megadva

Az időpont kérés naptár ikonja
HTML
Az időpont kérés naptár ikonja
PDF
Eladó új építésű ház
Ingatlan azonosító:
1340_ar

Pest megye, Veresegyház, Öreghegy

Irányár

149.99 M Ft
(1.1 M Ft/㎡)

Szobák

5 szoba

Terület

136 m²

Telek terület

817 m²
INGATLAN LEÍRÁSA
Eladó Veresegyházon ÚJ ÉPÍTÉSŰ családi ház!

BERUHÁZÓI ÁRON!

HAMAROSAN KEZDŐDŐ ÉPÍTKEZÉS!

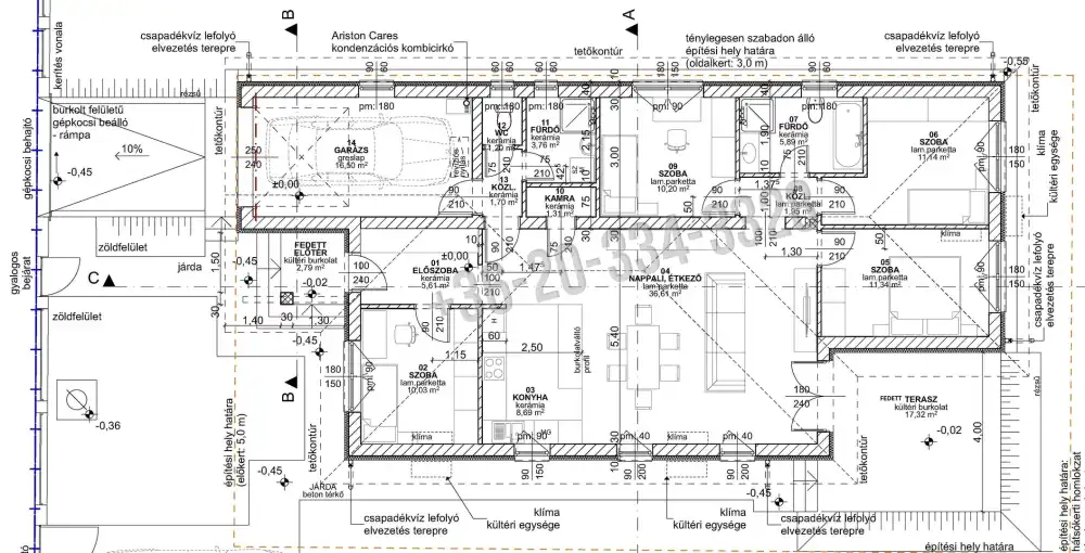
Eladó Pest megye egyik legkedveltebb településén, Veresegyház Öreghegy városrészben, csendes, szép kertvárosi környezetben, ÚJ ÉPÍTÉSŰ, nettó 126 nm-es, amerikai konyhás nappali + 4 szobás, tripla komfortos, családi ház garázzsal, 817 nm-es telekkel.

A BELSŐ TEREK KIALAKÍTÁSA – válaszfalak elhelyezése – JELENLEG MÉG MÓDOSÍTHATÓ!

A tervezésnél törekedtek az élhető terek kialakítására, a maximális kényelem megteremtésére:
- a tágas, 45 nm-es amerikai konyhás nappali terasz kapcsolattal, a 4 hálószoba, 2 fürdőszoba kényelmes életteret biztosít az egész család számára, valamint egy kamra és vendég WC is helyet kapott.

Az épület korszerű, a mai kor igényeinek megfelelő minőségi anyagokból és technológiával készül:

-főfalak 30-as Porotherm téglából, 15 cm-es hőszigeteléssel,
-fűtést gázkazán biztosítja, padlófűtéssel, igény esetén hőszivattyús fűtéssel, melynek plusz költsége van,
-3 db klíma kiállás előkészítése,
-3 rétegű, hőszigetelt üvegezésű műanyag nyílászárók, – értékegyeztetéssel - redőnnyel, szúnyoghálóval felszerelve,
-beton födém,
-beton cserépfedés,
-választható burkolatok, szaniterek, belső ajtók.

Hívjon a részletekért, a részletes műszaki tartalomért.

KÖZLEKEDÉS: buszmegálló gyalogosan pár perc alatt elérhető.

Ez az ingatlan ideális választás mindazok számára, akik csendes, rendezett környezetre vágynak, mégis élvezve a város kényelmeit.

Irodánk ÚJ ÉPÍTÉSŰ ingatlanok specialistája, felkészült értékesítőkkel!

Jogi háttérrel (kedvező díjazással) és az egyik legjobb, bank semleges HITELKÖZVETÍTŐVEL segítjük vásárlását.
Hitelszakértőnk teljes körű ügyintézéssel áll Vevőink rendelkezésére, legyen szó OTTHON START, CSOK+, BABAVÁRÓ vagy a legjobb piaci hitelről.

Új építésű ingatlanjainkat BERUHÁZÓI ÁRON értékesítjük!

Amennyiben értékesíteni kívánja ingatlanát, irodánk egyedi, kedvező ajánlattal áll rendelkezésére!

Veresegyház Budapesttől mindössze 25 km-re helyezkedik el. A városban minden megtalálható, ami a mindennapi élethez szükséges: számos bevásárlási és kikapcsolódási lehetőség (üzletházak, piac, színház, horgásztó, medvepark, termálfürdő stb.), orvosi rendelő, gyógyszertár, általános iskolák, zeneiskola, gimnázium, óvodák, bölcsődék.
Autóval és tömegközlekedéssel (elővárosi vonat NY-i pályaudvar, távolsági autóbusz Újpest) is jól megközelíthető. A városban helyi buszjárat is közlekedik.

INGATLAN ADATAI

Ingatlan jellege
családi ház
Belső terület
136 m²
Telek terület
817 m²
Tájolás
délnyugat
Építési állapot
új
Építési mód
tégla
Szobák száma
5 szoba
Terasz
17 m²
Épület szintje
1.
Épült
2025
Ingatlan állapot
kívül: új
belül: új
Klíma
előkészítve
Szigetelés
15 cm
Ablak szerkezete
3 rétegű thermoplan
Fűtés
gázkazán
Komfort
duplakomfort
Parkolás
van önálló garázs
Közműállapot
csatorna: bekötve
gáz: bekötve
villany: bekötve
víz: bekötve
Energetika
nincs megadva
TÉRKÉP

Pest megye, Veresegyház, Öreghegy

Hitelkalkulátor


KAPCSOLAT
Kiss Jutka
Kiss Jutka


+36 20 334 3328

arenaingatlanok@gmail.com

KAPCSOLAT
Kiss Jutka

+36 20 334

arenaingatlanok@

Az időpont kérés naptár ikonja
IDŐPONTOT KÉREK
A visszahívás kérés telefon ikonja egy azt körbe ölelő nyíllal
VISSZAHÍVÁST KÉREK
Ajánlom egy ismerősömnek ikon
AJÁNLOM EGY ISMERŐSÖMNEK
Facebook megosztás ikon
MEGOSZTÁS

KAPCSOLATFELVÉTEL

Küldés

Az üzenetet sikeresen elküldtük!
Hiba történt!
INGATLAN ADATAI

Ingatlan jellege

családi ház

Belső terület

136 m²

Telek terület

817 m²

Tájolás

délnyugat

Építési állapot

új

Építési mód

tégla

Szobák száma

5 szoba

Terasz

17 m²

Épület szintje

1.

Épült

2025

Ingatlan állapot

kívül: új
belül: új

Klíma

előkészítve

Szigetelés

15 cm

Ablak szerkezete

3 rétegű thermoplan

Fűtés

gázkazán

Komfort

duplakomfort

Parkolás

van önálló garázs

Közműállapot

csatorna: bekötve
gáz: bekötve
villany: bekötve
víz: bekötve

Energetika

nincs megadva

Az időpont kérés naptár ikonja
HTML
Az időpont kérés naptár ikonja
PDF

Hasonló ingatlan hírdetések

Eladó új építésű családi ház, vagy kertes ház hirdetést keres Veresegyház területén?
Tekintse meg további ajánlatainkat!

eladó új építésű családi ház, Veresegyház

eladó új építésű családi ház

Pest megye, Veresegyház, Ligetek
Eladó ÚJ ÉPÍTÉSŰ családi ház Veresegyház Ligetek városrészen, ÚJ ÉPÍTÉSŰ HÁZAK KÖRNYEZETÉBEN! UTOLSÓ ÚJ ÉPÍTÉSŰ PROJEKT VERESEGYHÁZ LIGETEK városrészben! NE HAGYJA KI EZT A LEHETŐSÉGET, vegye fel ...
Belső terület
126 m²
Telek terület
504 m²
Szobák
5

149.9 M Ft

Új építésű!
Új építésű
eladó új építésű családi ház, Veresegyház

eladó új építésű családi ház

Pest megye, Veresegyház, Tópart
Eladó ÚJ ÉPÍTÉSŰ családi ház Veresegyház Tópart városrészen! BERUHÁZÓI ÁRON! A BELSŐ TEREK KIALAKÍTÁSA – válaszfalak elhelyezése – JELENLEG MÉG MÓDOSÍTHATÓ! Eladó Veresegyház Tópart városrés...
Belső terület
132 m²
Telek terület
576 m²
Szobák
5

139.9 M Ft

Új építésű!
Új építésű
eladó új építésű családi ház, Veresegyház

eladó új építésű családi ház

Pest megye, Veresegyház, Hegyek
Eladó ÚJ ÉPÍTÉSŰ, kétszintes családi ház Veresegyházon! BERUHÁZÓI ÁRON! Ne hagyja ki ezt a lehetőséget, Veresegyház most Önre vár! HAMAROSAN KEZDŐDŐ ÉPÍTKEZÉS! A BELSŐ TEREK KIALAKÍTÁSA – ...
Belső terület
152 m²
Telek terület
738 m²
Szobák
5

149.9 M Ft

Új építésű!
Új építésű
eladó új építésű családi ház, Veresegyház

eladó új építésű családi ház

Pest megye, Veresegyház, Ligetek
***AZ ÉPÍTKEZÉS KEZDŐDIK*** Veresegyház kedvelt részén, családi házas övezetben, 614 nm-es telekre épülő, egyszintes, nettó 114 nm-es, nappali + 4 szobás, dupla komfortos, 15 nm-es fedett beállóval...
Belső terület
114 m²
Telek terület
614 m²
Szobák
5

149.9 M Ft

eladó új építésű családi ház, Veresegyház

eladó új építésű családi ház

Pest megye, Veresegyház, Ligetek
***AZ ÉPÍTKEZÉS KEZDŐDIK*** Veresegyház kedvelt részén, családi házas övezetben, 504 nm-es telekre épülő, egyszintes, nettó 118 nm-es, nappali + 4 szobás, dupla komfortos, 16,50 nm-es garázzsal, 15...
Belső terület
118 m²
Telek terület
504 m²
Szobák
5

149.9 M Ft

eladó új építésű családi ház, Veresegyház

eladó új építésű családi ház

Pest megye, Veresegyház, Ligetek
***AZ ÉPÍTKEZÉS KEZDŐDIK*** Veresegyház kedvelt részén, családi házas övezetben, egyszintes, nettó 114 nm-es, nappali + 4 szobás, dupla komfortos családi házak eladók! A KIVITELEZÉS A MAI KOR IG...
Belső terület
114 m²
Telek terület
531 m²
Szobák
5

149.9 M Ft

eladó új építésű családi ház, Veresegyház

eladó új építésű családi ház

Pest megye, Veresegyház, Fővég
Eladó ÚJ ÉPÍTÉSŰ, ENERGIATAKARÉKOS családi ház Veresegyházon. BERUHÁZÓI ÁRON! Tökéletes választás, ha egy energiahatékony, jó hangulatú otthont keres! Eladó Veresegyház Fővég városrészben új ...
Belső terület
131 m²
Telek terület
698 m²
Szobák
4

139 M Ft

Új építésű!
Új építésű
eladó új építésű családi ház, Veresegyház

eladó új építésű családi ház

Pest megye, Veresegyház, Öreghegy
Eladó Veresegyházon ÚJ ÉPÍTÉSŰ, ENERGIATAKARÉKOS családi ház! BERUHÁZÓI ÁRON! HAMAROSAN KEZDŐDŐ ÉPÍTKEZÉS! Eladó Pest megye egyik legkedveltebb településén, Veresegyház Öreghegy városrészben, cse...
Belső terület
136 m²
Telek terület
815 m²
Szobák
5

154.9 M Ft

Új építésű!
Új építésű
Pest megye - Veresegyház
Pest megye - Veresegyház
Pest megye - Veresegyház