KAPCSOLATFELVÉTEL
Ingatlan jellege
házrész
Belső terület
80 m²
Telek terület
417 m²
Építési állapot
új
Építési mód
- nem meghatározott -
Szobák száma
4 szoba
Épület szintje
1.
Ingatlan állapot
kívül: jó
belül: jó
Fűtés
villany
Komfort
komfort
Közműállapot
csatorna: bekötve
gáz: bekötve
villany: bekötve
víz: bekötve
Pest megye, Vecsés, Kertekalja
Irányár
(743.75 E Ft/㎡)
Szobák
Emelet
Terület
Telek terület
Az utca nyugodt, csendes, a Liszt Ferenc Nemzetközi Repülőtértől 11, az M0-ás felhajtójától 9 percre található. A ház pár perc sétára fekszik Vecsés-Kertekalja vasútállomástól. A városban továbbá iskola, óvoda, középiskola, szupermarketek és kisboltok találhatóak.
A házhoz egy 417 m2-es telek tartozik, mely egy kisebb elő- és egy nagyobb hátsókertből áll. Hátul egy 15 m2-es terasz is kialakításra került a békére vágyók számára.
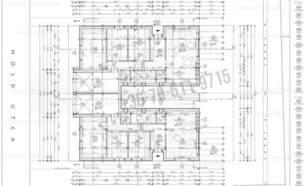
A ház alapterülete 80 m2+14,85 m2 garázs + 15,44 m2 terasz. Az épület három eltérő méretű szobából, egy hatalmas nappaliból, étkező-konyhából, közlekedő terekből, kamrából, fürdőből és különálló WC-ből áll. Az ikerházfél csak a garázsnál érintkezik az A lakással.
Az ingatlan a legmodernebb építőanyagoból készül, műszakilag kifogástalan, és maximális kényelmet fog biztosítani!
A ház monolit vasbeton sávlapra épül, a főfalak 30 cm-es Ytong téglából állnak, erre fog kerülni egy 15 cm-es Nikecell szigetelés. A tető fafödémes lesz. A bejárati egy többpontos biztonsági ajtó, az ablakok korszerű műanyagok, hőszigetelő üveggel készítettek. A belső burkolatok az építés stádiumától függően természetesen választhatók. A fűtést és a melegvizet elektromos kazán szolgáltatja. A ház padlófűtéssel és klímával is felszerelt!
Várható átadás: 2021 IV. vagy III. negyedéve
CSOK igényelhető!
Ha bármilyen kérdése van, forduljon hozzám bizalommal!
Intor Ingatlan – Otthont Biztonságban!
belül: jó
gáz: bekötve
villany: bekötve
víz: bekötve
Pest megye, Vecsés, Kertekalja
Hitelkalkulátor
+36 70 611 9715
marton.mate@intoringatlan.hu
KAPCSOLATFELVÉTEL
Ingatlan jellege
házrész
Belső terület
80 m²
Telek terület
417 m²
Építési állapot
új
Építési mód
- nem meghatározott -
Szobák száma
4 szoba
Épület szintje
1.
Ingatlan állapot
kívül: jó
belül: jó
Fűtés
villany
Komfort
komfort
Közműállapot
csatorna: bekötve
gáz: bekötve
villany: bekötve
víz: bekötve
Energetika