Eladó új építésű ikerház - Áporka

Új építésű!
Új építésű
KAPCSOLAT
Belák Ilona Kinga


+36 20 227

b.ilonakinga@

Az időpont kérés naptár ikonja
IDŐPONTOT KÉREK
A visszahívás kérés telefon ikonja egy azt körbe ölelő nyíllal
VISSZAHÍVÁST KÉREK
Ajánlom egy ismerősömnek ikon
AJÁNLOM EGY ISMERŐSÖMNEK
Facebook megosztás ikon
MEGOSZTÁS

KAPCSOLATFELVÉTEL

Küldés

Az üzenetet sikeresen elküldtük!
Hiba történt!
INGATLAN ADATAI

Ingatlan jellege

ikerház

Belső terület

88 m²

Telek terület

302 m²

Tájolás

délnyugat

Építési állapot

új

Építési mód

tégla

Szobák száma

3 szoba

Terasz

14.1 m²

Épület szintje

1.

Épült

2025

Ingatlan állapot

kívül: új
belül: új

Szigetelés

15 cm

Fűtés

hőszivattyús

Komfort

összkomfort

Közműállapot

csatorna: bekötve
gáz: bekötve
villany: bekötve
víz: bekötve

Energetika

nincs megadva

Az időpont kérés naptár ikonja
HTML
Az időpont kérés naptár ikonja
PDF
Eladó új építésű ikerház
Belső azonosító:
35096521
Ingatlan azonosító:
349_isz

Pest megye, Áporka

Akciós ár

65 M Ft
(738.64 E Ft/㎡)

Eredeti irányár

65 M Ft

Szobák

3 szoba

Terület

88 m²

Telek terület

302 m²
INGATLAN LEÍRÁSA
ÚJ ÉPÍTÉSŰ IKERHÁZFÉL
Áporka településén

Eladásra kínálunk Áporkán egy új építésű, egyszintes ikerházfelet, amely tárolókapcsolatos kialakítású, a lakóterek között nincs közös fal, így a mindennapi használat szempontjából önálló családi ház érzetét nyújtja, jogilag azonban ikerház.

Ár: 65.000.000 Ft
Átadás: 2026. augusztus

FŐBB PARAMÉTEREK
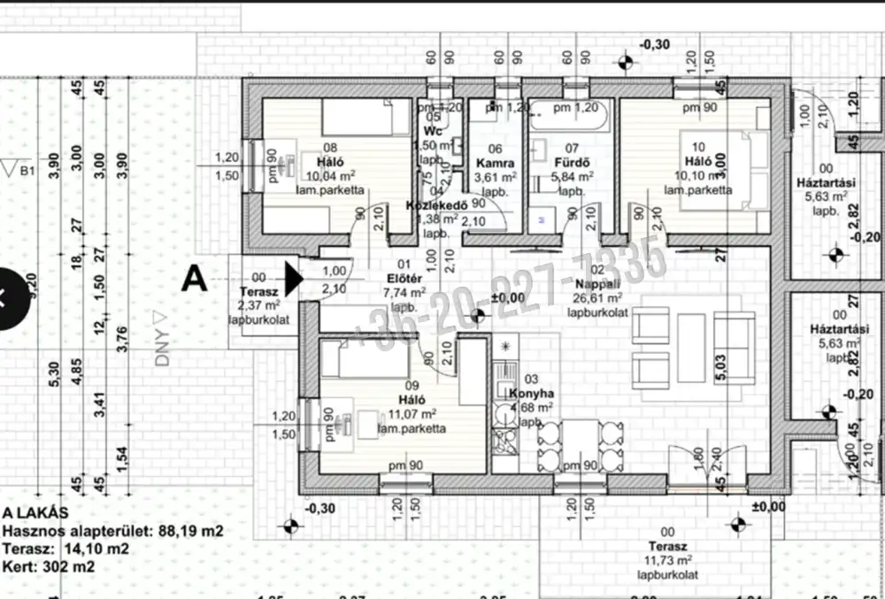
Hasznos alapterület: 88,19 m²
Terasz: 14,10 m²
Telek: 302 m², saját kert
Ikerházfél, tárolóval kapcsolatos kialakítás

HELYISÉGEK
Amerikai konyhás nappali: 26,61 m²
Konyha: 4,68 m²
Három külön nyíló hálószoba:
– 10,04 m²
– 11,07 m²
– 10,10 m²

Előtér: 7,77 m²
Kamra: 3,61 m²
Fürdőszoba: 5,84 m²
Külön WC: 1,50 m²
Közlekedő: 1,38 m²

MŰSZAKI TARTALOM
Hőszivattyús fűtési rendszer
Modern szigetelés és korszerű nyílászárók
Praktikus, jól átgondolt alaprajz
Világos, élhető terek
Tárolókapcsolatos ikerházi kialakítás

KIVITELEZÉS
Az ingatlan megbízható, leinformálható kivitelezőtől származik.
A kivitelező referenciaházai megtekinthetők, a kivitelezési minőség ellenőrizhető.

MIÉRT JÓ VÁLASZTÁS
Ikerházfél, lakóterek között nincs közös fal
Nyugodt, csendes települési környezet
Ideális családosoknak
Új építés, alacsony fenntartási költségek
Értéktartó ingatlan

Kapcsolat és finanszírozás
Belák Ilona Kinga
Minőségi otthonok szakértője – pénzügyi megoldásokkal

Telefonszám: 06 20 227 7335
E-mail: ilona@ingatlan-sziget.hu

Weboldal: www.ingatlan-sziget.hu

INGATLAN ADATAI

Ingatlan jellege
ikerház
Belső terület
88 m²
Telek terület
302 m²
Tájolás
délnyugat
Építési állapot
új
Építési mód
tégla
Szobák száma
3 szoba
Terasz
14.1 m²
Épület szintje
1.
Épült
2025
Ingatlan állapot
kívül: új
belül: új
Szigetelés
15 cm
Fűtés
hőszivattyús
Komfort
összkomfort
Közműállapot
csatorna: bekötve
gáz: bekötve
villany: bekötve
víz: bekötve
Energetika
nincs megadva
TÉRKÉP

Pest megye, Áporka

Hitelkalkulátor


KAPCSOLAT
Belák Ilona Kinga
Belák Ilona Kinga


+36 20 227 7335

b.ilonakinga@gmail.com

KAPCSOLAT
Belák Ilona Kinga

+36 20 227

b.ilonakinga@

Az időpont kérés naptár ikonja
IDŐPONTOT KÉREK
A visszahívás kérés telefon ikonja egy azt körbe ölelő nyíllal
VISSZAHÍVÁST KÉREK
Ajánlom egy ismerősömnek ikon
AJÁNLOM EGY ISMERŐSÖMNEK
Facebook megosztás ikon
MEGOSZTÁS

KAPCSOLATFELVÉTEL

Küldés

Az üzenetet sikeresen elküldtük!
Hiba történt!
INGATLAN ADATAI

Ingatlan jellege

ikerház

Belső terület

88 m²

Telek terület

302 m²

Tájolás

délnyugat

Építési állapot

új

Építési mód

tégla

Szobák száma

3 szoba

Terasz

14.1 m²

Épület szintje

1.

Épült

2025

Ingatlan állapot

kívül: új
belül: új

Szigetelés

15 cm

Fűtés

hőszivattyús

Komfort

összkomfort

Közműállapot

csatorna: bekötve
gáz: bekötve
villany: bekötve
víz: bekötve

Energetika

nincs megadva

Az időpont kérés naptár ikonja
HTML
Az időpont kérés naptár ikonja
PDF

Hasonló ingatlan hírdetések

Eladó új építésű családi ház, vagy kertes ház hirdetést keres Áporka területén?
Tekintse meg további ajánlatainkat!

eladó családi ház, Áporka

eladó családi ház

Prémium minőségű családi ház a Duna-partján!!

Pest megye, Áporka, Dunaparti üdülőterület
Prémium minőségű családi ház a Duna-partján!! Áporka a fővárostól mindössze rövid autóútra található, az 51-es útról könnyedén és gyorsan megközelíthető, így ideális választás mindazoknak, akik Bud...
Belső terület
93 m²
Telek terület
350 m²
Szobák
2

134.9 M Ft

eladó családi ház, Áporka

eladó családi ház

Közvetlen Duna parti, minden igényt kielégítő álomház Budapest vonzás körzetében.

Pest megye, Áporka, Dunaparti üdülőterület
Közvetlen Duna-parttal rendelkező exkluzív luxusrezidencia Áporkán — 30 km-re Budapesttől Áporka egyik legszebb részén, teljes intimitást élvezve kínáljuk eladásra ezt a különleges adottságokkal re...
Belső terület
222 m²
Telek terület
1086 m²
Szobák
3

395 M Ft

vízparti!
Vízparti
Pest megye - Áporka
Pest megye - Áporka
Pest megye - Áporka
Pest megye - Áporka
Pest megye - Áporka