Eladó új építésű ikerház - Kartal

KAPCSOLAT
Kómár-Benke Nikoletta


+36 70 396

almaestatekft@

Az időpont kérés naptár ikonja
IDŐPONTOT KÉREK
A visszahívás kérés telefon ikonja egy azt körbe ölelő nyíllal
VISSZAHÍVÁST KÉREK
Ajánlom egy ismerősömnek ikon
AJÁNLOM EGY ISMERŐSÖMNEK
Facebook megosztás ikon
MEGOSZTÁS

KAPCSOLATFELVÉTEL

Küldés

Az üzenetet sikeresen elküldtük!
Hiba történt!
INGATLAN ADATAI

Ingatlan jellege

ikerház

Belső terület

70 m²

Telek terület

400 m²

Tájolás

délnyugat

Építési állapot

új

Építési mód

tégla

Szobák száma

3 szoba

Szobák elhelyezkedése

külön nyílik min. 2 szoba

Épület szintje

1.

Épült

2026

Akadálymentes

részlegesen

Ingatlan állapot

kívül: új
belül: új

Klíma

előkészítve

Szigetelés

15 cm

Ablak szerkezete

3 rétegű thermoplan

Komfort

összkomfort

Parkolás

van fedetlen felszíni beálló

Közműállapot

csatorna: bekötve
gáz: nincs
villany: bekötve
víz: bekötve

Energetika

A++:

Az időpont kérés naptár ikonja
HTML
Az időpont kérés naptár ikonja
PDF
Eladó új építésű ikerház
Ingatlan azonosító:
61_aes

Pest megye, Kartal

Irányár

55 M Ft
(785.71 E Ft/㎡)

Szobák

3 szoba

Terület

70 m²

Telek terület

400 m²
INGATLAN LEÍRÁSA
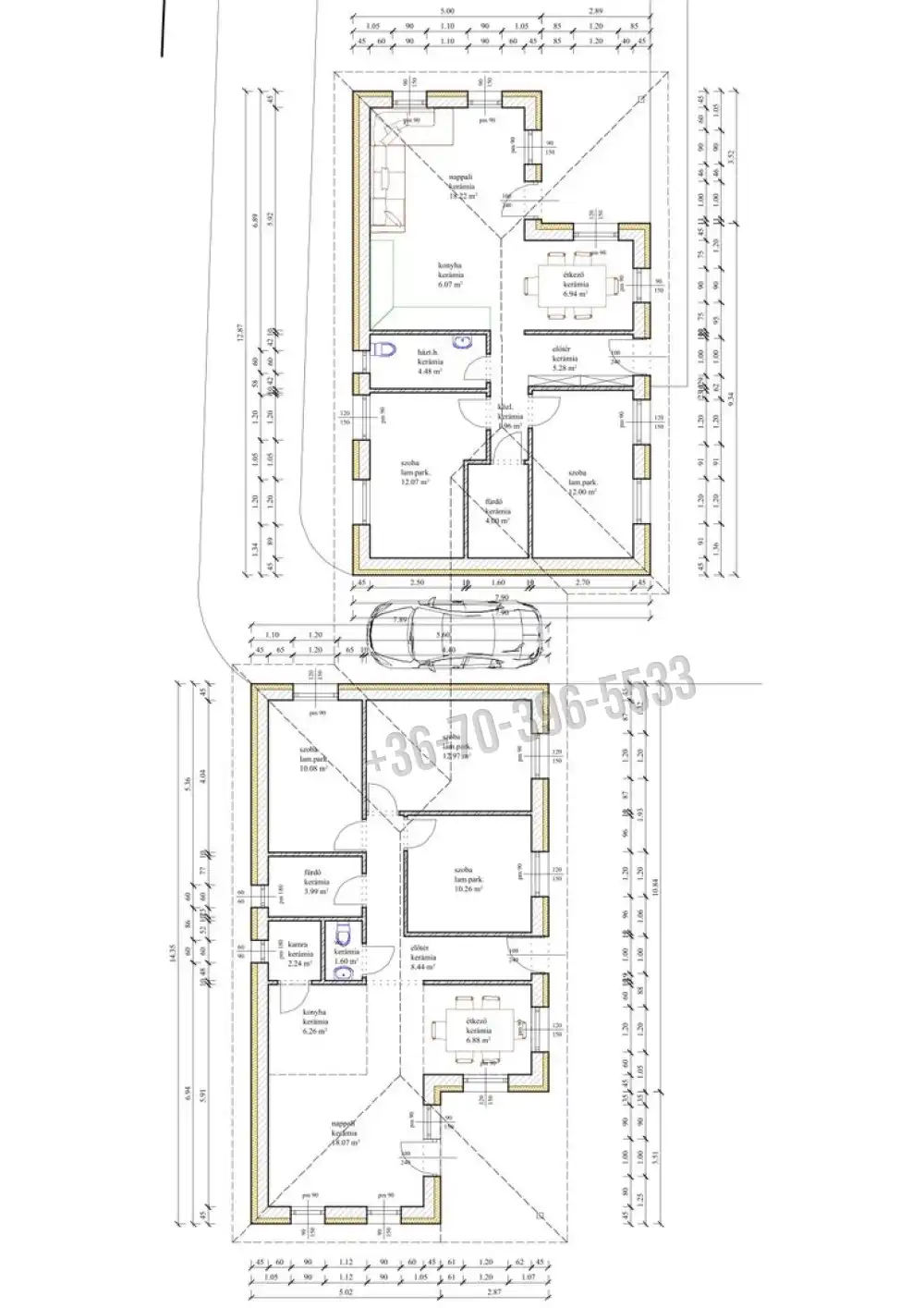
Pest Vármegyében, Gödöllőtől mindössze 15 percre Kartalon, aszfaltozott utcában, eladásra kínálok egy 900 nm-es telekre tervezett ikerházat.

AZ INGATLANOK GARÁZSON KERESZTŰL KAPCSOLÓDNAK EGYMÁSHOZ.
Mindkét házat földszintesre tervezték.

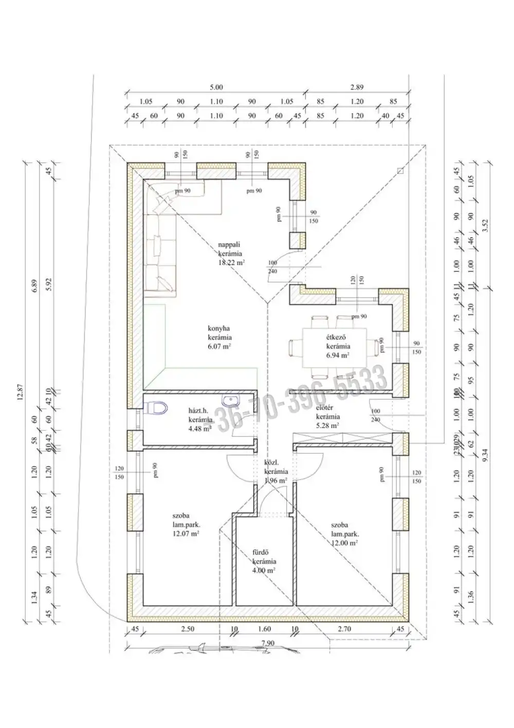
Első ház jellemzői:
- 400 nm-es kert
- nettó 70 nm ház + terasz
- tágas előtér (5,28 nm)
- mellékhelyiség + háztartási helyiség (4,48 nm)
- szoba (12, nm, 12.07 nm)
- nappali+étkező+konyha (31.23 nm)
- fürdőszoba (4 nm)
Vételár: 55.000.000 Ft.

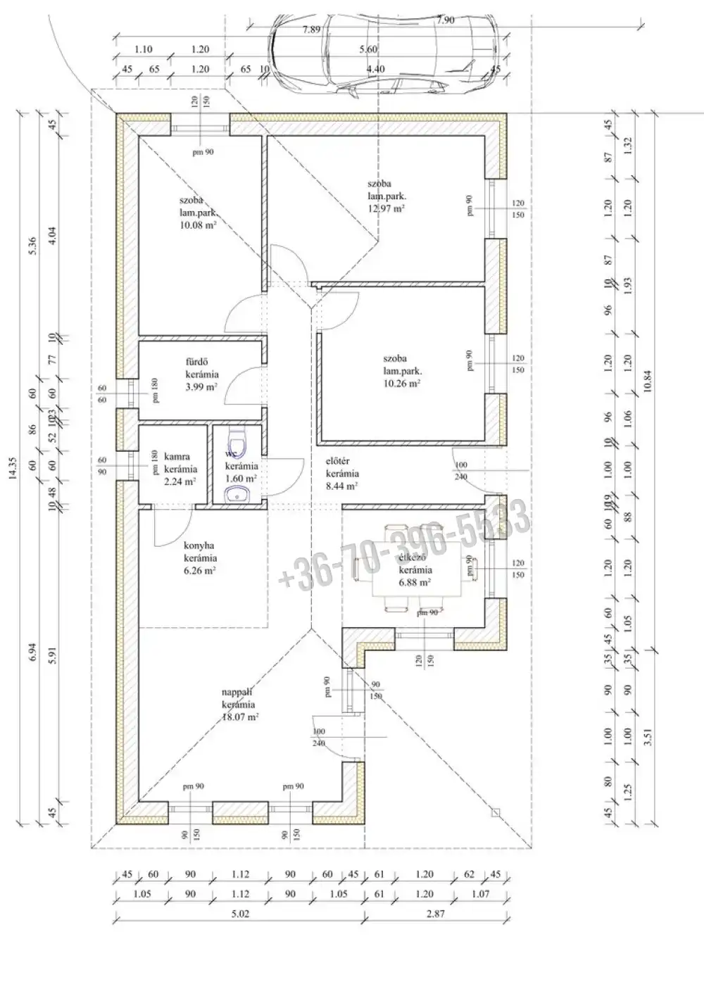
Hátsó ház jellemzői:
- 500 nm-es kert
- 81 nm- es ház + terasz
- tágas előtér (8.44 nm)
- mellékhelyiség (1,6 nm)
- 3 szoba (12,97 nm, 10.26 nm, 10.08 nm)
- nappali, étkező, konyha (31.21nm)
- spejz (2,24 nm)
- fürdőszoba (4 nm)
Vételár: 60.000.000 Ft.

Mind két ingatlan minőségi anyagokból épül, energiatakarékos, hőszivattyús fűtéssel, hőleadás padlófűtés. Részletes tájékoztatást, műszaki leírást és vállalást e-mail címre továbbítok.

Kert:
- körbe kerítve (zsaluköves kerítés)
- kis és nagykapu
- térkövezett járda és parkoló
- építési törmelékektől megtisztítva kerül átadásra

A közelben minden…
- Élelmiszerboltok, patika, posta
- Iskola, óvoda, buszmegálló, M3
Az ingatlan rugalmasan megtekinthető, 3%-os Otthon Start hitel és további piaci alapú hitel igénybe vehető a vásárlásnál.

Kulcsátadás szerződés aláírásától számítva 6 hónap.
Ezekkel támogatom a vásárlást:
- teljes körű DÍJMENTES hitelügyintézés
- ügyvédi háttértámogatás
Portfóliómban további igényes, új építésű ingatlanok várják. A Referens további hirdetései gombra kattintva érheti el őket.

Keressen bizalommal.

INGATLAN ADATAI

Ingatlan jellege
ikerház
Belső terület
70 m²
Telek terület
400 m²
Tájolás
délnyugat
Építési állapot
új
Építési mód
tégla
Szobák száma
3 szoba
Szobák elhelyezkedése
külön nyílik min. 2 szoba
Épület szintje
1.
Épült
2026
Akadálymentes
részlegesen
Ingatlan állapot
kívül: új
belül: új
Klíma
előkészítve
Szigetelés
15 cm
Ablak szerkezete
3 rétegű thermoplan
Komfort
összkomfort
Parkolás
van fedetlen felszíni beálló
Közműállapot
csatorna: bekötve
gáz: nincs
villany: bekötve
víz: bekötve
Energetika
A++:
TÉRKÉP

Pest megye, Kartal

Hitelkalkulátor


KAPCSOLAT
Kómár-Benke Nikoletta
Kómár-Benke Nikoletta


+36 70 396 5533

almaestatekft@gmail.com

KAPCSOLAT
Kómár-Benke Nikoletta

+36 70 396

almaestatekft@

Az időpont kérés naptár ikonja
IDŐPONTOT KÉREK
A visszahívás kérés telefon ikonja egy azt körbe ölelő nyíllal
VISSZAHÍVÁST KÉREK
Ajánlom egy ismerősömnek ikon
AJÁNLOM EGY ISMERŐSÖMNEK
Facebook megosztás ikon
MEGOSZTÁS

KAPCSOLATFELVÉTEL

Küldés

Az üzenetet sikeresen elküldtük!
Hiba történt!
INGATLAN ADATAI

Ingatlan jellege

ikerház

Belső terület

70 m²

Telek terület

400 m²

Tájolás

délnyugat

Építési állapot

új

Építési mód

tégla

Szobák száma

3 szoba

Szobák elhelyezkedése

külön nyílik min. 2 szoba

Épület szintje

1.

Épült

2026

Ingatlan állapot

kívül: új
belül: új

Klíma

előkészítve

Szigetelés

15 cm

Ablak szerkezete

3 rétegű thermoplan

Komfort

összkomfort

Parkolás

van fedetlen felszíni beálló

Közműállapot

csatorna: bekötve
gáz: nincs
villany: bekötve
víz: bekötve

Energetika

A++:

Az időpont kérés naptár ikonja
HTML
Az időpont kérés naptár ikonja
PDF

Hasonló ingatlan hírdetések

Eladó új építésű családi ház, vagy kertes ház hirdetést keres Kartal területén?
Tekintse meg további ajánlatainkat!

eladó új építésű családi ház, Kartal

eladó új építésű családi ház

Pest megye, Kartal, Lehel utca
Megvételre kínálunk Kartalon egy modern szemléletben megálmodott, igényes kivitelezésű családi házat, amely nem a megszokott sablonokat követi. Az épület kiváló elrendezéssel, átgondolt tervezéssel és...
Belső terület
112 m²
Telek terület
714 m²
Szobák
4

116.5 M Ft

eladó családi ház, Kartal

eladó családi ház

Pest megye, Kartal, Bartók Béla utca
Megvételre kínálunk Kartalon egy salakblokkos szerkezetű családi házat. Az ingatlan 88 m² hasznos alapterülettel rendelkezik, amelyhez egy félszuterén jellegű, fűtött műhely–garázs is kapcsolódik. ...
Belső terület
88 m²
Telek terület
516 m²
Szobák
3

71.5 M Ft

eladó családi ház, Kartal

eladó családi ház

Pest megye, Kartal
Megvételre kínálunk Kartalon egy 1 871 m²-es telken lévő, tégla falazatú 59,6m2 nettó alapterületű 2 szoba ,konyha, étkező, fürdő helyiségekből álló családi házat, amely 3 éve teljeskörű felújÍtáson e...
Belső terület
60 m²
Telek terület
1871 m²
Szobák
3

79.9 M Ft

eladó új építésű ikerház, Kartal

eladó új építésű ikerház

Pest megye, Kartal
Pest Vármegyében, Gödöllőtől mindössze 15 percre Kartalon, aszfaltozott utcában, eladásra kínálok egy 900 nm-es telekre tervezett ikerházat. AZ INGATLANOK GARÁZSON KERESZTŰL KAPCSOLÓDNAK EGYMÁSHOZ....
Belső terület
81 m²
Telek terület
500 m²
Szobák
4

60 M Ft

eladó családi ház, Kartal

eladó családi ház

Pest megye, Kartal, Kodály Zoltán utca
!!ÁRCSÖKKENTÉS!! AZONNAL KÖLTÖZHETŐ! Az ingatlan nem hitelképes! Az ingatlanpiacon egy igazán különleges lehetőség várja Önt, amely ideális választás lehet nagycsaládosok számára, akik egy tágas...
Belső terület
195 m²
Telek terület
574 m²
Szobák
5+4

55 M Ft

eladó új építésű családi ház, Kartal

eladó új építésű családi ház

Pest megye, Kartal
***ELADÓ ÚJ ÉPÍTÉSŰ HŐSZIVATTYÚS, ENERGIATAKARÉKOS, 260 nm-es, CSALÁDI HÁZ KARTAL CSENDES RÉSZÉN!*** Eladásra kínálok egy 2000 NM-ES TELEKEN fekvő, 260 NM-ES, KÉTSZINTES, ÚJ ÉPÍTÉSŰ családi házat, ...
Belső terület
260 m²
Telek terület
2000 m²
Szobák
5

165 M Ft

Pest megye - Kartal
Pest megye - Kartal
Pest megye - Kartal
Pest megye - Kartal
Pest megye - Kartal
Pest megye - Kartal
Pest megye - Kartal
Pest megye - Kartal
Pest megye - Kartal