Eladó új építésű ikerház - Kiskunlacháza

Új építésű!
Új építésű
KAPCSOLAT
Belák Ilona Kinga


+36 20 227

b.ilonakinga@

Az időpont kérés naptár ikonja
IDŐPONTOT KÉREK
A visszahívás kérés telefon ikonja egy azt körbe ölelő nyíllal
VISSZAHÍVÁST KÉREK
Ajánlom egy ismerősömnek ikon
AJÁNLOM EGY ISMERŐSÖMNEK
Facebook megosztás ikon
MEGOSZTÁS

KAPCSOLATFELVÉTEL

Küldés

Az üzenetet sikeresen elküldtük!
Hiba történt!
INGATLAN ADATAI

Ingatlan jellege

ikerház

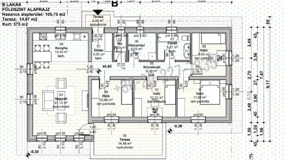
Belső terület

106 m²

Telek terület

573 m²

Tájolás

délnyugat

Építési állapot

új

Építési mód

tégla

Szobák száma

4 szoba

Terasz

14.46 m²

Épület szintje

1.

Épült

2025

Ingatlan állapot

kívül: új
belül: új

Szigetelés

15 cm

Fűtés

hőszivattyús

Komfort

összkomfort

Közműállapot

csatorna: bekötve
gáz: bekötve
villany: bekötve
víz: bekötve

Energetika

nincs megadva

Extrák

utolsó lehetőség

Az időpont kérés naptár ikonja
HTML
Az időpont kérés naptár ikonja
PDF
Eladó új építésű ikerház
Belső azonosító:
35096735
Ingatlan azonosító:
348_isz

Pest megye, Kiskunlacháza

Irányár

79.5 M Ft
(750 E Ft/㎡)

Szobák

4 szoba

Terület

106 m²

Telek terület

573 m²
INGATLAN LEÍRÁSA
ÚJ ÉPÍTÉSŰ CSALÁDI HÁZ
3% OTTHON START HITELLEL MEGVÁSÁROLHATÓ

Kiskunlacháza – nyugodt, családias környezetben

FŐBB ADATOK
106 m² hasznos alapterület
Amerikai konyhás nappali + 3 hálószoba
573 m² saját kert
Teraszkapcsolatos nappali

750.000 Ft / m²
Átadás: 2026. február–március

MODERN MŰSZAKI TARTALOM
Hőszivattyús fűtés
Padlófűtés
Korszerű szigetelés és modern nyílászárók
Praktikus, jól átgondolt alaprajz
Alacsony rezsiköltség

MIÉRT JÓ VÁLASZTÁS
Új építés, nincs felújítási költség
Ideális családosoknak
Értéktartó befektetés
Otthon Start (3%) és CSOK Plusz lehetőség

INGATLAN ADATAI

Ingatlan jellege
ikerház
Belső terület
106 m²
Telek terület
573 m²
Tájolás
délnyugat
Építési állapot
új
Építési mód
tégla
Szobák száma
4 szoba
Terasz
14.46 m²
Épület szintje
1.
Épült
2025
Ingatlan állapot
kívül: új
belül: új
Szigetelés
15 cm
Fűtés
hőszivattyús
Komfort
összkomfort
Közműállapot
csatorna: bekötve
gáz: bekötve
villany: bekötve
víz: bekötve
Energetika
nincs megadva
Extrák
utolsó lehetőség
TÉRKÉP

Pest megye, Kiskunlacháza

Hitelkalkulátor


KAPCSOLAT
Belák Ilona Kinga
Belák Ilona Kinga


+36 20 227 7335

b.ilonakinga@gmail.com

KAPCSOLAT
Belák Ilona Kinga

+36 20 227

b.ilonakinga@

Az időpont kérés naptár ikonja
IDŐPONTOT KÉREK
A visszahívás kérés telefon ikonja egy azt körbe ölelő nyíllal
VISSZAHÍVÁST KÉREK
Ajánlom egy ismerősömnek ikon
AJÁNLOM EGY ISMERŐSÖMNEK
Facebook megosztás ikon
MEGOSZTÁS

KAPCSOLATFELVÉTEL

Küldés

Az üzenetet sikeresen elküldtük!
Hiba történt!
INGATLAN ADATAI

Ingatlan jellege

ikerház

Belső terület

106 m²

Telek terület

573 m²

Tájolás

délnyugat

Építési állapot

új

Építési mód

tégla

Szobák száma

4 szoba

Terasz

14.46 m²

Épület szintje

1.

Épült

2025

Ingatlan állapot

kívül: új
belül: új

Szigetelés

15 cm

Fűtés

hőszivattyús

Komfort

összkomfort

Közműállapot

csatorna: bekötve
gáz: bekötve
villany: bekötve
víz: bekötve

Energetika

nincs megadva

Extrák

utolsó lehetőség

Az időpont kérés naptár ikonja
HTML
Az időpont kérés naptár ikonja
PDF

Hasonló ingatlan hírdetések

Eladó új építésű családi ház, vagy kertes ház hirdetést keres Kiskunlacháza területén?
Tekintse meg további ajánlatainkat!

eladó új építésű ikerház, Kiskunlacháza

eladó új építésű ikerház

Pest megye, Kiskunlacháza
Modern otthon, ahol a nyugalom találkozik a minőséggel – Kiskunlacháza Ha egy olyan helyet keres, ahol a város zaja már csak távoli emlék, de a főváros mégis könnyen elérhető, akkor ez az új építés...
Belső terület
47 m²
Telek terület
200 m²
Szobák
2

52.9 M Ft

eladó új építésű sorház, Kiskunlacháza

eladó új építésű sorház

Azonnal költözhető, energiatakarékos lakás várja saját kerttel.

Pest megye, Kiskunlacháza
Újszerű, azonnal költözhető társasházi lakások eladók Kiskunlacházán – Budapest vonzáskörzetében! Kiskunlacházán, Budapest gyorsan elérhető vonzáskörzetében kínálunk eladásra teljes körűen felújíto...
Belső terület
36 m²
Telek terület
1 m²
Szobák
1+1

36 M Ft

36 M Ft

azonnal költözhető
Azonnal költözhető
eladó ikerház, Kiskunlacháza

eladó ikerház

Pest megye, Kiskunlacháza, Központ
Eladó felújított lakás tornácos ikerházban Kiskunlacháza központjában – akár befektetésnek is! Az ingatlan 2 ingatlanból áll,melyből az egyik már gazdára talált.Az épület vegyes falazatú és minden ...
Belső terület
39 m²
Telek terület
300 m²
Szobák
1+2

38.7 M Ft

eladó családi ház, Kiskunlacháza

eladó családi ház

Pest megye, Kiskunlacháza
Eladó kétgenerációs családi ház Kiskunlacházán – két külön lakrésszel, kiváló elhelyezkedéssel! Kiskunlacháza csendes, rendezett kertvárosi részén, remek tömegközlekedési adottságokkal kínálunk meg...
Belső terület
121 m²
Telek terület
846 m²
Szobák
4

59.9 M Ft

eladó családi ház, Kiskunlacháza

eladó családi ház

Pest megye, Kiskunlacháza
Kiskunlacháza nyugodt, kertvárosi részén eladó egy 328 m²-es telken álló, 76 m²-es, teljeskörűen felújított, 3 hálószobás, nagy étkező-konyhás nappalival rendelkező, jó beosztású, összkomfortos család...
Belső terület
76 m²
Telek terület
328 m²
Szobák
3

54.9 M Ft

eladó új építésű családi ház, Kiskunlacháza

eladó új építésű családi ház

Pest megye, Kiskunlacháza, Központ
Új építésű, modern, különálló családi ház Kiskunlacházán – 99m² alapterület, 4 szoba, energiatakarékos fűtés! Eladó egy új építésű, modern különálló családi ház Kiskunlacházán, kényelmes, átgondolt...
Belső terület
99 m²
Telek terület
389 m²
Szobák
4

73 M Ft

akciós ár
Akciós
eladó új építésű családi ház, Kiskunlacháza

eladó új építésű családi ház

Újépítésű önálló családi ház Kiskunlacházán!

Pest megye, Kiskunlacháza
Új építésű otthon Kiskunlacházán – költözz be azonnal, élvezd a kényelmet! CSOK PLUSZRA, 3% HITELRE IS ALKALMAS! Eladó Kiskunlacházán egy nettó 106 m²-es, tégla építésű, 2024-ben elkészült csalá...
Belső terület
106 m²
Telek terület
500 m²
Szobák
4

87.9 M Ft

eladó családi ház, Kiskunlacháza

eladó családi ház

Pest megye, Kiskunlacháza, Pereg
Az 51-es főút mentén található Kiskunlacházán került eladó sorba egy igazán sokoldalú és tágas ingatlan, amely nemcsak kényelmes, de rengeteg lehetőséget rejt magában: Az 1370 nm-es telken helyet kap...
Belső terület
85 m²
Telek terület
1370 m²
Szobák
3

64.9 M Ft

alkalmi vétel
Alkalmi vétel
Pest megye - Kiskunlacháza
Pest megye - Kiskunlacháza
Pest megye - Kiskunlacháza
Pest megye - Kiskunlacháza
Pest megye - Kiskunlacháza
Pest megye - Kiskunlacháza