Eladó új építésű ikerház - Őrbottyán

Új építésű!
Új építésű
KAPCSOLAT
Kiss Jutka


+36 20 334

arenaingatlanok@

Az időpont kérés naptár ikonja
IDŐPONTOT KÉREK
A visszahívás kérés telefon ikonja egy azt körbe ölelő nyíllal
VISSZAHÍVÁST KÉREK
Ajánlom egy ismerősömnek ikon
AJÁNLOM EGY ISMERŐSÖMNEK
Facebook megosztás ikon
MEGOSZTÁS

KAPCSOLATFELVÉTEL

Küldés

Az üzenetet sikeresen elküldtük!
Hiba történt!
INGATLAN ADATAI

Ingatlan jellege

ikerház

Belső terület

91 m²

Telek terület

510 m²

Tájolás

délnyugat

Építési állapot

új

Építési mód

tégla

Szobák száma

4 szoba

Terasz

12 m²

Épület szintje

1.

Épült

2026

Ingatlan állapot

kívül: új
belül: új

Szigetelés

10 cm

Fűtés

hőszivattyús

Komfort

duplakomfort

Parkolás

van fedetlen felszíni beálló

Közműállapot

csatorna: bekötve
gáz: nincs
villany: bekötve
víz: bekötve

Energetika

nincs megadva

Az időpont kérés naptár ikonja
HTML
Az időpont kérés naptár ikonja
PDF
Eladó új építésű ikerház
Ingatlan azonosító:
1342_ar

Pest megye, Őrbottyán

Irányár

89.5 M Ft
(983.52 E Ft/㎡)

Szobák

4 szoba

Terület

91 m²

Telek terület

510 m²
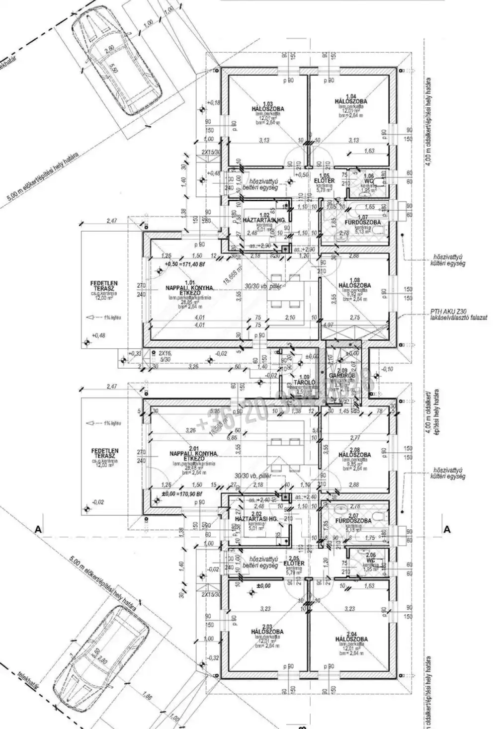
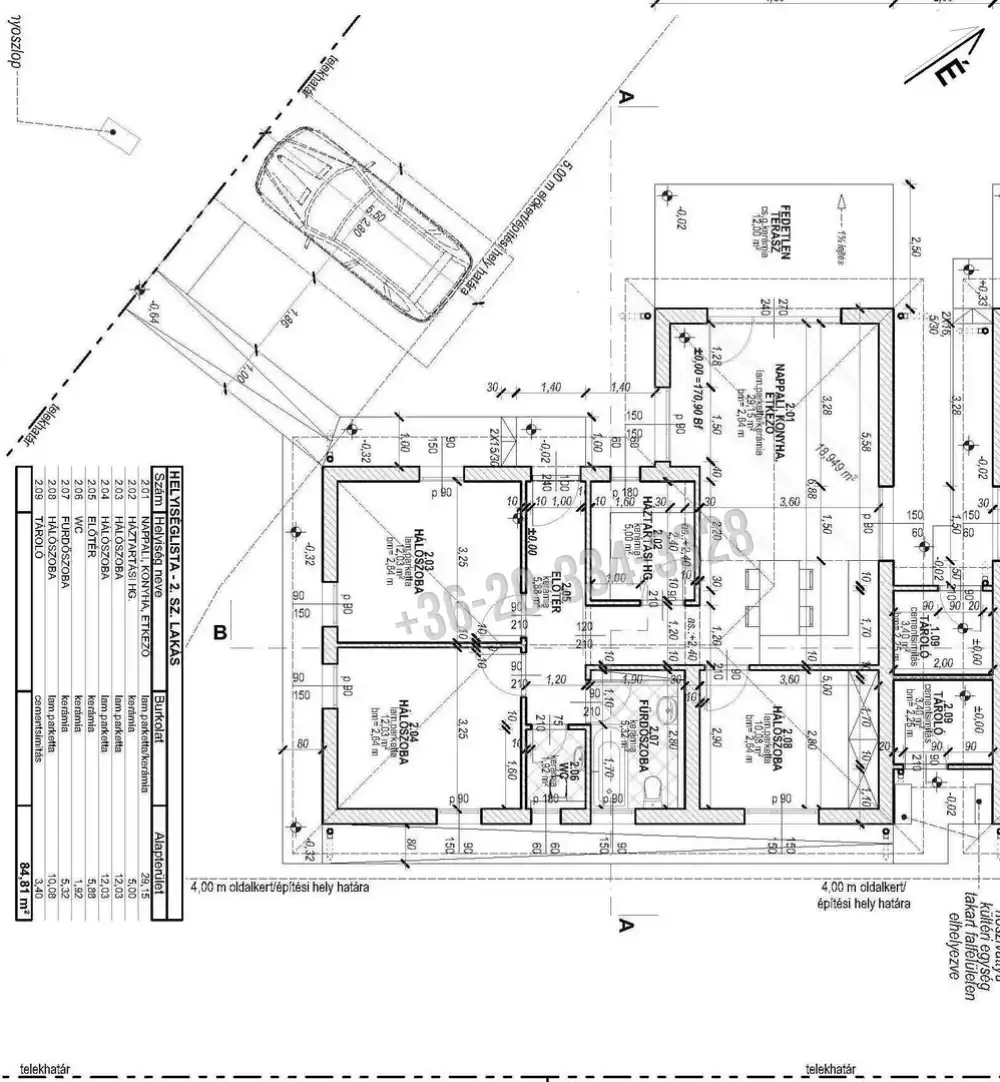
INGATLAN LEÍRÁSA
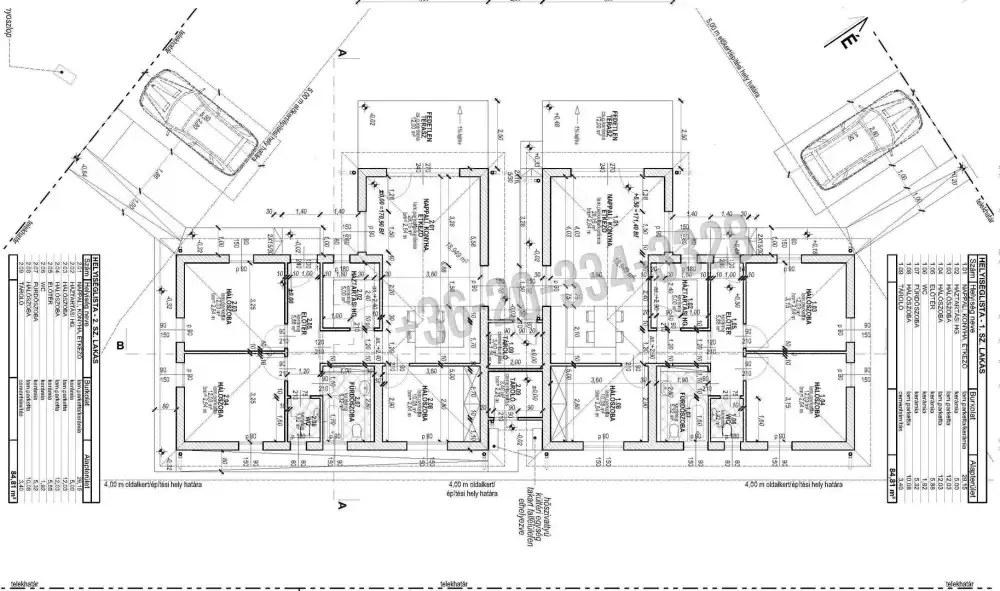
Eladó Őrbottyánban, ÚJ ÉPÍTÉSŰ, csak a tárolóknál érintkező, ENERGIATAKARÉKOS ikerház!

BERUHÁZÓI ÁRON!

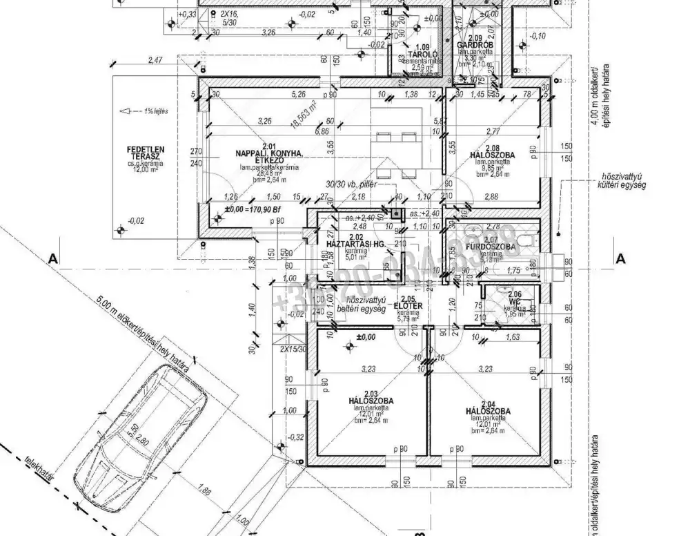
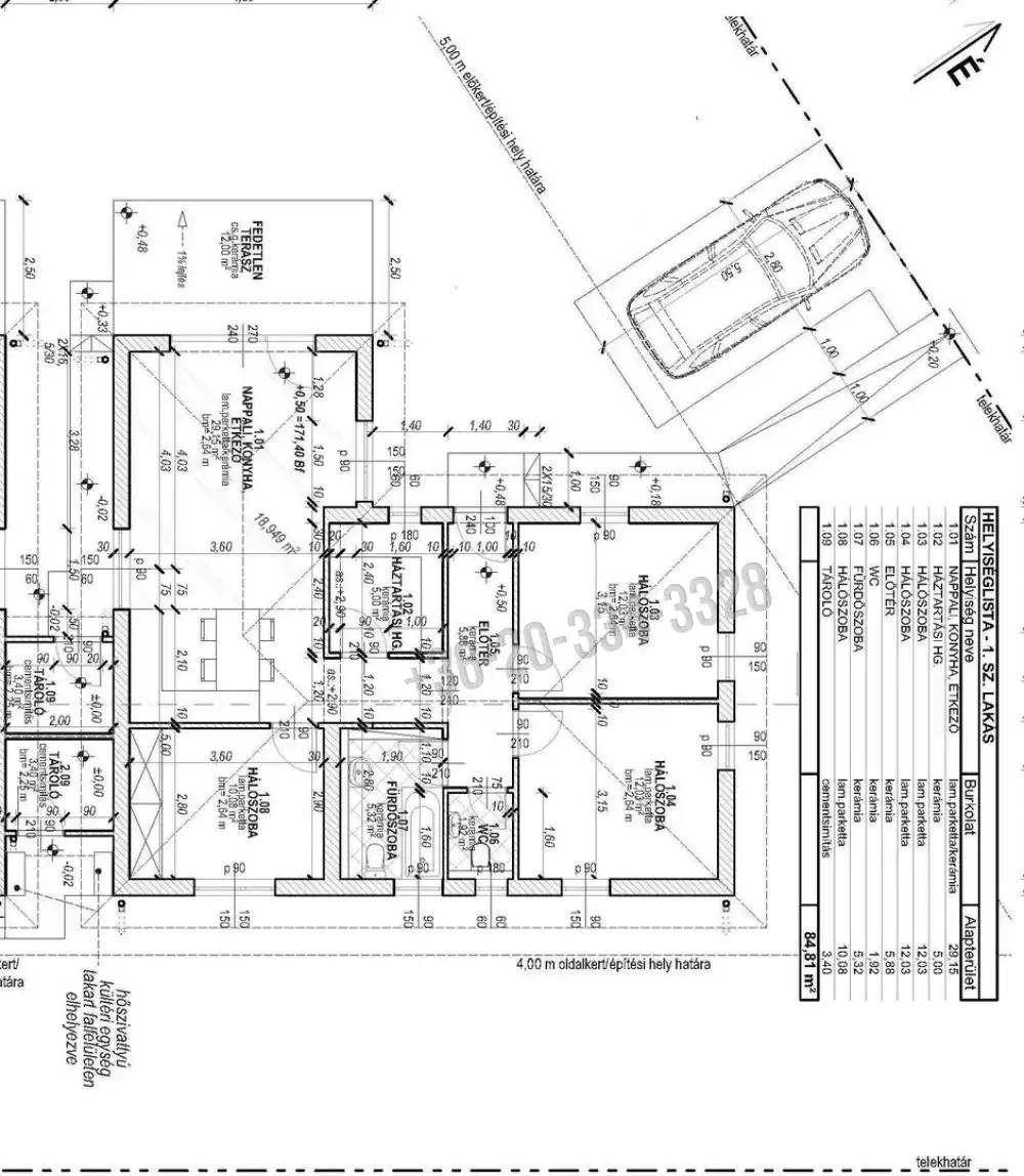
Eladó Őrbottyán csendes, szép kertvárosi részén, 1020 nm-es telekre épülő, csak a tárolóknál érintkező, nettó 85 nm-es, amerikai konyhás nappali + 3 szobás ikerház, gépkocsi beállóval, saját 510 nm-es telekkel.

Minden igényt kielégítő, praktikus belső kialakítás:
-29 nm-es amerikai konyhás nappali, 12 nm-es terasz kapcsolattal, 3 hálószoba, fürdőszoba, vendég WC, háztartási helyiség, tároló, előszoba-közlekedő.

Az épület korszerű, minőségi anyagokból és a mai kor igényeinek megfelelő technológiával készül:
-a főfalak 30-as Porotherm okos téglából készülnek, 10 cm-es hőszigeteléssel,
-a fűtést kényelmes, gazdaságos hőszivattyús fűtés biztosítja, padlófűtéssel;
-fehér színű, 3 rétegű üvegezésű műanyag nyílászárók kerülnek beépítésre;
-burkolatok, szaniterek, belső ajtók választhatóak, így saját ízlése szerint készül el leendő otthona.

A ház kulcsrakészen, utcai és a lakásokat elválasztó kerítéssel, telken belül kialakított fedetlen gépkocsi beállóval kerül átadásra.

Őrbottyán a fővárostól 30 km-re elhelyezkedő, csendes, nyugodt város, ahol minden megtalálható, ami a mindennapi élethez szükséges.
Budapest és a közeli települések – Veresegyház, Gödöllő, Vác – vonattal és busszal is megközelíthető.

Hívjon a részletekért, a részletes műszaki tartalomért.

Irodánk ÚJ ÉPÍTÉSŰ ingatlanok specialistája, felkészült értékesítőkkel!
Jogi háttérrel (kedvező díjazással) és az egyik legjobb, bank semleges HITELKÖZVETÍTŐVEL segítjük vásárlását.
Hitelszakértőnk teljes körű ügyintézéssel áll Vevőink rendelkezésére, legyen szó OTTHON START, CSOK+, BABAVÁRÓ vagy a legjobb piaci hitelről.
Új építésű ingatlanjainkat BERUHÁZÓI ÁRON értékesítjük!

Amennyiben értékesíteni kívánja ingatlanát, irodánk egyedi, kedvező ajánlattal áll rendelkezésére!

INGATLAN ADATAI

Ingatlan jellege
ikerház
Belső terület
91 m²
Telek terület
510 m²
Tájolás
délnyugat
Építési állapot
új
Építési mód
tégla
Szobák száma
4 szoba
Terasz
12 m²
Épület szintje
1.
Épült
2026
Ingatlan állapot
kívül: új
belül: új
Szigetelés
10 cm
Fűtés
hőszivattyús
Komfort
duplakomfort
Parkolás
van fedetlen felszíni beálló
Közműállapot
csatorna: bekötve
gáz: nincs
villany: bekötve
víz: bekötve
Energetika
nincs megadva
TÉRKÉP

Pest megye, Őrbottyán

Hitelkalkulátor


KAPCSOLAT
Kiss Jutka
Kiss Jutka


+36 20 334 3328

arenaingatlanok@gmail.com

KAPCSOLAT
Kiss Jutka

+36 20 334

arenaingatlanok@

Az időpont kérés naptár ikonja
IDŐPONTOT KÉREK
A visszahívás kérés telefon ikonja egy azt körbe ölelő nyíllal
VISSZAHÍVÁST KÉREK
Ajánlom egy ismerősömnek ikon
AJÁNLOM EGY ISMERŐSÖMNEK
Facebook megosztás ikon
MEGOSZTÁS

KAPCSOLATFELVÉTEL

Küldés

Az üzenetet sikeresen elküldtük!
Hiba történt!
INGATLAN ADATAI

Ingatlan jellege

ikerház

Belső terület

91 m²

Telek terület

510 m²

Tájolás

délnyugat

Építési állapot

új

Építési mód

tégla

Szobák száma

4 szoba

Terasz

12 m²

Épület szintje

1.

Épült

2026

Ingatlan állapot

kívül: új
belül: új

Szigetelés

10 cm

Fűtés

hőszivattyús

Komfort

duplakomfort

Parkolás

van fedetlen felszíni beálló

Közműállapot

csatorna: bekötve
gáz: nincs
villany: bekötve
víz: bekötve

Energetika

nincs megadva

Az időpont kérés naptár ikonja
HTML
Az időpont kérés naptár ikonja
PDF

Hasonló ingatlan hírdetések

Eladó új építésű családi ház, vagy kertes ház hirdetést keres Őrbottyán területén?
Tekintse meg további ajánlatainkat!

eladó új építésű ikerház, Őrbottyán

eladó új építésű ikerház

Pest megye, Őrbottyán
Eladó kulcsrakész állapotú ikerház Őrbottyán belterületén, kiváló megközelítéssel. Jelenleg építés alatt áll. Átadás 2026 év vége. Őrbottyán belterületén, jól megközelíthető utcában eladó egy 70...
Belső terület
68 m²
Telek terület
400 m²
Szobák
3

79.9 M Ft

eladó új építésű ikerház, Őrbottyán

eladó új építésű ikerház

Pest megye, Őrbottyán
Őrbottyánban eladó egy újépítésű ikerházfél! Az ingatlan alapterülete 80 nm, tágas amerikai konyhás nappali, három hálószoba, fürdőszoba, és háztartási helyiség kialakítású. A nappaliból közvetlen ...
Belső terület
70 m²
Telek terület
530 m²
Szobák
4

84.9 M Ft

Új építésű!
Új építésű
eladó családi ház, Őrbottyán

eladó családi ház

Pest megye, Őrbottyán, Dózsa György utca
Őrbottyán, Dózsa György utca 10. szám alatt eladó egy téglaépítésű tehermentes, kétszobás 85m2-es családi ház, melléképületekkel, 686 m²-es, teljes közművel ellátott telken. Főbb adatok és műszaki t...
Belső terület
85 m²
Telek terület
686 m²
Szobák
2

44.9 M Ft

eladás folyamatban!
Eladás folyamatban
eladó családi ház, Őrbottyán

eladó családi ház

Pest megye, Őrbottyán
KÉT HÁZ , egy igazi GYÖNGYSZEM ŐRBOTTYÁN szívében! Ha nyugalmat, természetet és tágas életteret keresel, akkor ez az ingatlan pont Neked való! Őrbottyánban, a Gödöllői-dombság szelíd lankái közöt...
Belső terület
236 m²
Telek terület
1448 m²
Szobák
5

129 M Ft

eladó új építésű ikerház, Őrbottyán

eladó új építésű ikerház

Pest megye, Őrbottyán
ÚJ ÉPÍTÉSŰ, ENERGIATAKARÉKOS, CSAK A TÁROLÓKNÁL ÉRINTKEZŐ ikerház! MÁR CSAK AZ EGYIK OLDAL SZABAD! BERUHÁZÓI ÁRON! Eladó Őrbottyán új lakóparkjában, ENERGIATAKARÉKOS, amerikai konyhás nappali +...
Belső terület
93 m²
Telek terület
430 m²
Szobák
4

98.5 M Ft

Új építésű!
Új építésű
eladó új építésű családi ház, Őrbottyán

eladó új építésű családi ház

Pest megye, Őrbottyán
ÚJ ÉPÍTÉSŰ, ENERGIATAKARÉKOS családi ház! BERUHÁZÓI ÁRON! Eladó Őrbottyán új lakóparkjában, ENERGIATAKARÉKOS, amerikai konyhás nappali + 3 szobás, dupla komfortos, élhető terekkel tervezett, pra...
Belső terület
102 m²
Telek terület
388 m²
Szobák
4

105 M Ft

Új építésű!
Új építésű
eladó családi ház, Őrbottyán

eladó családi ház

Pest megye, Őrbottyán, Őrszentmiklós
ŐRBOTTYÁNBAN 3 LAKÁSOS CSALÁDI HÁZ ELADÓ! Erdőkerteshez, Veresegyházhoz közeli részen 1745 nm-es összközműves telken lévő 247 nm-es ingatlan eladó! Az épület 2000-ben épült. ÖSSZEKÖLTÖZŐK FIGYELM...
Belső terület
292 m²
Telek terület
1745 m²
Szobák
9

145 M Ft

eladó családi ház, Őrbottyán

eladó családi ház

Pest megye, Őrbottyán, Őrszentmiklós
Eladó családi ház Őrbottyánban, kedvező áron, zöldövezeti részen! Eladó egy téglaépítésű, masszív szerkezetű családi ház Őrbottyán csendes, barátságos környékén. Az ingatlan a 80-as években épült, ...
Belső terület
90 m²
Telek terület
1125 m²
Szobák
3+1

69 M Ft

Pest megye - Őrbottyán
Pest megye - Őrbottyán
Pest megye - Őrbottyán
Pest megye - Őrbottyán
Pest megye - Őrbottyán
Pest megye - Őrbottyán
Pest megye - Őrbottyán