Eladó új építésű téglalakás - Budapest, XIII. kerület

KAPCSOLAT
Schablik Erika


+36 30 783

schablik.erika@

Az időpont kérés naptár ikonja
IDŐPONTOT KÉREK
A visszahívás kérés telefon ikonja egy azt körbe ölelő nyíllal
VISSZAHÍVÁST KÉREK
Ajánlom egy ismerősömnek ikon
AJÁNLOM EGY ISMERŐSÖMNEK
Facebook megosztás ikon
MEGOSZTÁS

KAPCSOLATFELVÉTEL

Küldés

Az üzenetet sikeresen elküldtük!
Hiba történt!
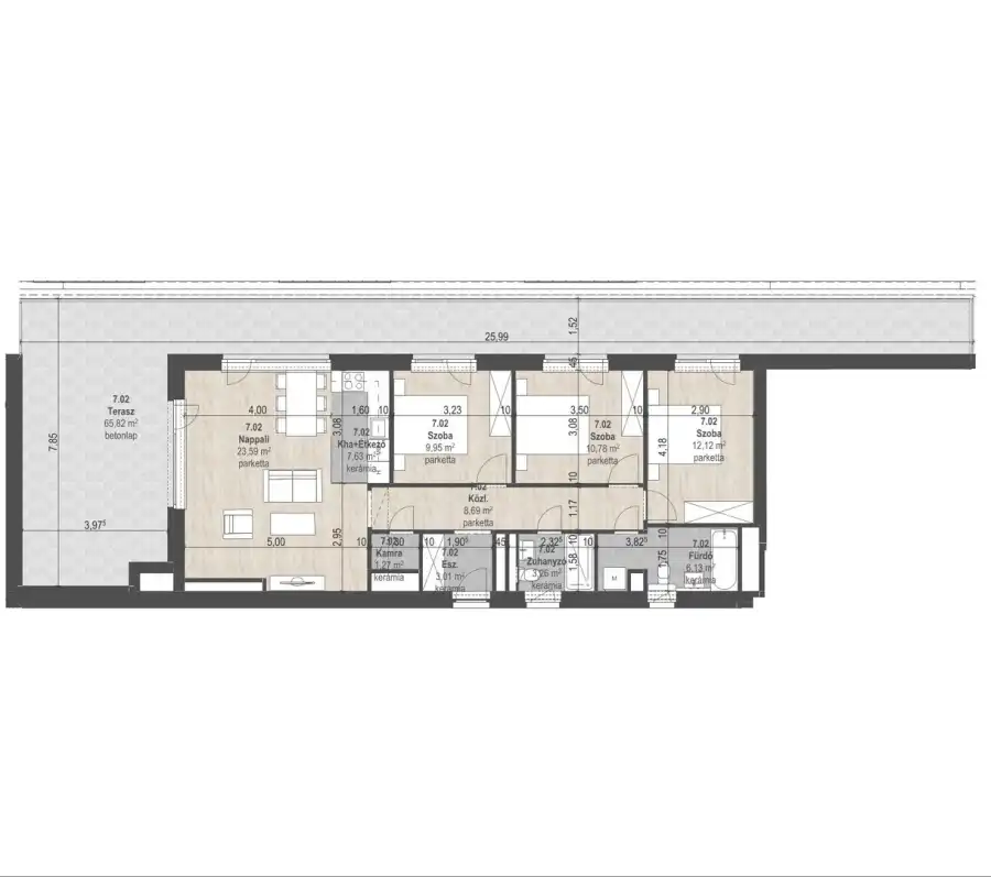
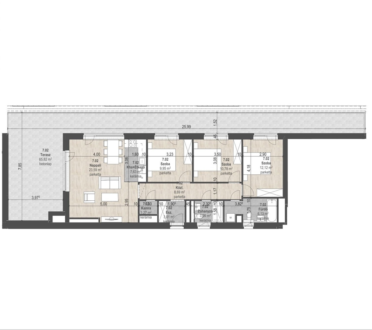
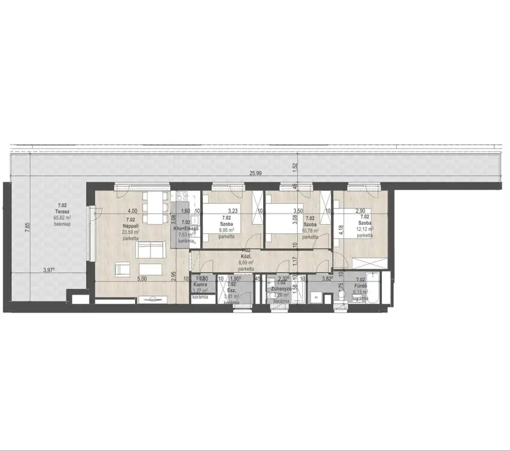
INGATLAN ADATAI

Ingatlan jellege

téglalakás

Belső terület

86 m²

Tájolás

nyugat

Építési állapot

új

Építési mód

tégla

Szobák száma

4 szoba

Emelet

7.

Épület szintje

7.

Épült

2027

Lift

van

Ingatlan állapot

kívül: új
belül: új

Szigetelés

15 cm

Ablak szerkezete

3 rétegű thermoplan

Fűtés

hőszivattyús

Komfort

összkomfort

Parkolás

van teremgarázs

Kilátás

utcára, parkra

Energetika

nincs megadva

Az időpont kérés naptár ikonja
HTML
Az időpont kérés naptár ikonja
PDF
Eladó új építésű téglalakás
Belső azonosító:
7.02
Ingatlan azonosító:
135_pln

Budapest, XIII. kerület, Lőportárdűlő

Irányár

205.9 M Ft
(2.39 M Ft/㎡)

Szobák

4 szoba

Emelet

7

Terület

86 m²
INGATLAN LEÍRÁSA
Lakóparkunk Budapest, XIII. kerületének egyik legélhetőbb részén, a folyamatosan modernizálódó Gömb utcában található, ahol
az újszerű kialakítás, a gondos építészeti megoldások és a városi életstílus harmonikus egységet alkot.
Lakóparkunk 54 db lakással, 2 db kereskedelmi egységgel, 58db tárolóval és 58db teremgarázshellyel rendelkezik.
A társasház lakásai ideális választás lehet első otthonnak, belvárosi rezidenciának, vagy akár értékálló befektetésnek.

Tervezett átadás: 2027. augusztus 30.

ELŐNYÖK

• Beépített elektromos redőny minden nyílászáróra

• Belső díszkertek

• Hőszivattyús mennyezeti fűtés-hűtés

• Választható burkolatok és szaniterek

• Opcionálisan válaszható garázs és tároló különböző méretekben

• Kedvező fizetési ütemezés

INGATLAN ADATAI

Ingatlan jellege
téglalakás
Belső terület
86 m²
Tájolás
nyugat
Építési állapot
új
Építési mód
tégla
Szobák száma
4 szoba
Emelet
7.
Épület szintje
7.
Épült
2027
Lift
van
Ingatlan állapot
kívül: új
belül: új
Szigetelés
15 cm
Ablak szerkezete
3 rétegű thermoplan
Fűtés
hőszivattyús
Komfort
összkomfort
Parkolás
van teremgarázs
Kilátás
utcára, parkra
Energetika
nincs megadva
TÉRKÉP

Budapest, XIII. kerület, Lőportárdűlő

Hitelkalkulátor


KAPCSOLAT
Schablik Erika
Schablik Erika


+36 30 783 9009

schablik.erika@planity.hu

KAPCSOLAT
Schablik Erika

+36 30 783

schablik.erika@

Az időpont kérés naptár ikonja
IDŐPONTOT KÉREK
A visszahívás kérés telefon ikonja egy azt körbe ölelő nyíllal
VISSZAHÍVÁST KÉREK
Ajánlom egy ismerősömnek ikon
AJÁNLOM EGY ISMERŐSÖMNEK
Facebook megosztás ikon
MEGOSZTÁS

KAPCSOLATFELVÉTEL

Küldés

Az üzenetet sikeresen elküldtük!
Hiba történt!
INGATLAN ADATAI

Ingatlan jellege

téglalakás

Belső terület

86 m²

Tájolás

nyugat

Építési állapot

új

Építési mód

tégla

Szobák száma

4 szoba

Emelet

7.

Épület szintje

7.

Épült

2027

Lift

van

Ingatlan állapot

kívül: új
belül: új

Szigetelés

15 cm

Ablak szerkezete

3 rétegű thermoplan

Fűtés

hőszivattyús

Komfort

összkomfort

Parkolás

van teremgarázs

Kilátás

utcára, parkra

Energetika

nincs megadva

Az időpont kérés naptár ikonja
HTML
Az időpont kérés naptár ikonja
PDF

Hasonló ingatlan hírdetések

Eladó új építésű tégla-, vagy panellakás hirdetést keres Budapesten a XIII. kerületben?
Tekintse meg további ajánlatainkat!

eladó új építésű téglalakás, Budapest, XIII. kerület

eladó új építésű téglalakás

Budapest, XIII. kerület, Angyalföld
2 hónapon belül költözhető új építésű lakások a XIII. kerületben – HUN4 Lakópark, Hun utca Budapest XIII. kerületében, Angyalföld dinamikusan fejlődő részén, a Hun utca és Csata utca sarkán kínálunk ...
Belső terület
66 m²
Szobák
3
Emelet
3

121.68 M Ft

eladó új építésű téglalakás, Budapest, XIII. kerület

eladó új építésű téglalakás

Budapest, XIII. kerület, Angyalföld
2 hónapon belül költözhető új építésű lakások a XIII. kerületben – HUN4 Lakópark, Hun utca Budapest XIII. kerületében, Angyalföld dinamikusan fejlődő részén, a Hun utca és Csata utca sarkán kínálunk ...
Belső terület
79 m²
Szobák
3
Emelet
2

150.15 M Ft

eladó új építésű téglalakás, Budapest, XIII. kerület

eladó új építésű téglalakás

Budapest, XIII. kerület, Angyalföld
2 hónapon belül költözhető új építésű lakások a XIII. kerületben – HUN4 Lakópark, Hun utca Budapest XIII. kerületében, Angyalföld dinamikusan fejlődő részén, a Hun utca és Csata utca sarkán kínálunk ...
Belső terület
45 m²
Szobák
2
Emelet
2

93.08 M Ft

eladó új építésű téglalakás, Budapest, XIII. kerület

eladó új építésű téglalakás

Budapest, XIII. kerület, Angyalföld
2 hónapon belül költözhető új építésű lakások a XIII. kerületben – HUN4 Lakópark, Hun utca Budapest XIII. kerületében, Angyalföld dinamikusan fejlődő részén, a Hun utca és Csata utca sarkán kínálunk ...
Belső terület
45 m²
Szobák
2
Emelet
2

93.08 M Ft

eladó új építésű téglalakás, Budapest, XIII. kerület

eladó új építésű téglalakás

Budapest, XIII. kerület, Angyalföld
2 hónapon belül költözhető új építésű lakások a XIII. kerületben – HUN4 Lakópark, Hun utca Budapest XIII. kerületében, Angyalföld dinamikusan fejlődő részén, a Hun utca és Csata utca sarkán kínálunk ...
Belső terület
44 m²
Szobák
2
Emelet
2

89.5 M Ft

eladó új építésű téglalakás, Budapest, XIII. kerület

eladó új építésű téglalakás

Budapest, XIII. kerület, Angyalföld
2 hónapon belül költözhető új építésű lakások a XIII. kerületben – HUN4 Lakópark, Hun utca Budapest XIII. kerületében, Angyalföld dinamikusan fejlődő részén, a Hun utca és Csata utca sarkán kínálunk ...
Belső terület
60 m²
Szobák
3
Emelet
2

109.85 M Ft

eladó téglalakás, Budapest, XIII. kerület

eladó téglalakás

Budapest, XIII. kerület, Újlipótváros
Napfényes, legfelső emeleti lakás eladó Újlipótváros szívében! XIII. kerület egyik legkedveltebb részén, Újlipótvárosban, a Pozsonyi út sarkán, mindössze 50 méterre a Duna-parttól kínálunk eladásra...
Belső terület
46 m²
Szobák
1+1
Emelet
6

91.9 M Ft

eladó új építésű téglalakás, Budapest, XIII. kerület

eladó új építésű téglalakás

Budapest, XIII. kerület, Angyalföld
2 hónapon belül költözhető új építésű lakások a XIII. kerületben – HUN4 Lakópark, Hun utca Budapest XIII. kerületében, Angyalföld dinamikusan fejlődő részén, a Hun utca és Csata utca sarkán kínálunk ...
Belső terület
60 m²
Szobák
3
Emelet
2

118.3 M Ft

Budapest, XIII. kerület - Lőportárdűlő
Budapest, XIII. kerület - Lőportárdűlő
Budapest, XIII. kerület - Lőportárdűlő
Budapest, XIII. kerület - Lőportárdűlő
Budapest, XIII. kerület - Lőportárdűlő
Budapest, XIII. kerület - Lőportárdűlő