Eladó új építésű téglalakás - Hatvan

KAPCSOLAT
Kómár-Benke Nikoletta


+36 70 396

almaestatekft@

Az időpont kérés naptár ikonja
IDŐPONTOT KÉREK
A visszahívás kérés telefon ikonja egy azt körbe ölelő nyíllal
VISSZAHÍVÁST KÉREK
Ajánlom egy ismerősömnek ikon
AJÁNLOM EGY ISMERŐSÖMNEK
Facebook megosztás ikon
MEGOSZTÁS

KAPCSOLATFELVÉTEL

Küldés

Az üzenetet sikeresen elküldtük!
Hiba történt!
INGATLAN ADATAI

Ingatlan jellege

téglalakás

Belső terület

38 m²

Tájolás

délnyugat

Építési állapot

új

Építési mód

tégla

Szobák száma

2 szoba

Szobák elhelyezkedése

egybenyílóak

Kert

34 m² (saját kert)

Emelet

nincs emelet.

Épület szintje

1.

Épült

2026

Lift

van

Ingatlan állapot

kívül: új
belül: új

Klíma

van

Szigetelés

15 cm

Ablak szerkezete

3 rétegű thermoplan

Fűtés

gázkazán

Komfort

összkomfort

Parkolás

van fedetlen felszíni beálló

Kilátás

kertre

Energetika

B:

Az időpont kérés naptár ikonja
HTML
Az időpont kérés naptár ikonja
PDF
Eladó új építésű téglalakás
Ingatlan azonosító:
73_aes

Heves megye, Hatvan, (Óhatvan), Gárdonyi Géza utca

Irányár

43.5 M Ft
(1.14 M Ft/㎡)

Szobák

2 szoba

Terület

38 m²
INGATLAN LEÍRÁSA
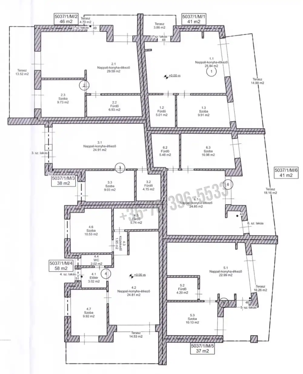
Hatvanban, az Új Élet Lakóparkban eladó új építésű lakások – az utolsó társasház a lakóparkban.

Hatvan kedvelt, új építésű részén, az Új Élet Lakóparkban eladásra kínáljuk a lakópark utolsó társasházában található hat darab lakást. Az ingatlanok modern kialakításúak, saját kertkapcsolattal, terasszal és parkolóval rendelkeznek, így ideális választást jelenthetnek saját otthonnak vagy akár befektetésnek is.

Minden lakás felszereltségének része a beépített, teljesen gépesített konyha (hűtő, sütő, főzőlap, elszívó), klíma, valamint redőny. A lakásokhoz saját használatú kert és parkoló tartozik.

Elérhető lakások:

M1 lakás
• Lakás alapterülete: 41 m²
• Terasz: 19 m²
• Lakás + terasz: 60 m²
• Kert: 75 m²
• Parkoló: 23 m²
• Ár: 46 500 000 Ft
M2 lakás
• Lakás alapterülete: 46 m²
• Terasz: 18 m²
• Lakás + terasz: 65 m²
• Kert: 42 m²
• Parkoló: 17 m²
• Ár: 53 800 000 Ft
M3 lakás /A hirdetésben szereplő képek és műszaki ismertetők az adott lakásról készültek./
• Lakás alapterülete: 38 m²
• Terasz: nincs
• Lakás alapterülete összesen: 38 m²
• Kert: 18 m²
• Parkoló: 16 m²
• Ár: 43 500 000 Ft
M4 lakás
• Lakás alapterülete: 58 m²
• Terasz: 15 m²
• Lakás + terasz: 73 m²
• Kert: 83 m²
• Parkoló: 17 m²
• Ár: 57 900 000 Ft
M5 lakás
• Lakás alapterülete: 37 m²
• Terasz: 16 m²
• Lakás + terasz: 54 m²
• Kert: 96 m²
• Parkoló: 17 m²
• Ár: 46 600 000 Ft
M6 lakás
• Lakás alapterülete: 41 m²
• Terasz: 18 m²
• Lakás + terasz: 59 m²
• Kert: 31 m²
• Parkoló: 16 m²
• Ár: 46 600 000 Ft

A lakások praktikus elrendezésűek, világosak, és saját kertkapcsolatuknak köszönhetően kellemes életteret biztosítanak. A lakópark nyugodt, rendezett környezetben helyezkedik el, ugyanakkor Hatvan központja, üzletek, szolgáltatások és közlekedési lehetőségek rövid időn belül elérhetők.

Az ingatlanok megvásárlásához igénybe vehető a 3%-os Otthon Start hitel, valamint további piaci lakáshitel is. Hitelügyintézőnk a teljes hitel-ügyintézési folyamatban gyorsan és díjmentesen áll rendelkezésre, segítve a megfelelő finanszírozási megoldás kiválasztását és lebonyolítását.

Amennyiben felkeltette érdeklődését valamelyik lakás, további információért vagy megtekintés egyeztetéséhez keressen bizalommal.


INGATLAN ADATAI

Ingatlan jellege
téglalakás
Belső terület
38 m²
Tájolás
délnyugat
Építési állapot
új
Építési mód
tégla
Szobák száma
2 szoba
Szobák elhelyezkedése
egybenyílóak
Kert
34 m² (saját kert)
Emelet
nincs emelet.
Épület szintje
1.
Épült
2026
Lift
van
Ingatlan állapot
kívül: új
belül: új
Klíma
van
Szigetelés
15 cm
Ablak szerkezete
3 rétegű thermoplan
Fűtés
gázkazán
Komfort
összkomfort
Parkolás
van fedetlen felszíni beálló
Kilátás
kertre
Energetika
B:
TÉRKÉP

Heves megye, Hatvan, Gárdonyi Géza utca

Hitelkalkulátor


KAPCSOLAT
Kómár-Benke Nikoletta
Kómár-Benke Nikoletta


+36 70 396 5533

almaestatekft@gmail.com

KAPCSOLAT
Kómár-Benke Nikoletta

+36 70 396

almaestatekft@

Az időpont kérés naptár ikonja
IDŐPONTOT KÉREK
A visszahívás kérés telefon ikonja egy azt körbe ölelő nyíllal
VISSZAHÍVÁST KÉREK
Ajánlom egy ismerősömnek ikon
AJÁNLOM EGY ISMERŐSÖMNEK
Facebook megosztás ikon
MEGOSZTÁS

KAPCSOLATFELVÉTEL

Küldés

Az üzenetet sikeresen elküldtük!
Hiba történt!
INGATLAN ADATAI

Ingatlan jellege

téglalakás

Belső terület

38 m²

Tájolás

délnyugat

Építési állapot

új

Építési mód

tégla

Szobák száma

2 szoba

Szobák elhelyezkedése

egybenyílóak

Kert

34 m² (saját kert)

Emelet

nincs emelet.

Épület szintje

1.

Épült

2026

Lift

van

Ingatlan állapot

kívül: új
belül: új

Klíma

van

Szigetelés

15 cm

Ablak szerkezete

3 rétegű thermoplan

Fűtés

gázkazán

Komfort

összkomfort

Parkolás

van fedetlen felszíni beálló

Kilátás

kertre

Energetika

B:

Az időpont kérés naptár ikonja
HTML
Az időpont kérés naptár ikonja
PDF

Hasonló ingatlan hírdetések

Eladó új építésű tégla-, vagy panellakás hirdetést keres Hatvan területén?
Tekintse meg további ajánlatainkat!

eladó téglalakás, Hatvan

eladó téglalakás

Heves megye, Hatvan, (Óhatvan), Erzsébet tér
Hatvan szívében, egy csendes, mindössze 4 lakásos társasház 1. emeletén kínálunk megvételre egy olyan ingatlant, amely nem csupán lakás, hanem életérzés. Ez a 96,5 m²-es nagypolgári lakás azok sz...
Belső terület
96 m²
Szobák
3
Emelet
1

54.9 M Ft

eladó téglalakás, Hatvan

eladó téglalakás

Heves megye, Hatvan, Óhatvan
ÚJ ÉPÍTÉSŰ, MEDITERRÁN LAKÓPARKI LAKÁSOK!!! MÁR CSAK 4 LAKÁS MARADT!!! Egy teljesen újonnan épült, exkluzív lakóparkban kínálok eladásra egy mediterrán hangulatú, 6 lakásos lakóépületet, amely nem...
Belső terület
37 m²
Szobák
2

43.5 M Ft

Heves megye - Hatvan
Heves megye - Hatvan
Heves megye - Hatvan
Heves megye - Hatvan
Heves megye - Hatvan
Heves megye - Hatvan
Heves megye - Hatvan
Heves megye - Hatvan
Heves megye - Hatvan
Heves megye - Hatvan
Heves megye - Hatvan
Heves megye - Hatvan
Heves megye - Hatvan
Heves megye - Hatvan
Heves megye - Hatvan
Heves megye - Hatvan
Heves megye - Hatvan
Heves megye - Hatvan