Eladó új építésű téglalakás - Paks

Új építésű!
Új építésű
KAPCSOLAT
Görög Zoltán


+36 30 517

gorogzoltan@

Az időpont kérés naptár ikonja
IDŐPONTOT KÉREK
A visszahívás kérés telefon ikonja egy azt körbe ölelő nyíllal
VISSZAHÍVÁST KÉREK
Ajánlom egy ismerősömnek ikon
AJÁNLOM EGY ISMERŐSÖMNEK
Facebook megosztás ikon
MEGOSZTÁS

KAPCSOLATFELVÉTEL

Küldés

Az üzenetet sikeresen elküldtük!
Hiba történt!
INGATLAN ADATAI

Ingatlan jellege

téglalakás

Belső terület

75 m²

Tájolás

dél

Építési állapot

új

Építési mód

tégla

Szobák száma

3+1 félszoba

Kert

(saját kert)

Terasz

14.13 m²

Emelet

földszint.

Épület szintje

1.

Épült

2026

Akadálymentes

igen

Lift

nincs

Ingatlan állapot

kívül: új
belül: új

Klíma

van

Szigetelés

15 cm

Ablak szerkezete

3 rétegű thermoplan

Fűtés

hőszivattyús

Komfort

összkomfort

Parkolás

van önálló garázs

Kilátás

udvarra

Energetika

A+:

Az időpont kérés naptár ikonja
HTML
Az időpont kérés naptár ikonja
PDF
Eladó új építésű téglalakás
Ingatlan azonosító:
1068_gz

Tolna megye, Paks, Szent János utca

Irányár

83 M Ft
(1.11 M Ft/㎡)

Szobák

3+1 félszoba

Emelet

földszint

Terület

75 m²
INGATLAN LEÍRÁSA
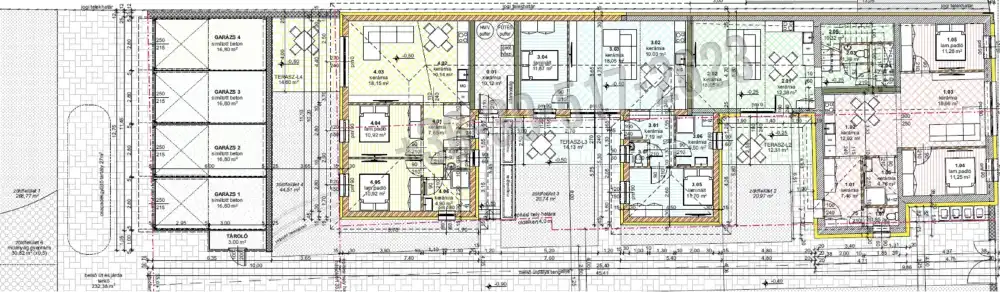
Paks, Szent János utcában három szobás, új építésű kertkapcsolatos lakás ELADÓ!

Az ingatlan egy új építésű 4 lakásos társasház 75 m2-es belső udvarra néző kertkapcsolatos lakása.
A lakást az alaprajzon látható elrendezés szerint a mai igényeknek megfelelően minőségi alapanyagokból, jó referenciával rendelkező szakemberek építik.

A lakásba a saját előkerten és teraszon át érkezünk meg az előtérbe, melyből közvetlenül elérhető az amerikai konyhás nappali, fürdőszoba és WC, továbbá az egymástól jól elkülönített két hálószoba.
A földszinten kialakított 66 m2-es lakrészhez tartozik még egy a tetőtérben kialakított bruttó 47,57 m2-es nettó 9 m2-es hasznos alapterületű helyiség, melyet az új tulajdonos igényei szerint használhat akár mint tároló, dolgozószoba, stb.
A fűtést és hűtést egy központi hőszivattyú fogja biztosítani padlófűtés és mennyezet hűtés segítségével.
Az energia hatékony gépészetnek, a 15 cm homlokzati szigetelésnek és a 3 rétegű üvegezéssel szerelt nyílászáróknak köszönhetően a lakás rezsije minimális lesz.
A kiváló elhelyezkedésnek köszönhetően minden a főutcán található szolgáltatás és a Duna part adta lehetőségek is sétáló távolságon belül elérhető.
Így ideális választás új otthonának és befektetési szándék esetén is.
Parkolás az automata kapun át megközelíthető, zárt belső udvarban lehetséges.
Továbbá zárt garázs megvásárlására is van lehetőség.
Az építkezés már folyamatban van.
Az ingatlanok tervezett átadása 2026 vége - 2027 év eleje.

Az értékesítés kezdeti szakaszában, a vevők egyedi igényeit is figyelembe tudjuk venni.

A finanszírozásban bank független, ingyenes hitel tanácsadással segítjük vevőinket.
Otthon Start programban 3%-os hitellel megvásárolható az ingatlan.

INGATLAN ADATAI

Ingatlan jellege
téglalakás
Belső terület
75 m²
Tájolás
dél
Építési állapot
új
Építési mód
tégla
Szobák száma
3+1 félszoba
Kert
(saját kert)
Terasz
14.13 m²
Emelet
földszint.
Épület szintje
1.
Épült
2026
Akadálymentes
igen
Lift
nincs
Ingatlan állapot
kívül: új
belül: új
Klíma
van
Szigetelés
15 cm
Ablak szerkezete
3 rétegű thermoplan
Fűtés
hőszivattyús
Komfort
összkomfort
Parkolás
van önálló garázs
Kilátás
udvarra
Energetika
A+:
TÉRKÉP

Tolna megye, Paks, Szent János utca

Hitelkalkulátor


KAPCSOLAT
Görög Zoltán
Görög Zoltán


+36 30 517 2623

gorogzoltan@ingatlanpaks.hu

KAPCSOLAT
Görög Zoltán

+36 30 517

gorogzoltan@

Az időpont kérés naptár ikonja
IDŐPONTOT KÉREK
A visszahívás kérés telefon ikonja egy azt körbe ölelő nyíllal
VISSZAHÍVÁST KÉREK
Ajánlom egy ismerősömnek ikon
AJÁNLOM EGY ISMERŐSÖMNEK
Facebook megosztás ikon
MEGOSZTÁS

KAPCSOLATFELVÉTEL

Küldés

Az üzenetet sikeresen elküldtük!
Hiba történt!
INGATLAN ADATAI

Ingatlan jellege

téglalakás

Belső terület

75 m²

Tájolás

dél

Építési állapot

új

Építési mód

tégla

Szobák száma

3+1 félszoba

Kert

(saját kert)

Terasz

14.13 m²

Emelet

földszint.

Épület szintje

1.

Épült

2026

Lift

nincs

Ingatlan állapot

kívül: új
belül: új

Klíma

van

Szigetelés

15 cm

Ablak szerkezete

3 rétegű thermoplan

Fűtés

hőszivattyús

Komfort

összkomfort

Parkolás

van önálló garázs

Kilátás

udvarra

Energetika

A+:

Az időpont kérés naptár ikonja
HTML
Az időpont kérés naptár ikonja
PDF

Hasonló ingatlan hírdetések

Eladó új építésű tégla-, vagy panellakás hirdetést keres Paks területén?
Tekintse meg további ajánlatainkat!

eladó téglalakás, Paks

eladó téglalakás

Belső kétszintes, földszinti tégla lakás,extra nagy, 12nm-es terasszal eladó!

Tolna megye, Paks
Igazi ritkaság! Belső kétszintes, földszinti tégla lakás,extra nagy, 12nm-es terasszal eladó! MŰSZAKI: -Műanyag nyílászárók, emeleti ablakok: Velux tetőtéri ablak árnyékoló rolóval - Tégla falaz...
Belső terület
58 m²
Szobák
2+1
Emelet
földszint

39.9 M Ft

eladó panellakás, Paks

eladó panellakás

Paks, Kurcsatov utcában két és fél szobás földszinti lakás ELADÓ!

Tolna megye, Paks, (Lakótelep), Kurcsatov utca
Paks, Kurcsatov utcában két és fél szobás földszinti lakás ELADÓ! Az 55 m2-es lakás a képeken látható állapotban azonnal költözhető. Az ingatlanban egy nagyon világos nappali, egy nagyobb és egy kis...
Belső terület
55 m²
Szobák
2+1
Emelet
földszint

44.9 M Ft

azonnal költözhető
Azonnal költözhető
eladó panellakás, Paks

eladó panellakás

Pakson, a lakótelepen, 48 nm-es lakás eladó!

Tolna megye, Paks, Fenyves utca
ÁRCSÖKKENÉS! Pakson, a lakótelepen, 48 nm-es lakás eladó! AZ ÉPÜLET: - 4 szintes, szigetelt tömbben lévő társasházi épület 4. emeleti, középső, 48m2-es panel lakása. MŰSZAKI ADATOK: - Műanyag...
Belső terület
48 m²
Szobák
2
Emelet
4

37.9 M Ft

eladó panellakás, Paks

eladó panellakás

Paks, lakótelep központjában első emeleti két szobás lakás ELADÓ!

Tolna megye, Paks, (Lakótelep), Árnyas utca
Paks, lakótelep központjában első emeleti két szobás lakás ELADÓ! Az első emeleten elhelyezkedő 48 m2-es lakás, a képeken látható állapotban, teljesen bútorozva és gépesítve, akár bérlővel együtt is ...
Belső terület
48 m²
Szobák
2
Emelet
1

41.9 M Ft

alkalmi vétel
Alkalmi vétel
eladó panellakás, Paks

eladó panellakás

Paks, Pollack Mihály utcában 3 szobás lakás ELADÓ!

Tolna megye, Paks, (Lakótelep), Pollack Mihály utca
Paks, Pollack Mihály utcában 3 szobás lakás ELADÓ! Az ingatlan a képeken látható állapotban, teljesen bútorozva és gépesítve, akár bérlővel együtt megvásárolható. A 4. emeleten elhelyezkedő, gyöny...
Belső terület
62 m²
Szobák
3
Emelet
4

53 M Ft

eladó téglalakás, Paks

eladó téglalakás

ÁRCSÖKKENÉS: -5mFt! Eladó egy egyedülálló lakás Paks szívében!

Tolna megye, Paks
ÁRCSÖKKENÉS: -5mFt! Paks városának egyik legkülönlegesebb épületében kínálunk eladásra egy kétszintes, udvari kapcsolattal rendelkező, karakteres otthont, amely tornyos kialakításával és galériás bel...
Belső terület
130 m²
Szobák
3+1

69.9 M Ft

eladó téglalakás, Paks

eladó téglalakás

Paks központjában 2 és fél szobás, erkélyes lakás ELADÓ.

Tolna megye, Paks
ELADÓ dunai panorámás tégla lakás Paks központjában! AZ ÉPÜLET: - 4 szintes társasházi épület 4. emeleti, 55 m2-es lakása. MŰSZAKI ADATOK: - Tégla falazat. - A ház szigetelése, a bejárati a...
Belső terület
55 m²
Szobák
2+1
Emelet
4

42.49 M Ft

azonnal költözhető
Azonnal költözhető
eladó panellakás, Paks

eladó panellakás

Első emeleti lakás eladó a lakótelepen

Tolna megye, Paks, Lakótelep
Eladásra kínálok Pakson egy első emeleti lakást. A 48 m2-es panelban napfényes nappali, különnyíló hálószoba, közlekedő, konyha-étkező, fürdőszoba és wc lett kialakítva. A középső lakásban a villa...
Belső terület
48 m²
Szobák
2
Emelet
1

41.99 M Ft

azonnal költözhető
Azonnal költözhető
Tolna megye - Paks
Tolna megye - Paks
Tolna megye - Paks
Tolna megye - Paks
Tolna megye - Paks
Tolna megye - Paks
Tolna megye - Paks
Tolna megye - Paks
Tolna megye - Paks
Tolna megye - Paks
Tolna megye - Paks