Eladó új építésű téglalakás - Paks

garázzsal
Garázzsal
KAPCSOLAT
Görög Zoltán


+36 30 517

gorogzoltan@

Az időpont kérés naptár ikonja
IDŐPONTOT KÉREK
A visszahívás kérés telefon ikonja egy azt körbe ölelő nyíllal
VISSZAHÍVÁST KÉREK
Ajánlom egy ismerősömnek ikon
AJÁNLOM EGY ISMERŐSÖMNEK
Facebook megosztás ikon
MEGOSZTÁS

KAPCSOLATFELVÉTEL

Küldés

Az üzenetet sikeresen elküldtük!
Hiba történt!
INGATLAN ADATAI

Ingatlan jellege

téglalakás

Belső terület

97 m²

Tájolás

nyugat, délnyugat

Építési állapot

új

Építési mód

tégla

Szobák száma

3 szoba

Kert

208 m² (saját kert)

Terasz

12.35 m²

Emelet

földszint.

Épület szintje

1.

Épült

2026

Akadálymentes

igen

Lift

nincs

Ingatlan állapot

kívül: új
belül: új

Klíma

van

Ablak szerkezete

3 rétegű thermoplan

Fűtés

gázkazán

Komfort

összkomfort

Parkolás

van önálló garázs

Kilátás

utcára, udvarra

Energetika

A:

Az időpont kérés naptár ikonja
HTML
Az időpont kérés naptár ikonja
PDF
Eladó új építésű téglalakás
Ingatlan azonosító:
1036_gz

Tolna megye, Paks

Irányár

101.99 M Ft
(1.05 M Ft/㎡)

Szobák

3 szoba

Emelet

földszint

Terület

97 m²
INGATLAN LEÍRÁSA
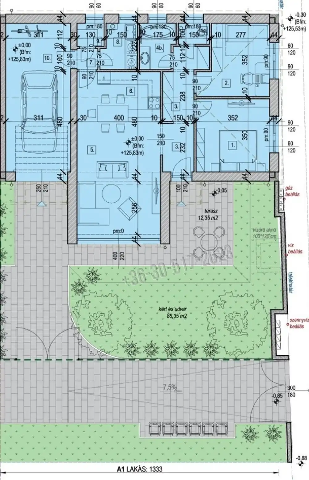
Pakson, három szobás, kertkapcsolatos új építésű lakás garázzsal együtt ELADÓ!

Az ingatlan, a város egyik kedvelt családi házas utcájában, a központhoz közel épülő háromlakásos társasház utcafronti lakása.

A 75 m2-es földszintes lakásban a képeken látható alaprajz szerinti elrendezésben két tágas hálószoba, egy nagy és világos nappali-konyha, garázs 22,14 m2, háztartási helyiség, kamra, fürdőszoba és külön WC is kialakításra kerül.

A kertkapcsolatos kialakításnak köszönhetően az új tulajdonos kényelmét növeli még a lakás előtt található kizárólagos használatú 86,39 m2-es előkert és udvar, a 12,39 m2-es terasz és a telek hátsó részén található 121,86 m2-es kertrész.

Az épületet a mai igényeknek megfelelően minőségi alapanyagokból, jó referenciával rendelkező szakemberek építik.

A lakást jól átgondolt tervek szerint, közvetlen garázs és kertkapcsolattal tervezték, így kiváló választás új otthonának, vagy befektetési szándék esetén is.

A fűtést lakásonként saját kondenzációs gázkazán biztosítja padlófűtés segítségével, a hűtést fali klíma segíti.

Az 44 cm-es Porotherm tégla falazatnak, a 25 cm födémszigetelésnek és a 3 rétegű üvegezéssel szerelt nyílászáróknak köszönhetően a lakás rezsije minimális lesz.
Energetikai besorolása: A

A kiváló elhelyezkedésnek köszönhetően sétáló távolságon belül minden elérhető.

Parkolás az automata kapun át megközelíthető, zárt belső udvarban és a lakáshoz tartozó saját garázsban lehetséges.

A beruházás 2026 tavaszán kezdődik.
Az ingatlanok tervezett átadása 2026 vége.

Az értékesítés kezdeti szakaszában, a vevők egyedi igényeit is figyelembe tudjuk venni.

A finanszírozásban bankfüggetlen, ingyenes hitel tanácsadással segítjük vevőinket.
Otthon Start programban 3%-os hitellel megvásárolható az ingatlan.

INGATLAN ADATAI

Ingatlan jellege
téglalakás
Belső terület
97 m²
Tájolás
nyugat, délnyugat
Építési állapot
új
Építési mód
tégla
Szobák száma
3 szoba
Kert
208 m² (saját kert)
Terasz
12.35 m²
Emelet
földszint.
Épület szintje
1.
Épült
2026
Akadálymentes
igen
Lift
nincs
Ingatlan állapot
kívül: új
belül: új
Klíma
van
Ablak szerkezete
3 rétegű thermoplan
Fűtés
gázkazán
Komfort
összkomfort
Parkolás
van önálló garázs
Kilátás
utcára, udvarra
Energetika
A:
TÉRKÉP

Tolna megye, Paks

Hitelkalkulátor


KAPCSOLAT
Görög Zoltán
Görög Zoltán


+36 30 517 2623

gorogzoltan@ingatlanpaks.hu

KAPCSOLAT
Görög Zoltán

+36 30 517

gorogzoltan@

Az időpont kérés naptár ikonja
IDŐPONTOT KÉREK
A visszahívás kérés telefon ikonja egy azt körbe ölelő nyíllal
VISSZAHÍVÁST KÉREK
Ajánlom egy ismerősömnek ikon
AJÁNLOM EGY ISMERŐSÖMNEK
Facebook megosztás ikon
MEGOSZTÁS

KAPCSOLATFELVÉTEL

Küldés

Az üzenetet sikeresen elküldtük!
Hiba történt!
INGATLAN ADATAI

Ingatlan jellege

téglalakás

Belső terület

97 m²

Tájolás

nyugat, délnyugat

Építési állapot

új

Építési mód

tégla

Szobák száma

3 szoba

Kert

208 m² (saját kert)

Terasz

12.35 m²

Emelet

földszint.

Épület szintje

1.

Épült

2026

Lift

nincs

Ingatlan állapot

kívül: új
belül: új

Klíma

van

Ablak szerkezete

3 rétegű thermoplan

Fűtés

gázkazán

Komfort

összkomfort

Parkolás

van önálló garázs

Kilátás

utcára, udvarra

Energetika

A:

Az időpont kérés naptár ikonja
HTML
Az időpont kérés naptár ikonja
PDF

Hasonló ingatlan hírdetések

Eladó új építésű tégla-, vagy panellakás hirdetést keres Paks területén?
Tekintse meg további ajánlatainkat!

eladó új építésű téglalakás, Paks

eladó új építésű téglalakás

Paks, új építésű 4 lakásos társasházban 4+1 szobás azonnal költözhető soházi lakás garázzsal együtt ELADÓ!

Tolna megye, Paks
Paks, új építésű 4 lakásos társasházban 4+1 szobás azonnal költözhető sorházi lakás garázzsal együtt ELADÓ! A földszint plusz tetőtér beépítéses nettó 123,63 m2, bruttó 150,66 m2-es 3 szoba, nappal...
Belső terület
124 m²
Szobák
4+1
Emelet
földszint

140 M Ft

azonnal költözhető
Azonnal költözhető
eladó panellakás, Paks

eladó panellakás

Paks, Pollack Mihály utcában első emeleti 2+1 szobás lakás ELADÓ!

Tolna megye, Paks, (Lakótelep), Pollack Mihály utca
Paks, Pollack Mihály utcában első emeleti 2+1 szobás lakás ELADÓ! Az 58 m2-es ingatlan a képeken látható állapotban azonnal birtokba vehető. A fűtést távfűtés biztosítja radiátorok segítségével. Pa...
Belső terület
58 m²
Szobák
2+1
Emelet
1

47.9 M Ft

azonnal költözhető
Azonnal költözhető
eladó panellakás, Paks

eladó panellakás

ELADÓ Paks lakótelepén 52 nm-es, felújítandó lakás!

Tolna megye, Paks, (Lakótelep), Gesztenyés utca
ELADÓ Paks lakótelepén 52 nm-es, felújítandó lakás! AZ ÉPÜLET: -4 szintes társasházi épület 3. emeleti, 52 m2-es lakása. MŰSZAKI ADATOK: -Panel falazat. -A lakótömb szigetelése, és a nyílászá...
Belső terület
52 m²
Szobák
2
Emelet
3

32.9 M Ft

eladó új építésű téglalakás, Paks

eladó új építésű téglalakás

Paks, Szent János utcában három szobás, új építésű kerkapcsolatos lakás ELADÓ!

Tolna megye, Paks, Szent János utca
Paks, Szent János utcában három szobás, új építésű kertkapcsolatos lakás ELADÓ! Az ingatlan egy új építésű 4 lakásos társasház 75 m2-es belső udvarra néző kertkapcsolatos lakása. A lakást az alapr...
Belső terület
75 m²
Szobák
3+1
Emelet
földszint

83 M Ft

Új építésű!
Új építésű
eladó téglalakás, Paks

eladó téglalakás

Belső kétszintes, földszinti tégla lakás,extra nagy, 12nm-es terasszal eladó!

Tolna megye, Paks
Bomba ár!! Igazi ritkaság! Belső kétszintes, földszinti tégla lakás,extra nagy, 12nm-es terasszal eladó! MŰSZAKI: -Műanyag nyílászárók, emeleti ablakok: Velux tetőtéri ablak árnyékoló rolóval -...
Belső terület
58 m²
Szobák
2+1
Emelet
földszint

36.9 M Ft

árcsökkenés!
Árcsökkenés
eladó panellakás, Paks

eladó panellakás

Paks, Kurcsatov utcában két és fél szobás földszinti lakás ELADÓ!

Tolna megye, Paks, (Lakótelep), Kurcsatov utca
Paks, Kurcsatov utcában két és fél szobás földszinti lakás ELADÓ! Az 55 m2-es lakás a képeken látható állapotban azonnal költözhető. Az ingatlanban egy nagyon világos nappali, egy nagyobb és egy kis...
Belső terület
55 m²
Szobák
2+1
Emelet
földszint

44.9 M Ft

azonnal költözhető
Azonnal költözhető
eladó panellakás, Paks

eladó panellakás

Paks, lakótelep központjában első emeleti két szobás lakás ELADÓ!

Tolna megye, Paks, (Lakótelep), Árnyas utca
Paks, lakótelep központjában első emeleti két szobás lakás ELADÓ! Az első emeleten elhelyezkedő 48 m2-es lakás, a képeken látható állapotban, teljesen bútorozva és gépesítve, akár bérlővel együtt is ...
Belső terület
48 m²
Szobák
2
Emelet
1

41.9 M Ft

alkalmi vétel
Alkalmi vétel
eladó panellakás, Paks

eladó panellakás

Paks, Pollack Mihály utcában 3 szobás lakás ELADÓ!

Tolna megye, Paks, (Lakótelep), Pollack Mihály utca
Paks, Pollack Mihály utcában 3 szobás lakás ELADÓ! Az ingatlan a képeken látható állapotban, teljesen bútorozva és gépesítve, akár bérlővel együtt megvásárolható. A 4. emeleten elhelyezkedő, gyöny...
Belső terület
62 m²
Szobák
3
Emelet
4

53 M Ft

51.5 M Ft

Tolna megye - Paks
Tolna megye - Paks
Tolna megye - Paks
Tolna megye - Paks
Tolna megye - Paks
Tolna megye - Paks
Tolna megye - Paks
Tolna megye - Paks