KAPCSOLATFELVÉTEL
Ingatlan jellege
téglalakás
Belső terület
44 m²
Tájolás
kelet
Építési állapot
új
Építési mód
tégla
Szobák száma
2 szoba
Kert
(saját kert)
Emelet
földszint.
Épület szintje
1.
Épült
2026
Lift
nincs
Ingatlan állapot
kívül: új
belül: új
Ablak szerkezete
3 rétegű thermoplan
Fűtés
hőszivattyús
Komfort
összkomfort
Parkolás
van fedetlen felszíni beálló
Kilátás
udvarra
Energetika
nincs megadva
Baranya megye, Pécs, (Balokány), Ditz-malom utca
Irányár
(1 M Ft/㎡)
Szobák
Emelet
Terület
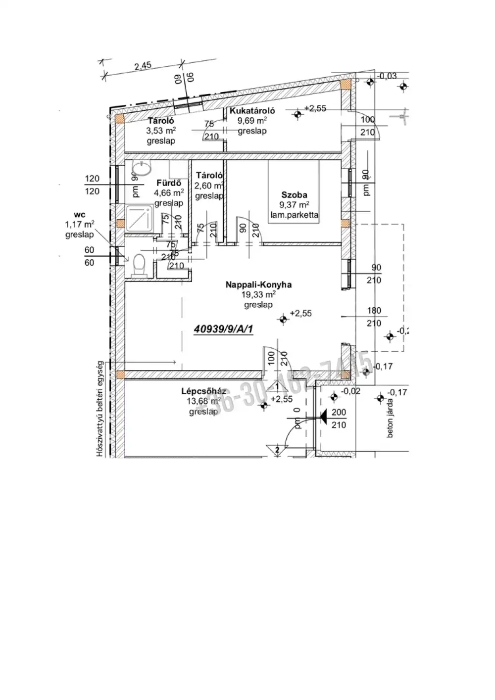
Eladó egy kiváló elrendezésű, 2 szobás földszinti lakás, egy négy lakásos újépítésű társasházban, Pécs egyik legkedveltebb, csendes, mégis központi részén. A belváros gyalogosan is könnyen elérhető, a környéken minden megtalálható: egyetem, üzletek, iskola, tömegközlekedés, éttermek. Emellett a környék rendezett, és nyugodt, a szomszédságban családi házak, és új társasházak találhatók.
A lakás a társasház földszintjén vásárolható meg, az utca felőli oldalon.
A lakás amerikai konyhás nappaliból, 1 hálószobából, valamint egy fürdőszobából és különálló mellékhelyiségből áll. A lakásban található egy praktikus kis méretű tároló helyiség is. Modern, hőszivattyús fűtési rendszer gondoskodik az energiahatékony fűtésről, padlófűtés rendszerben.
A földszinti lakáshoz a beruházó egy kis saját kertrészt is biztosít, mely a leendő tulajdonos igénye szerint parkosítható.
Átadásra várhatóan 2026. év végén kerülhet sor kulcsrakész állapotban. Az ár tartalmazza a teljes kivitelezést, beleértve a hideg- és melegburkolatokat, melyeket a leendő tulajdonos akár saját ízlése szerint is megválaszthat.
A parkolás saját udvari beállón biztosított, a parkolóhely árát az ingatlan vételára tartalmazza!
A ház front részén, a lakással igény szerint összenyitható (beruházó által vállalt kivitelezéssel) egy további tároló vásárlási lehetőség biztosított 4 millió Ft-os vételáron.
Helyszíni megtekintés előzetes egyeztetéssel már lehetséges.
belül: új
Baranya megye, Pécs, Ditz-malom utca
Hitelkalkulátor
+36 30 162 7415
szemerjay.viktoria@mecsekplusz.hu
KAPCSOLATFELVÉTEL
Ingatlan jellege
téglalakás
Belső terület
44 m²
Tájolás
kelet
Építési állapot
új
Építési mód
tégla
Szobák száma
2 szoba
Kert
(saját kert)
Emelet
földszint.
Épület szintje
1.
Épült
2026
Lift
nincs
Ingatlan állapot
kívül: új
belül: új
Ablak szerkezete
3 rétegű thermoplan
Fűtés
hőszivattyús
Komfort
összkomfort
Parkolás
van fedetlen felszíni beálló
Kilátás
udvarra
Energetika
nincs megadva