Eladó ikerház - Gödöllő

KAPCSOLAT
Kómár-Benke Nikoletta


+36 70 396

almaestatekft@

Az időpont kérés naptár ikonja
IDŐPONTOT KÉREK
A visszahívás kérés telefon ikonja egy azt körbe ölelő nyíllal
VISSZAHÍVÁST KÉREK
Ajánlom egy ismerősömnek ikon
AJÁNLOM EGY ISMERŐSÖMNEK
Facebook megosztás ikon
MEGOSZTÁS

KAPCSOLATFELVÉTEL

Küldés

Az üzenetet sikeresen elküldtük!
Hiba történt!
INGATLAN ADATAI

Ingatlan jellege

ikerház

Belső terület

112 m²

Telek terület

600 m²

Tájolás

észak

Építési állapot

használt

Építési mód

tégla

Szobák száma

5 szoba

Épület szintje

1.

Épült

2026

Ingatlan állapot

kívül: új
belül: új

Klíma

előkészítve

Szigetelés

10 cm

Ablak szerkezete

3 rétegű thermoplan

Fűtés

gázkazán

Komfort

összkomfort

Parkolás

van fedetlen felszíni beálló

Közműállapot

csatorna: bekötve
gáz: bekötve
villany: bekötve
víz: bekötve

Energetika

A++:

Az időpont kérés naptár ikonja
HTML
Az időpont kérés naptár ikonja
PDF
Eladó ikerház
Ingatlan azonosító:
64_aes

Pest megye, Gödöllő

Irányár

135 M Ft
(1.21 M Ft/㎡)

Szobák

5 szoba

Terület

112 m²

Telek terület

600 m²
INGATLAN LEÍRÁSA
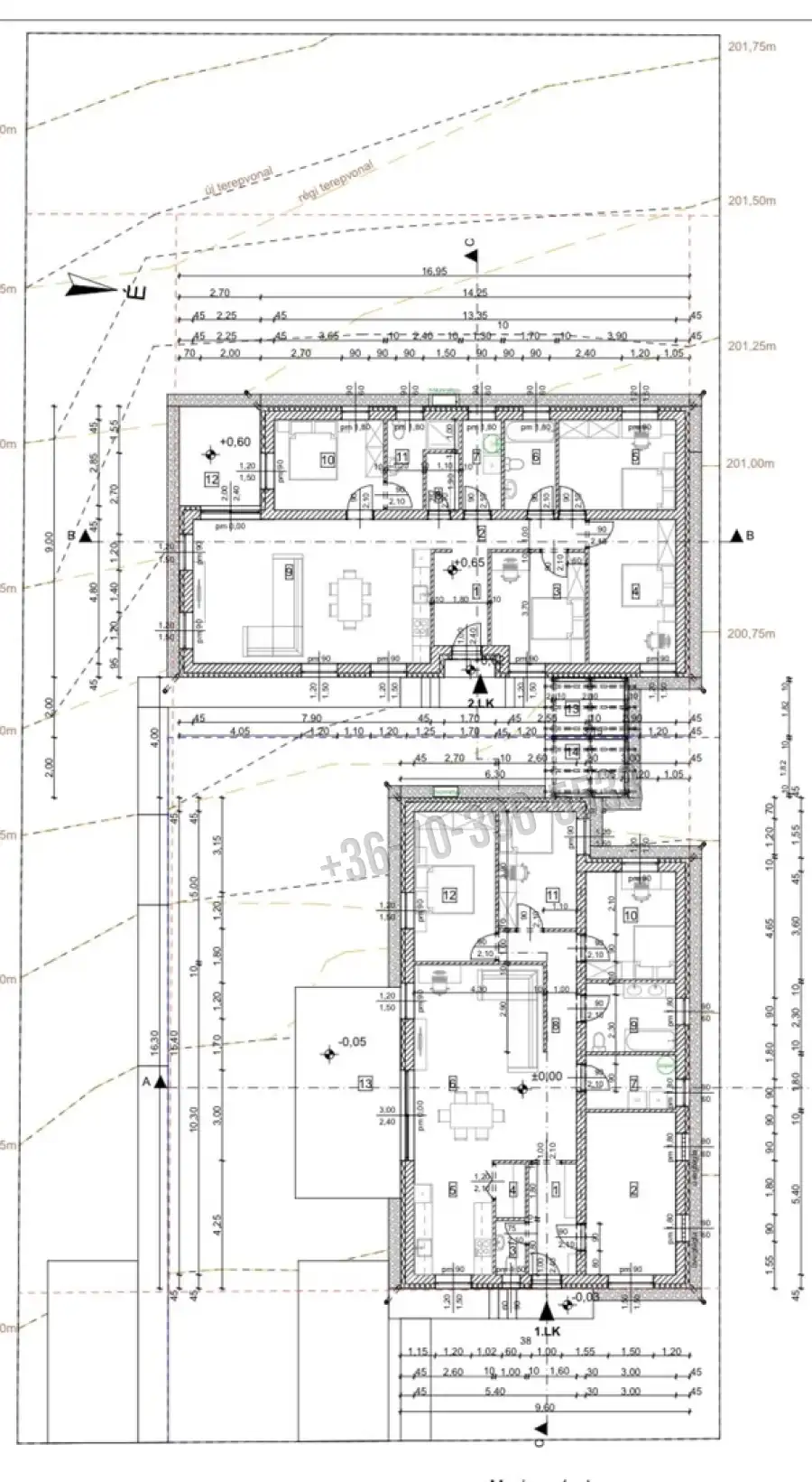
Eladásra kínálok Gödöllőn, a Királytelepen, közkedvelt kertvárosi környezetben egy új építésű ikerházat, amely közel 1000 m²-es telken valósul meg.

Nyugodt, családbarát környezet, kiváló infrastruktúra és átgondolt alaprajz jellemzi a projektet.

1. lakás – utcafronti
•Bruttó alapterület: ~150 m²
•Nettó hasznos alapterület: ~120 m²
•Saját kert: ~400 m²
•Terasz: ~25 m²
•Kerti tároló: ~4 m²
Helyiségek:
Előtér + közlekedő (~6 m²),
4 szoba (~16 m², ~14 m², ~11 m², ~10 m²),
nappali–étkező (~32 m²),
külön konyha (~10 m²),
fürdőszoba (~7 m²),
külön WC (~2 m²),
kamra (~2 m²),
háztartási helyiség (~5 m²),
közlekedő (~6 m²).

2. lakás – hátsó
•Bruttó alapterület: ~143 m²
•Nettó hasznos alapterület: ~112 m²
•Saját kert: ~600 m²
•Terasz: ~9 m²
•Kerti tároló: ~4 m²
Helyiségek:
Előtér + közlekedő (~6 m²),
közlekedő (~5 m²),
4 szoba (~14 m², ~12 m², ~11 m², ~11 m²),
nappali–étkező–konyha (~38 m²),
fürdőszoba (~5 m²),
második fürdőszoba (~5 m²),
háztartási helyiség (~4 m²).

A környék infrastruktúrája kiváló: buszmegálló, üzletek, gyógyszertár, iskola és óvoda rövid távolságon belül elérhető.

Az ingatlanokat megbízható, nagy tapasztalattal rendelkező kivitelező építi, aki számos referenciával rendelkezik.

Az ingatlan és a referenciaházak előre egyeztetett időpontban megtekinthetők.

Részletes műszaki tartalmat e-mailben továbbítok.

A vásárláshoz díjmentes hiteltanácsadással segítek, végigkísérve az ügyintézés teljes folyamatát.

Amennyiben Gödöllőn keres új építésű otthont megbízható, tapasztalt kivitelezőtől, ezt az ingatlant csak ajánlani tudom.

Ideális választás családok számára, akik biztonságos, nyugodt környezetben szeretnék felnevelni gyermekeiket, miközben élvezni szeretnék a város nyújtotta kényelmet, valamint a természet, kirándulóhelyek és zöldövezetek közelségét, amelyeket Gödöllő bőségesen kínál.

INGATLAN ADATAI

Ingatlan jellege
ikerház
Belső terület
112 m²
Telek terület
600 m²
Tájolás
észak
Építési állapot
használt
Építési mód
tégla
Szobák száma
5 szoba
Épület szintje
1.
Épült
2026
Ingatlan állapot
kívül: új
belül: új
Klíma
előkészítve
Szigetelés
10 cm
Ablak szerkezete
3 rétegű thermoplan
Fűtés
gázkazán
Komfort
összkomfort
Parkolás
van fedetlen felszíni beálló
Közműállapot
csatorna: bekötve
gáz: bekötve
villany: bekötve
víz: bekötve
Energetika
A++:
TÉRKÉP

Pest megye, Gödöllő

Hitelkalkulátor


KAPCSOLAT
Kómár-Benke Nikoletta
Kómár-Benke Nikoletta


+36 70 396 5533

almaestatekft@gmail.com

KAPCSOLAT
Kómár-Benke Nikoletta

+36 70 396

almaestatekft@

Az időpont kérés naptár ikonja
IDŐPONTOT KÉREK
A visszahívás kérés telefon ikonja egy azt körbe ölelő nyíllal
VISSZAHÍVÁST KÉREK
Ajánlom egy ismerősömnek ikon
AJÁNLOM EGY ISMERŐSÖMNEK
Facebook megosztás ikon
MEGOSZTÁS

KAPCSOLATFELVÉTEL

Küldés

Az üzenetet sikeresen elküldtük!
Hiba történt!
INGATLAN ADATAI

Ingatlan jellege

ikerház

Belső terület

112 m²

Telek terület

600 m²

Tájolás

észak

Építési állapot

használt

Építési mód

tégla

Szobák száma

5 szoba

Épület szintje

1.

Épült

2026

Ingatlan állapot

kívül: új
belül: új

Klíma

előkészítve

Szigetelés

10 cm

Ablak szerkezete

3 rétegű thermoplan

Fűtés

gázkazán

Komfort

összkomfort

Parkolás

van fedetlen felszíni beálló

Közműállapot

csatorna: bekötve
gáz: bekötve
villany: bekötve
víz: bekötve

Energetika

A++:

Az időpont kérés naptár ikonja
HTML
Az időpont kérés naptár ikonja
PDF

Hasonló ingatlan hírdetések

Eladó családi ház, vagy kertes ház hirdetést keres Gödöllő területén?
Tekintse meg további ajánlatainkat!

eladó új építésű ikerház, Gödöllő

eladó új építésű ikerház

Pest megye, Gödöllő
Eladó Gödöllő kertvárosi részén, ÚJ ÉPÍTÉSŰ, CSAK A GARÁZSOKNÁL ÉRINTKEZŐ ikerház. BERUHÁZÓI ÁRON! Az építkezés most kezdődik, ősszel már új otthonába költözhet! A BELSŐ TEREK KIALAKÍTÁSA – v...
Belső terület
139 m²
Telek terület
719 m²
Szobák
4

99.9 M Ft

Új építésű!
Új építésű
eladó ikerház, Gödöllő

eladó ikerház

Pest megye, Gödöllő, Kertváros
Új építésű, kétszintes családi házak Gödöllő kertvárosi részén! Gödöllő kertvárosi, nyugodt és zöldövezeti részén két új, modern, kétszintes családi ház épül egy 650 m²-es telekre. A projekt során ...
Belső terület
113 m²
Telek terület
350 m²
Szobák
5

115 M Ft

eladó családi ház, Gödöllő

eladó családi ház

Pest megye, Gödöllő, Királytelep
Álmai otthona Gödöllőn várja! Ez az eladó családi ház igazi oázis mindazok számára, akik értékelik a csendes, barátságos környezetet. KÉT HÁZ EGY TELKEN! Eladó Gödöllőn, csendes kertvárosi kö...
Belső terület
206 m²
Telek terület
1191 m²
Szobák
7

195 M Ft

eladó családi ház, Gödöllő

eladó családi ház

Pest megye, Gödöllő, (Blaha), Sőtér Kálmán utca
Megvételre kínálunk Gödöllő egyik legkedveltebb részén, a Blahán, a Sőtér Kálmán utcában egy páratlan adottságokkal rendelkező ingatlant, amely lenyűgöző panorámát kínál a városra. Az ingatlan 2004-b...
Belső terület
264 m²
Telek terület
800 m²
Szobák
6+1

194 M Ft

eladó családi ház, Gödöllő

eladó családi ház

Pest megye, Gödöllő, Kertváros
Gödöllő kedvelt, kertvárosi részén eladásra kínálok egy új építésű, földszintes ikerházat, amely nettó ~110 m² lakótérrel rendelkezik. Az ingatlan 3 külön nyíló hálószobával, egy tágas amerikai konyhá...
Belső terület
110 m²
Telek terület
350 m²
Szobák
5

115 M Ft

eladó ikerház, Gödöllő

eladó ikerház

Pest megye, Gödöllő, Csanak
Új építésű, különálló ikerház Gödöllő-Csanakon, 960 m²-es telken! Eladó Gödöllő egyik legkedveltebb, kertvárosi részén, Csanakon, egy új építésű, kétlakásos ikerház, amelyben a két lakás teljesen kül...
Belső terület
115 m²
Telek terület
500 m²
Szobák
4

144.9 M Ft

eladó családi ház, Gödöllő

eladó családi ház

Pest megye, Gödöllő, Kertváros
Eladó Gödöllőn 125 nm-es, 4 szobás, gázkonvektor fűtéses, közepes, részben felújított állapotú családi ház, 665 nm-es telekkel. A házban jelenleg 3 önálló lakrész van kialakítva: egy 55 nm-es, két ...
Belső terület
125 m²
Telek terület
665 m²
Szobák
4

87.99 M Ft

azonnal költözhető
Azonnal költözhető
eladó ikerház, Gödöllő

eladó ikerház

Pest megye, Gödöllő, (Egyetem), Premontrei utca
Új ikerház épül Gödöllő legpatinásabb részén! Ez az ingatlan nemcsak tágas és kényelmes, hanem egy kiváló, tapasztalt kivitelező által készül, aki nagy gondot fordít a minőségre és a részletekre. ...
Belső terület
148 m²
Telek terület
350 m²
Szobák
5

150 M Ft

Pest megye - Gödöllő
Pest megye - Gödöllő