Eladó téglalakás - Rétság

KAPCSOLAT
Erdősi Tamás


+36 30 518

erdosi.tamas.rds@

Az időpont kérés naptár ikonja
IDŐPONTOT KÉREK
A visszahívás kérés telefon ikonja egy azt körbe ölelő nyíllal
VISSZAHÍVÁST KÉREK
Ajánlom egy ismerősömnek ikon
AJÁNLOM EGY ISMERŐSÖMNEK
Facebook megosztás ikon
MEGOSZTÁS

KAPCSOLATFELVÉTEL

Küldés

Az üzenetet sikeresen elküldtük!
Hiba történt!
INGATLAN ADATAI

Ingatlan jellege

téglalakás

Belső terület

43 m²

Tájolás

délnyugat

Építési állapot

használt

Építési mód

tégla

Szobák száma

2 szoba

Emelet

földszint.

Épület szintje

2.

Épült

2025

Lift

nincs

Ingatlan állapot

kívül: új
belül: új

Klíma

van

Ablak szerkezete

3 rétegű thermoplan

Fűtés

hőszivattyús

Komfort

összkomfort

Parkolás

van fedetlen felszíni beálló

Kilátás

udvarra

Energetika

nincs megadva

Az időpont kérés naptár ikonja
HTML
Az időpont kérés naptár ikonja
PDF
Eladó téglalakás
Ingatlan azonosító:
12632_rds

Nógrád megye, Rétság, Laktanya út

Irányár

47.3 M Ft
(1.1 M Ft/㎡)

Szobák

2 szoba

Emelet

földszint

Terület

43 m²
INGATLAN LEÍRÁSA
Új építésű, prémium társasházi lakások Rétság központjában – liftes épület, hőszivattyús fűtés és panorámás teraszok!

Rétságon, a Börzsöny és a Cserhát találkozásánál, nyugodt, mégis központi elhelyezkedésű városrészben valósul meg ez a modern, 24 lakásos új építésű társasház, amelynek átadása 2026 második negyedévében várható. A beruházás célja, hogy a városi kényelem és a természetközeli életérzés tökéletes egyensúlyát nyújtsa mindazoknak, akik hosszú távra, biztonságos értéknövekedéssel szeretnének otthont vásárolni.

A körbekerített, parkosított lakópark saját zárt udvarral, öntözőrendszerrel, viacolor járdákkal és parkolókkal, valamint elektromos kis- és nagykapuval készül, kaputelefonos beléptetéssel.
Minden lakáshoz autóbeálló és saját tároló tartozik.

Műszaki tartalom:

- Tégla falazat, 15 cm-es hőszigeteléssel
- Daikin hőszivattyús padlófűtés és fan-coil hűtés – lakásonkénti hőmennyiségmérővel
- Hővisszanyerős szellőztetőrendszer
- Központi melegvíz-ellátás hőszivattyúról, egyedi vízmérőkkel
- 3 rétegű műanyag nyílászárók vakolt redőnytokkal és elektromos kiállással
- Bramac tetőcserép, üvegkorlátos teraszok
- Lift az épületben
- Padlóburkolatok, beltéri ajtók, épített zuhanykabinok, Geberit WC-tartályok
- Fehér szerelvények, konnektorok, kapcsolók
- Prémium kivitelezés, letisztult, modern megjelenéssel

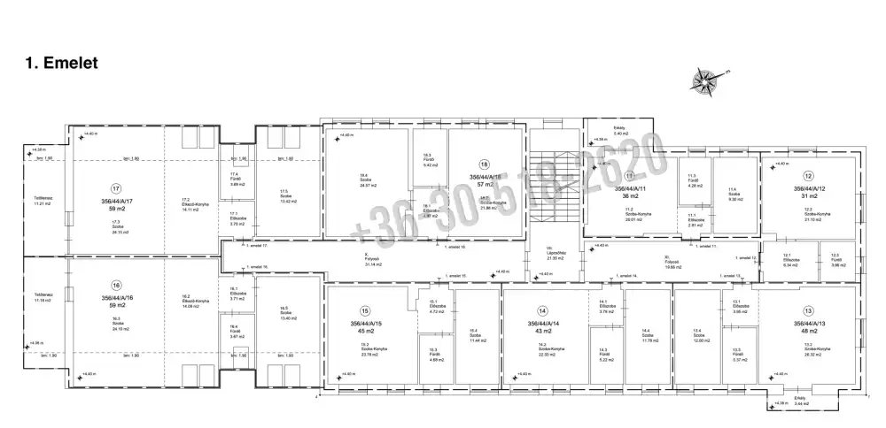
1. Lakás - 35 m2 - 38.500.000 Ft. + autóbeálló 1.500.000 Ft. + 2.38 m2-es tároló 833.000 Ft.
2. Lakás - 30 m2 - 33.000.000 Ft. + autóbeálló 1.500.000 Ft. + 2.38 m2-es tároló 833.000 Ft.
3. Lakás - 47 m2 - 51.700.000 Ft. + autóbeálló 1.500.000 Ft. + 2.37 m2-es tároló 829.500 Ft.
4. Lakás - 43 m2 - 47.300.000 Ft. + autóbeálló 1.500.000 Ft. + 2.84 m2-es tároló 994.000 Ft.
5. Lakás - 43 m3 - 47.300.000 Ft. + autóbeálló 1.500.000 Ft. + 2.66 m2-es tároló 931.000 Ft.
6. Lakás - 45 m2 - 49.500.000 Ft. + autóbeálló 1.500.000 Ft. + 2.68 m2-es tároló 938.000 Ft.
7. Lakás - 45 m2 + 4.5 m2 erkély - 52.000.000 Ft. + autóbeálló 1.500.000 Ft. + 3.02 m2-es tároló 1.057.000 Ft.
8. Lakás - 41 m2 + 4.5 m2 erkély - 47.600.000 Ft. + autóbeálló 1.500.000 Ft. + 2.92 m2-es tároló 1.022.000 Ft.
9. Lakás - 43 m2 - 47.300.000 Ft. + autóbeálló 1.500.000 Ft. + 2.66 m2-es tároló 931.000 Ft.
10. Lakás - 54 m2 - 59.400.000 Ft. + autóbeálló 1.500.000 Ft. + 2.52 m2-es tároló 882.000 Ft.
11. Lakás - 36 m2 + 5.4 m2 erkély - 42.570.000 Ft. + autóbeálló 1.500.000 Ft. + 2.37 m2-es tároló 829.500 Ft.
12. Lakás - 31 m2 - 34.100.000 Ft. + autóbeálló 1.500.000 Ft. + 2.29 m2-es tároló 801.500 Ft.
13. Lakás - 48 m2 + 3.44 m2 erkély - 54.692.000 Ft. + autóbeálló 1.500.000 Ft. + 2.46 m2-es tároló 861.000 Ft.
14. Lakás - 43 m2 - 47.300.000 Ft. + autóbeálló 1.500.000 Ft. + 2.31 m2-es tároló 808.500 Ft.
15. Lakás - 45 m2 - 49.500.000 Ft. + autóbeálló 1.500.000 Ft. + 2.57 m2-es tároló 899.500 Ft.
16. Lakás - 59 m2 (bruttó 66.76 m2) + 11.18 m2 terasz - 71.049.000 Ft. + autóbeálló 1.500.000 Ft. + 4.14 m2-es tároló 1.449.000 Ft.
17. Lakás - 59 m2 (bruttó 66.76 m2) + 11.21 m2 terasz - 71.065.000 Ft. + autóbeálló 1.500.000 Ft. + 4.13 m2-es tároló 1.445.500 Ft.
18. Lakás - 57 m2 - 62.700.000 Ft. + autóbeálló 1.500.000 Ft. + 4.1 m2-es tároló 1.435.000 Ft. 2. emelet
19. Lakás - 48 m2 (bruttó 54.77 m2) + 8.94 m2 terasz - 57.770.000 Ft. + autóbeálló 1.500.000 Ft. + 4.1 m2-es tároló 1.435.000 Ft.
20. Lakás - 47 m2 (bruttó 53.77 m2) + 8.83 m2 terasz - 56.560.000 Ft. + autóbeálló 1.500.000 Ft. + 4.05 m2-es tároló 1.417.500 Ft.
21. Lakás - 42 m2 - 46.200.000 Ft. + autóbeálló 1.500.000 Ft. + 5.09 m2-es tároló 1.781.500 Ft.
22. Lakás - 41 m2 - 45.100.000 Ft. + autóbeálló 1.500.000 Ft. + 4.87 m2-es tároló 1.704.500 Ft.
23. Lakás - 48 m2 - 52.800.000 Ft. + autóbeálló 1.500.000 Ft. + 3.21 m2-es tároló 1.123.500 Ft.
24. Lakás - 98 m2 (bruttó 107.7 m2) + 23.59 m2 terasz - 120.774.000 Ft. + autóbeálló 1.500.000 Ft. + 4.51 m2-es tároló 1.578.500 Ft.

Rétság a Börzsöny és a Cserhát határán fekszik, ez az adottság határozza meg a környék jellegét is. A településen áthalad a 2-s számú (nemzetközi: E77) főútvonal.
Rétságon, mint járási központban megtalálható minden, amire a hétköznapokban szükség lehet: polgármesteri hivatal, orvosi rendelő, óvoda, iskola, posta, járóbeteg-szakellátó központ, munkaügyi kirendeltség, bank, művelődési központ, vegyesboltok, töltőállomások. Mivel a 2-es számú nemzetközi főútvonal áthalad a városon, így közlekedés szempontjából is kedvező helyen fekszik. Budapest autóval 45 perc alatt elérhető, de óránként indulnak távolsági buszjáratok is a fővárosba. Rétságon a fejlődő és bővülő ipari park folyamatos munkalehetőséget kínál az itt élők számára, de a közeli nagyobb városokba (Vác 23 km-re, Balassagyarmat 25 km-re) való ingázás sem ütközik akadályba a jó tömegközlekedésnek köszönhetően.

INGATLAN ADATAI

Ingatlan jellege
téglalakás
Belső terület
43 m²
Tájolás
délnyugat
Építési állapot
használt
Építési mód
tégla
Szobák száma
2 szoba
Emelet
földszint.
Épület szintje
2.
Épült
2025
Lift
nincs
Ingatlan állapot
kívül: új
belül: új
Klíma
van
Ablak szerkezete
3 rétegű thermoplan
Fűtés
hőszivattyús
Komfort
összkomfort
Parkolás
van fedetlen felszíni beálló
Kilátás
udvarra
Energetika
nincs megadva
TÉRKÉP

Nógrád megye, Rétság, Laktanya út

Hitelkalkulátor


KAPCSOLAT
Erdősi Tamás
Erdősi Tamás


+36 30 518 2620

erdosi.tamas.rds@gmail.com

KAPCSOLAT
Erdősi Tamás

+36 30 518

erdosi.tamas.rds@

Az időpont kérés naptár ikonja
IDŐPONTOT KÉREK
A visszahívás kérés telefon ikonja egy azt körbe ölelő nyíllal
VISSZAHÍVÁST KÉREK
Ajánlom egy ismerősömnek ikon
AJÁNLOM EGY ISMERŐSÖMNEK
Facebook megosztás ikon
MEGOSZTÁS

KAPCSOLATFELVÉTEL

Küldés

Az üzenetet sikeresen elküldtük!
Hiba történt!
INGATLAN ADATAI

Ingatlan jellege

téglalakás

Belső terület

43 m²

Tájolás

délnyugat

Építési állapot

használt

Építési mód

tégla

Szobák száma

2 szoba

Emelet

földszint.

Épület szintje

2.

Épült

2025

Lift

nincs

Ingatlan állapot

kívül: új
belül: új

Klíma

van

Ablak szerkezete

3 rétegű thermoplan

Fűtés

hőszivattyús

Komfort

összkomfort

Parkolás

van fedetlen felszíni beálló

Kilátás

udvarra

Energetika

nincs megadva

Az időpont kérés naptár ikonja
HTML
Az időpont kérés naptár ikonja
PDF

Hasonló ingatlan hírdetések

Eladó tégla-, vagy panellakás hirdetést keres Rétság területén?
Tekintse meg további ajánlatainkat!

eladó téglalakás, Rétság

eladó téglalakás

Nógrád megye, Rétság, Laktanya út
Azonnal költözhető, 3%-os hitellel megvásárolható új építésű lakások Rétságon! Rétság központhoz közel eső részén, nyugodt, körbekerített és parkosított lakóparki környezetben 100%-os készültséggel...
Belső terület
50 m²
Szobák
2

48.5 M Ft

eladó téglalakás, Rétság

eladó téglalakás

Nógrád megye, Rétság, Laktanya út
Új építésű, prémium társasházi lakások Rétság központjában – liftes épület, hőszivattyús fűtés és panorámás teraszok! Rétságon, a Börzsöny és a Cserhát találkozásánál, nyugodt, mégis központi elhel...
Belső terület
30 m²
Szobák
1

33 M Ft

eladó téglalakás, Rétság

eladó téglalakás

Nógrád megye, Rétság, Laktanya út
Új építésű, prémium társasházi lakások Rétság központjában – liftes épület, hőszivattyús fűtés és panorámás teraszok! Rétságon, a Börzsöny és a Cserhát találkozásánál, nyugodt, mégis központi elhel...
Belső terület
98 m²
Szobák
3
Emelet
3

120.77 M Ft

eladó téglalakás, Rétság

eladó téglalakás

Nógrád megye, Rétság, Laktanya út
Új építésű, prémium társasházi lakások Rétság központjában – liftes épület, hőszivattyús fűtés és panorámás teraszok! Rétságon, a Börzsöny és a Cserhát találkozásánál, nyugodt, mégis központi elhel...
Belső terület
47 m²
Szobák
2
Emelet
2

56.56 M Ft

eladó téglalakás, Rétság

eladó téglalakás

Nógrád megye, Rétság, Laktanya út
Új építésű, prémium társasházi lakások Rétság központjában – liftes épület, hőszivattyús fűtés és panorámás teraszok! Rétságon, a Börzsöny és a Cserhát találkozásánál, nyugodt, mégis központi elhel...
Belső terület
36 m²
Szobák
2
Emelet
1

42.57 M Ft

eladó téglalakás, Rétság

eladó téglalakás

Nógrád megye, Rétság, Petőfi Sándor utca
Rétság keresett, zöldövezeti részén, frekventált helyen, a központtól 7-8 perc sétatávolságra eladó egy magasföldszinti, két szobás, erkélyes tégla építésű lakás, saját tárolóval. Az ingatlan egy t...
Belső terület
55 m²
Szobák
2

29.99 M Ft

eladó téglalakás, Rétság

eladó téglalakás

Nógrád megye, Rétság, Rákóczi Ferenc utca
Rétság belvárosában, a központtól egy karnyújtásnyira eladó, egy 113 négyzetméteres téglaépítésű, belső kétszintes, duplakomfortos tehermentes és azonnal birtokba vehető lakás rendkívül kedvező rezsiv...
Belső terület
113 m²
Szobák
5

49.99 M Ft

eladó panellakás, Rétság

eladó panellakás

Nógrád megye, Rétság, Takarék utca
Rétságon, a csendes és kedvelt Takarék utcában, mindössze néhány perc sétára a városközponttól eladó egy első emeleti, teljeskörűen felújított, háromszobás, erkélyes panellakás, saját tárolóval. Az...
Belső terület
58 m²
Szobák
3
Emelet
1

46.9 M Ft

Nógrád megye - Rétság
Nógrád megye - Rétság
Nógrád megye - Rétság
Nógrád megye - Rétság
Nógrád megye - Rétság
Nógrád megye - Rétság
Nógrád megye - Rétság
Nógrád megye - Rétság
Nógrád megye - Rétság
Nógrád megye - Rétság
Nógrád megye - Rétság
Nógrád megye - Rétság
Nógrád megye - Rétság
Nógrád megye - Rétság
Nógrád megye - Rétság
Nógrád megye - Rétság
Nógrád megye - Rétság
Nógrád megye - Rétság
Nógrád megye - Rétság
Nógrád megye - Rétság
Nógrád megye - Rétság
Nógrád megye - Rétság