KAPCSOLATFELVÉTEL
Ingatlan jellege
családi ház
Belső terület
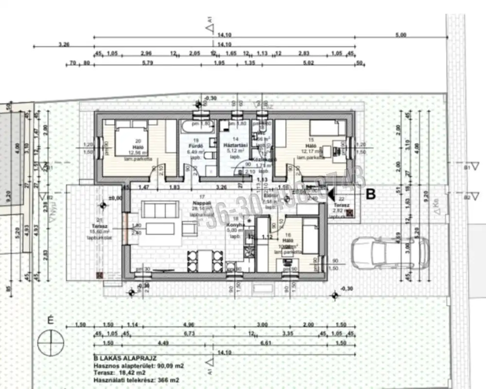
90 m²
Telek terület
366 m²
Tájolás
délkelet
Építési állapot
új
Építési mód
tégla
Szobák száma
4 szoba
Terasz
18.42 m²
Épület szintje
1.
Épült
kb. 2026
Ingatlan állapot
kívül: épülő
belül: épülő
Szigetelés
15 cm
Ablak szerkezete
3 rétegű thermoplan
Fűtés
padlófűtés
Komfort
összkomfort
Közműállapot
csatorna: bekötve
gáz: nincs
villany: bekötve
víz: bekötve
Energetika
nincs megadva
Pest megye, Kiskunlacháza, Központ
Irányár
(974.44 E Ft/㎡)
Szobák
Terület
Telek terület
Kiskunlacháza csendes, kis forgalmú utcájában eladó egy 90 m²-es, modern technológiával készülő, körbejárható családi ház. Az ingatlan 366 m²-es saját telekkel rendelkezik, az átadás 2026 nyarára várható.
Amiért érdemes számolni vele:
Alacsony fenntartási költség: A 30-as Porotherm téglafalazat és a 15 cm-es grafitos szigetelés a hőszivattyús padlófűtéssel kiegészítve kiemelkedő energiahatékonyságot biztosít.
Saját ízlésére formálhatja: A belső burkolatokat (hideg- és melegburkolatok) 10.000 Ft/m² árig a vételár tartalmazza, így a színeket és stílust Ön választhatja ki.
Élhető elrendezés: 3 különnyíló hálószoba, tágas amerikai konyhás nappali teraszkapcsolattal, fürdőszoba, külön WC és egy praktikus háztartási helyiség.
Környék és közlekedés:
Az utca nyugodt, biztonságos, mégis minden fontos szolgáltatás (iskola, óvoda, orvosi rendelő, bevásárlási lehetőség) rövid időn belül elérhető. A Duna-part közelsége remek lehetőséget ad a kikapcsolódásra, legyen szó sétáról vagy vízi sportokról. Budapest autóval és tömegközlekedéssel is jól megközelíthető.
Műszaki adatok röviden:
Lakótér: 90,09 m²
Telek: 366 m²
Fűtés: Hőszivattyú (padlófűtés)
Szigetelés: 15 cm grafitos
Kivitelező: Helyi, megbízható vállalkozó, referenciaházakkal.
Ez az ingatlan ideális választás azoknak, akik egy modern, fenntartható otthont keresnek nyugodt környezetben, de nem akarnak lemondani a város közelségéről.
Amennyiben felkeltette az érdeklődését, keressen bizalommal a részletes műszaki tartalomért és a megtekintéssel kapcsolatban!
belül: épülő
gáz: nincs
villany: bekötve
víz: bekötve
Pest megye, Kiskunlacháza, Központ
Hitelkalkulátor
+36 30 498 8743
cld.home.madaras@gmail.com
KAPCSOLATFELVÉTEL
Ingatlan jellege
családi ház
Belső terület
90 m²
Telek terület
366 m²
Tájolás
délkelet
Építési állapot
új
Építési mód
tégla
Szobák száma
4 szoba
Terasz
18.42 m²
Épület szintje
1.
Épült
kb. 2026
Ingatlan állapot
kívül: épülő
belül: épülő
Szigetelés
15 cm
Ablak szerkezete
3 rétegű thermoplan
Fűtés
padlófűtés
Komfort
összkomfort
Közműállapot
csatorna: bekötve
gáz: nincs
villany: bekötve
víz: bekötve
Energetika
nincs megadva