Eladó új építésű ház - Szada

Új építésű!
Új építésű
KAPCSOLAT
Kiss Jutka


+36 20 334

arenaingatlanok@

Az időpont kérés naptár ikonja
IDŐPONTOT KÉREK
A visszahívás kérés telefon ikonja egy azt körbe ölelő nyíllal
VISSZAHÍVÁST KÉREK
Ajánlom egy ismerősömnek ikon
AJÁNLOM EGY ISMERŐSÖMNEK
Facebook megosztás ikon
MEGOSZTÁS

KAPCSOLATFELVÉTEL

Küldés

Az üzenetet sikeresen elküldtük!
Hiba történt!
INGATLAN ADATAI

Ingatlan jellege

családi ház

Belső terület

121 m²

Telek terület

1439 m²

Tájolás

délnyugat

Építési állapot

új

Építési mód

tégla

Szobák száma

5 szoba

Terasz

18 m²

Épület szintje

1.

Épült

2026

Ingatlan állapot

kívül: új
belül: új

Klíma

előkészítve

Szigetelés

15 cm

Fűtés

hőszivattyús

Komfort

duplakomfort

Parkolás

van fedetlen felszíni beálló

Közműállapot

csatorna: bekötve
gáz: bekötve
villany: bekötve
víz: bekötve

Energetika

nincs megadva

Az időpont kérés naptár ikonja
HTML
Az időpont kérés naptár ikonja
PDF
Eladó új építésű ház
Ingatlan azonosító:
1368_ar

Pest megye, Szada

Irányár

139.9 M Ft
(1.16 M Ft/㎡)

Szobák

5 szoba

Terület

121 m²

Telek terület

1439 m²
INGATLAN LEÍRÁSA
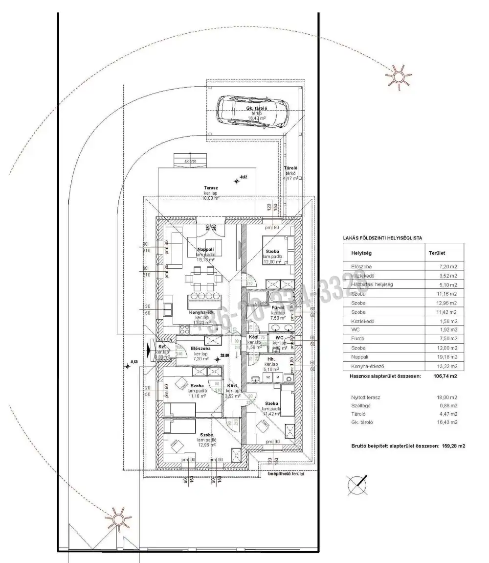
Eladó Szadán, aszfaltos utcában, csendes szép, családi házas övezetben, ÚJ ÉPÍTÉSŰ, amerikai konyhás nappali + 4 szobás, dupla komfortos, földszintes családi ház.

BERUHÁZÓI ÁRON!

Az építkezés hamarosan kezdődik, a BELSŐ TEREK KIALAKÍTÁSA – válaszfalak elhelyezése – igény esetén JELENLEG MÉG MÓDOSÍTHATÓ!

A lakótér 107 nm + 18 nm-es terasz + szélfogó + 4.47 nm-es tároló + 16.43 nm-es gépkocsi beálló.

A tervezésnél törekedtek az élhető terek kialakítására, a maximális kényelem megteremtésére.
-32 nm-es amerikai konyhás nappali terasz kapcsolattal, 4 szoba, fürdőszoba, vendég WC, háztartási helyiség, előszoba, közlekedő.

Az épület korszerű, a mai kor igényeinek megfelelő minőségi anyagokból és technológiával készül:
-főfalak 30-as Porotherm téglából, 15 cm-es hőszigeteléssel,
-fehér színű, 6 légkamrás, 3 rtg. üvegezésű műanyag nyílászárók,
-fűtés-meleg víz ellátás kondenzációs kazánnal, padlófűtéssel,
-redőnytok előkészítés,
-2 db klíma kiállás,
-választható burkolatok, szaniterek, belső ajtók.

Értékegyeztetéssel készülhet hőszivattyús fűtéssel, valamint redőny, szúnyogháló beépítése is lehetséges.

Hívjon a részletekért, a részletes műszaki tartalomért.

Irodánk ÚJ ÉPÍTÉSŰ ingatlanok specialistája, felkészült értékesítőkkel!
Jogi háttérrel (kedvező díjazással) és az egyik legjobb, bank semleges HITELKÖZVETÍTŐVEL segítjük vásárlását.
Hitelszakértőnk teljes körű ügyintézéssel áll Vevőink rendelkezésére, legyen szó OTTHON START, CSOK+, BABAVÁRÓ vagy a legjobb piaci hitelről.
Új építésű ingatlanjainkat BERUHÁZÓI ÁRON értékesítjük!

Amennyiben értékesíteni kívánja ingatlanát, irodánk egyedi, kedvező ajánlattal áll rendelkezésére!

INGATLAN ADATAI

Ingatlan jellege
családi ház
Belső terület
121 m²
Telek terület
1439 m²
Tájolás
délnyugat
Építési állapot
új
Építési mód
tégla
Szobák száma
5 szoba
Terasz
18 m²
Épület szintje
1.
Épült
2026
Ingatlan állapot
kívül: új
belül: új
Klíma
előkészítve
Szigetelés
15 cm
Fűtés
hőszivattyús
Komfort
duplakomfort
Parkolás
van fedetlen felszíni beálló
Közműállapot
csatorna: bekötve
gáz: bekötve
villany: bekötve
víz: bekötve
Energetika
nincs megadva
TÉRKÉP

Pest megye, Szada

Hitelkalkulátor


KAPCSOLAT
Kiss Jutka
Kiss Jutka


+36 20 334 3328

arenaingatlanok@gmail.com

KAPCSOLAT
Kiss Jutka

+36 20 334

arenaingatlanok@

Az időpont kérés naptár ikonja
IDŐPONTOT KÉREK
A visszahívás kérés telefon ikonja egy azt körbe ölelő nyíllal
VISSZAHÍVÁST KÉREK
Ajánlom egy ismerősömnek ikon
AJÁNLOM EGY ISMERŐSÖMNEK
Facebook megosztás ikon
MEGOSZTÁS

KAPCSOLATFELVÉTEL

Küldés

Az üzenetet sikeresen elküldtük!
Hiba történt!
INGATLAN ADATAI

Ingatlan jellege

családi ház

Belső terület

121 m²

Telek terület

1439 m²

Tájolás

délnyugat

Építési állapot

új

Építési mód

tégla

Szobák száma

5 szoba

Terasz

18 m²

Épület szintje

1.

Épült

2026

Ingatlan állapot

kívül: új
belül: új

Klíma

előkészítve

Szigetelés

15 cm

Fűtés

hőszivattyús

Komfort

duplakomfort

Parkolás

van fedetlen felszíni beálló

Közműállapot

csatorna: bekötve
gáz: bekötve
villany: bekötve
víz: bekötve

Energetika

nincs megadva

Az időpont kérés naptár ikonja
HTML
Az időpont kérés naptár ikonja
PDF

Hasonló ingatlan hírdetések

Eladó új építésű családi ház, vagy kertes ház hirdetést keres Szada területén?
Tekintse meg további ajánlatainkat!

eladó családi ház, Szada

eladó családi ház

Pest megye, Szada, Bem utca
Pár percre Gödöllőtől – Kétgenerációs családi ház eladó Szadán Kiváló elhelyezkedés, sok lehetőség – Szadán, Gödöllő közvetlen szomszédságában kínálok eladásra egy 145 m² alapterületű, kétgeneráció...
Belső terület
145 m²
Telek terület
288 m²
Szobák
5

97.9 M Ft

eladó családi ház, Szada

eladó családi ház

Pest megye, Szada
A Gödöllői-dombság bejáratánál, szép környezetben található Szada nagyközségben, kínálunk megvételre egy 145 nm-es két generációs 5 szobás, duplakomfortos családi házat 288 nm-es telekkel. A há 199...
Belső terület
145 m²
Telek terület
288 m²
Szobák
5

97.9 M Ft

Pest megye - Szada
Pest megye - Szada
Pest megye - Szada
Pest megye - Szada
Pest megye - Szada
Pest megye - Szada
Pest megye - Szada