KAPCSOLATFELVÉTEL
Ingatlan jellege
ikerház
Belső terület
116 m²
Telek terület
578 m²
Tájolás
délnyugat
Építési állapot
új
Építési mód
tégla
Szobák száma
5 szoba
Terasz
8 m²
Épület szintje
földszintes.
Épült
2025
Ingatlan állapot
kívül: új
belül: új
Klíma
előkészítve
Szigetelés
15 cm
Ablak szerkezete
3 rétegű thermoplan
Fűtés
hőszivattyús
Komfort
duplakomfort
Parkolás
van fedetlen felszíni beálló
Közműállapot
csatorna: bekötve
gáz: bekötve
villany: bekötve
víz: bekötve
Energetika
nincs megadva
Pest megye, Erdőkertes, Kincstáriligetek
Irányár
(797.41 E Ft/㎡)
Szobák
Terület
Telek terület
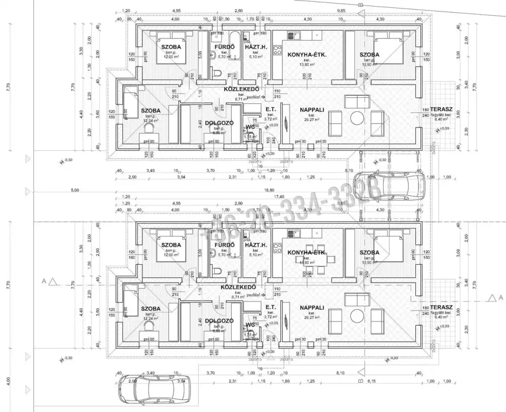
Az 1168 nm-es telekre két ház épül, melyek CSAK A GÉPKOCSI BEÁLLÓNÁL érintkeznek, NINCS KÖZÖS FAL!
BERUHÁZÓI ÁRON!
Eladó Erdőkertesen, a Kincstári ligetekben, nettó 112 nm-es, praktikus belső kialakítású ikerház, gépkocsi beállóval, saját 578nm-es telekkel.
A gondos tervezésnek köszönhetően az ingatlan minden igényt kielégít:
-tágas, 43 nm-es, terasz kapcsolatos amerikai konyhás nappali, 3 hálószoba, dolgozószoba, fürdőszoba, háztartási helyiség, vendég WC, előtér, közlekedő.
Az ikerház másik fele szintén 112 nm-es, ugyanilyen paraméterekkel. A hozzá tartozó telek 590 nm.
Ára: 96.5MFt.
Az ingatlan energiahatékonyságát a mai kor igényeinek megfelelő, korszerű építőanyagok és technológia biztosítja:
-főfalak 30-as téglából, 15 cm-es dryvit szigeteléssel,
-beton cserép fedés,
-hőszivattyús fűtés, padlófűtéssel,
-3 rétegű, hőszigetelt üvegezésű műanyag nyílászárók,
-a szobákba laminált padló, a vizes helyiségekbe járólap burkolat kerül,
-klíma kiállás előkészítése.
Hívjon a részletekért, a részletes műszaki tartalomért.
A ház csendes mellékutcában épül. Buszmegálló gyalogosan pár perc alatt elérhető. A közelben élelmiszerbolt, iskola, óvoda is van.
Irodánk ÚJ ÉPÍTÉSŰ ingatlanok specialistája, felkészült értékesítőkkel!
Jogi háttérrel (kedvező díjazással) és az egyik legjobb, bank semleges HITELKÖZVETÍTŐVEL segítjük vásárlását.
Hitelszakértőnk teljes körű ügyintézéssel áll Vevőink rendelkezésére, legyen szó OTTHON START, CSOK+, BABAVÁRÓ vagy a legjobb piaci hitelről.
Új építésű ingatlanjainkat BERUHÁZÓI ÁRON értékesítjük!
Amennyiben értékesíteni kívánja ingatlanát, irodánk egyedi, kedvező ajánlattal áll rendelkezésére!
belül: új
gáz: bekötve
villany: bekötve
víz: bekötve
Pest megye, Erdőkertes, Kincstáriligetek
Hitelkalkulátor

+36 20 334 3328,
arenaingatlanok@gmail.com
KAPCSOLATFELVÉTEL
Ingatlan jellege
ikerház
Belső terület
116 m²
Telek terület
578 m²
Tájolás
délnyugat
Építési állapot
új
Építési mód
tégla
Szobák száma
5 szoba
Terasz
8 m²
Épület szintje
földszintes.
Épült
2025
Ingatlan állapot
kívül: új
belül: új
Klíma
előkészítve
Szigetelés
15 cm
Ablak szerkezete
3 rétegű thermoplan
Fűtés
hőszivattyús
Komfort
duplakomfort
Parkolás
van fedetlen felszíni beálló
Közműállapot
csatorna: bekötve
gáz: bekötve
villany: bekötve
víz: bekötve
Energetika
nincs megadva