Eladó új építésű ikerház - Pásztó

Új építésű!
Új építésű
KAPCSOLAT
Tariné H. Piroska


+36 20 337

tarine.piroska@

Az időpont kérés naptár ikonja
IDŐPONTOT KÉREK
A visszahívás kérés telefon ikonja egy azt körbe ölelő nyíllal
VISSZAHÍVÁST KÉREK
Ajánlom egy ismerősömnek ikon
AJÁNLOM EGY ISMERŐSÖMNEK
Facebook megosztás ikon
MEGOSZTÁS

KAPCSOLATFELVÉTEL

Küldés

Az üzenetet sikeresen elküldtük!
Hiba történt!
INGATLAN ADATAI

Ingatlan jellege

ikerház

Belső terület

62 m²

Telek terület

310 m²

Tájolás

délnyugat

Építési állapot

új

Építési mód

tégla

Szobák száma

2 szoba

Szobák elhelyezkedése

külön nyílik min. 2 szoba

Épület szintje

földszintes.

Épült

2025

Ingatlan állapot

kívül: új
belül: új

Klíma

van

Szigetelés

15 cm

Ablak szerkezete

3 rétegű thermoplan

Fűtés

padlófűtés

Komfort

összkomfort

Parkolás

van fedetlen felszíni beálló

Közműállapot

csatorna: bekötve
gáz: bekötve
villany: bekötve
víz: bekötve

Energetika

nincs megadva

Az időpont kérés naptár ikonja
HTML
Az időpont kérés naptár ikonja
PDF
Eladó új építésű ikerház
Ingatlan azonosító:
39_gs

Nógrád megye, Pásztó, Sziget utca

Irányár

56.5 M Ft
(911.29 E Ft/㎡)

Szobák

2 szoba

Terület

62 m²

Telek terület

310 m²
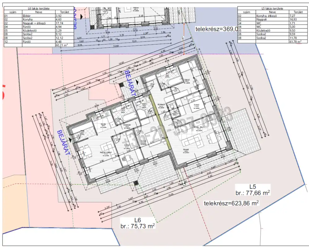
INGATLAN LEÍRÁSA
Új Építésű Amerikai Stílusú Ikerházak Pásztón!

Eladásra kínálok, kizárólag az Ingatlaniroda portfóliójából Nógrád Vármegyében Pásztón, Amerikai stílusú, modern műszaki tartalommal és prémium minőségű anyagokkal készülő, 310nm-en fekvő, 62nm-es ikerházat, melyhez igény esetén az ikerház másik fele is megvásárolható, amely 60nm alapterületű és összenyitható az értékesítésre kerülő 62nm-es lakrésszel.
Ha egy új otthonra vágyik, amely mind külsőleg, mind belsőleg kifinomult és kényelmes, akkor nálunk megtalálja!

Az ingatlanban kialakításra kerül egy előszoba, két szoba, egy konyha + étkező, egy nappali , egy kádas fürdőszoba, egy külön wc, közlekedő, külső, burkolt terasz.

A fűtésről padlófűtés, kondenzációs kazán, hűtő-fűtő klíma is gondoskodik.
Az udvar parkosított, kerítéssel körbeépített telek, térkövezett udvari részek, külön bejáratos, saját parkoló, burkolt terasz.

Az építés kezdete: 2025. II. negyedév.
Foglaló 10%-tól lehetséges, a további fizetés, az építési ütemterv és az adásvételi szerződésben foglaltak alapján.


Műszaki Tartalom:
Alapterület: 62 nm
Telek mérete: 310 nm
- Járda: 105 cm széles térkő borítású járda, kiskaputól a lakásbejáratig

Parkoló: Térkövezett parkolóhely, max. 20 nm, 4.000 Ft/nm

Főfalazat: 30 cm-es tégla
Belmagasság: Minimum 2,55 m

Homlokzati szigetelés: 15 cm-es hagyományos dryvit szigetelés
Tetőfedés: Fa szerkezet + Bramac cserép
Fűtés: Kodenzációs gázkazán, padlófűtéssel
Hűtés: Egy hűtő-fűtő inverteres klíma a nappaliban
Beltéri nyílászárók: MDF előregyártott ajtók, küszöb nélkül

Elektromos hálózat: Legrand Cariva típusú szerelvények, hagyományos mérőberendezéssel

Belső falfestés: Két rétegű diszperziós festés fehér színben

Terasz, erkély: Burkolva hideg burkolattal

Kerítés: Utcai homlokzaton vasbeton kerítés, udvari elválasztás előregyártott betonlapokkal

Tereprendezés, parkosítás: A közös területek parkosítása látványterv szerint

Különleges Kiegészítők:
- Többlet kiállások (pl. kapcsolók, dugaljak, TV, lámpa): 25.000 Ft/db
- Kerti csap: Vevői költségen, bruttó 70.000 Ft/db
- Kültéri lámpák: Bruttó 10.000 Ft értékig

Kiváló Elhelyezkedés:
Az új építésű ikerházak Pásztó csendes és nyugodt környékén találhatók, ideális választás nagycsaládosok, CSOK-ot, egyéb állami támogatást igénybe vevő családok számára, de akár befektetésnek is kitűnő lehetőség.

Ne hagyja ki ezt a lehetőséget, és válassza a prémium minőségű, modern amerikai stílusú otthont!

Igény esetén megbízható, pénzügyi szaktanácsadóink, hitelek, állami támogatások igénylésében is a legmegfelelőbb konstrukciókban tudnak segíteni.

Ingatlanirodánk teljes körű ügyintézéssel áll az eladó és a vevők rendelkezésére! Az adásvételi szerződés megkötéséhez igény szerint megbízható ügyvédi közreműködést biztosítunk és segítséget nyújtunk az adásvételhez kapcsolódó ügyek intézéséhez.

További információkért, kérem keressen bizalommal a megadott telefonszámon!

INGATLAN ADATAI

Ingatlan jellege
ikerház
Belső terület
62 m²
Telek terület
310 m²
Tájolás
délnyugat
Építési állapot
új
Építési mód
tégla
Szobák száma
2 szoba
Szobák elhelyezkedése
külön nyílik min. 2 szoba
Épület szintje
földszintes.
Épült
2025
Ingatlan állapot
kívül: új
belül: új
Klíma
van
Szigetelés
15 cm
Ablak szerkezete
3 rétegű thermoplan
Fűtés
padlófűtés
Komfort
összkomfort
Parkolás
van fedetlen felszíni beálló
Közműállapot
csatorna: bekötve
gáz: bekötve
villany: bekötve
víz: bekötve
Energetika
nincs megadva
TÉRKÉP

Nógrád megye, Pásztó, Sziget utca

Hitelkalkulátor


KAPCSOLAT
Tariné H. Piroska
Tariné H. Piroska


+36 20 337 0923

tarine.piroska@goldsmile.hu

KAPCSOLAT
Tariné H. Piroska

+36 20 337

tarine.piroska@

Az időpont kérés naptár ikonja
IDŐPONTOT KÉREK
A visszahívás kérés telefon ikonja egy azt körbe ölelő nyíllal
VISSZAHÍVÁST KÉREK
Ajánlom egy ismerősömnek ikon
AJÁNLOM EGY ISMERŐSÖMNEK
Facebook megosztás ikon
MEGOSZTÁS

KAPCSOLATFELVÉTEL

Küldés

Az üzenetet sikeresen elküldtük!
Hiba történt!
INGATLAN ADATAI

Ingatlan jellege

ikerház

Belső terület

62 m²

Telek terület

310 m²

Tájolás

délnyugat

Építési állapot

új

Építési mód

tégla

Szobák száma

2 szoba

Szobák elhelyezkedése

külön nyílik min. 2 szoba

Épület szintje

földszintes.

Épült

2025

Ingatlan állapot

kívül: új
belül: új

Klíma

van

Szigetelés

15 cm

Ablak szerkezete

3 rétegű thermoplan

Fűtés

padlófűtés

Komfort

összkomfort

Parkolás

van fedetlen felszíni beálló

Közműállapot

csatorna: bekötve
gáz: bekötve
villany: bekötve
víz: bekötve

Energetika

nincs megadva

Az időpont kérés naptár ikonja
HTML
Az időpont kérés naptár ikonja
PDF

Hasonló ingatlan hírdetések

Eladó új építésű családi ház, vagy kertes ház hirdetést keres Pásztó területén?
Tekintse meg további ajánlatainkat!

eladó családi ház, Pásztó

eladó családi ház

Nógrád megye, Pásztó
Eladásra kínálok kizárólag az Ingatlaniroda portfóliójából, Nógrád Vármegyében Pásztó egyik legcsendesebb, nyugodt utcájában, mégis a központhoz közel egy 1156nm kertbarát hangulatú telken fekvő, 76 m...
Belső terület
76 m²
Telek terület
1156 m²
Szobák
2

33 M Ft

Felújításra szorul!
Felújításra szorul
eladó családi ház, Pásztó

eladó családi ház

Nógrád megye, Pásztó
Eladásra kínálunk kizárólag az Ingatlanirodánk portfóliójából Pásztón, a városközponttól csupán néhány perc sétára, egy kb. 200 éve épült, felújítandó parasztházat. - Telek mérete: 1049 m² - Lakót...
Belső terület
75 m²
Telek terület
1049 m²
Szobák
2

15.9 M Ft

Felújításra szorul!
Felújításra szorul
eladó családi ház, Pásztó

eladó családi ház

Nógrád megye, Pásztó, Csermely utca
Eladásra kínálok, kizárólag az Ingatlaniroda portfóliójából Nógrád Vármegyében, Pásztón, egy 659 m²-es telken, egy felújítandó állapotú, két szintes családi házat, amely rengeteg lehetőséget rejt magá...
Belső terület
110 m²
Telek terület
659 m²
Szobák
3

33 M Ft

Felújításra szorul!
Felújításra szorul
eladó családi ház, Pásztó

eladó családi ház

Nógrád megye, Pásztó
DESIGN & KÉNYELEM EGYBEN Pásztó szívében, egy csendes kis utcában vár Önre egy különleges otthon 5 perc sétára a belvárostól. Ez nem csupán egy ház. Ez életstílus. Teljes körűen, saját részre fel...
Belső terület
80 m²
Telek terület
1119 m²
Szobák
2

39.7 M Ft

azonnal költözhető
Azonnal költözhető
eladó nyaraló, Pásztó

eladó nyaraló

Nógrád megye, Pásztó, Muzsla
Megvételre kínálunk egy igazi gyöngyszem nyaralót Pásztó Muzslai üdülőövezetében, ahol a lenyűgöző panoráma és a kiváló kilátás minden nap különleges élményt nyújt. Az ingatlan egy két szintes, tetőt...
Belső terület
50 m²
Telek terület
3288 m²
Szobák
1

39.9 M Ft

eladó családi ház, Pásztó

eladó családi ház

Nógrád megye, Pásztó
Eladó hangulatos, felújított családi ház Pásztó szívéhez közel – csendes, nyugodt környezetben! Eladásra kínálok kizárólag az Ingatlaniroda portfóliójából Nógrád Vármegyében Pásztón, a belvárostól ...
Belső terület
65 m²
Telek terület
544 m²
Szobák
1+1

28.5 M Ft

Felújított!
Felújított
eladó családi ház, Pásztó

eladó családi ház

Nógrád megye, Pásztó, Csillag tér
Otthon és befektetési lehetőség egy helyen, Pásztó szívében! Eladásra kínálok, kizárólag az Ingatlaniroda portfóliójából Nógrád Vármegyében Pásztón egy 683 nm-es telken fekvő, két különálló épületből...
Belső terület
250 m²
Telek terület
683 m²
Szobák
6

168 M Ft

Felújított!
Felújított
eladó családi ház, Pásztó

eladó családi ház

Nógrád megye, Pásztó
Ritka lehetőség Pásztó szívében – Otthon + Befektetés egyetlen telken! Álmodtál már arról, hogy egy kényelmes otthonod és egy jövedelmező vállalkozásod is ugyanazon a telken legyen? Most valóra válh...
Belső terület
140 m²
Telek terület
830 m²
Szobák
3

59.9 M Ft

CSOK igényelhető
CSOK igényelhető
Nógrád megye - Pásztó
Nógrád megye - Pásztó
Nógrád megye - Pásztó
Nógrád megye - Pásztó