Eladó téglalakás - Budapest, VI. kerület

KAPCSOLAT
Nagy Viktória


+36 20 575

info@

Az időpont kérés naptár ikonja
IDŐPONTOT KÉREK
A visszahívás kérés telefon ikonja egy azt körbe ölelő nyíllal
VISSZAHÍVÁST KÉREK
Ajánlom egy ismerősömnek ikon
AJÁNLOM EGY ISMERŐSÖMNEK
Facebook megosztás ikon
MEGOSZTÁS

KAPCSOLATFELVÉTEL

Küldés

Az üzenetet sikeresen elküldtük!
Hiba történt!
INGATLAN ADATAI

Ingatlan jellege

téglalakás

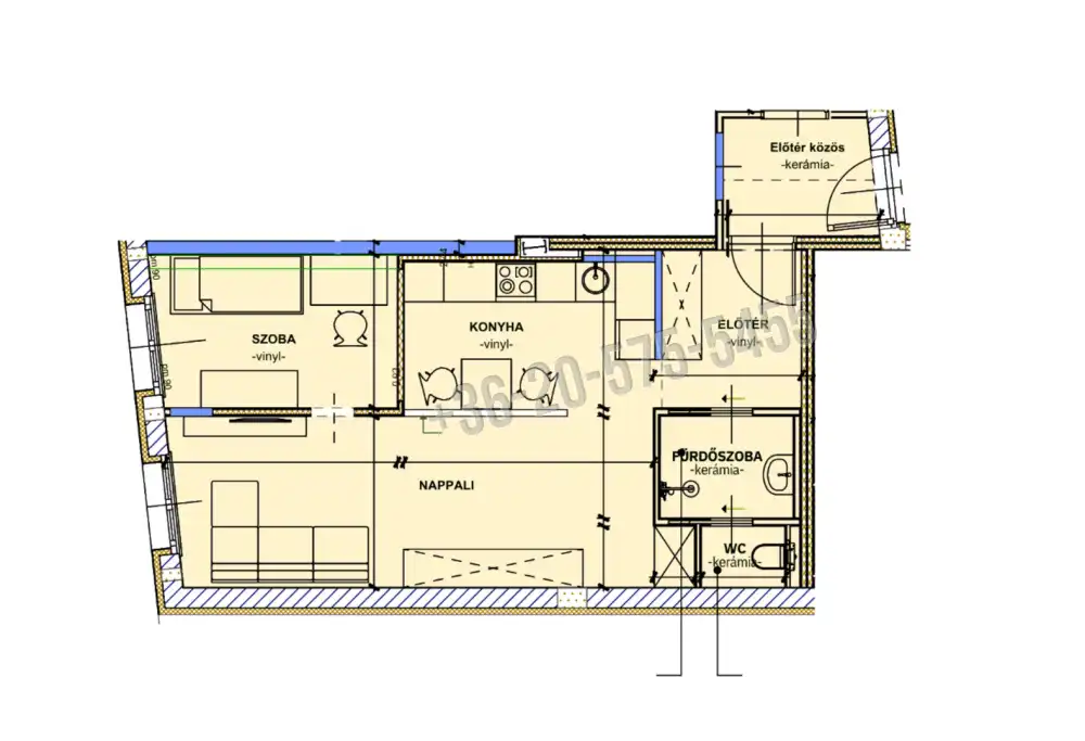
Belső terület

48 m²

Tájolás

délnyugat

Építési állapot

használt

Építési mód

tégla

Szobák száma

2 szoba

Szobák elhelyezkedése

egybenyílóak

Emelet

2.

Épület szintje

5.

Épült

2025

Akadálymentes

igen

Lift

van

Ingatlan állapot

kívül: új
belül: új

Klíma

van

Szigetelés

15 cm

Ablak szerkezete

3 rétegű thermoplan

Fűtés

hőszivattyús

Komfort

összkomfort

Kilátás

utcára

Energetika

A++:

Az időpont kérés naptár ikonja
HTML
Az időpont kérés naptár ikonja
PDF
Eladó téglalakás
Ingatlan azonosító:
128_inc

Budapest, VI. kerület, Terézváros (Nagykörúton kívül)

Irányár

79.9 M Ft
(1.66 M Ft/㎡)

Szobák

2 szoba

Emelet

2

Terület

48 m²
INGATLAN LEÍRÁSA
ÚJ ÉPÍTÉSŰ INGATLANOK A RÓZSA UTCÁBAN
UTOLSÓ LAKÁS!!!!! óriási árcsökkenéssel!!!!!
Az épületben összesen 19 új építésű lakás lett kialakítva , 1,5 -2 -3 szobás kivitelben.2 szinten emeletráépítéssel plusz a tetőtérben
A teljes épület megújult új homlokzatot kapott a ház

Eladó egy 48 m2-es, 1+2 félszobás új építésű lakás a társasház 2. emeletén.
A falak még egyedi igény szerint módosíthatóak

-az ablakok motoros redőnnyel felszereltek,
-a fűtést a mennyezeti hűtés-fűtés rendszer és padlófűtés biztosítja.
-alacsony fenntartási költség
-Panoráma lift

Az átadás:már megtörtént
Remek elhelyezkedésű: pár perc sétával megközelíthető az Andrássy út és a Kodály Körönd metrómegállója, de a Városliget, az Oktogon és a Nyugati pályaudvar is sétatávra található.
Irodánk is a közelben

EXTRA KÖLTSÉGGEL:
A látványképeket belsőépítészünkkel életre tudjuk kelteni ugyanilyenre berendezve
ha igény van rá .




Státusz : alkalmazotti megbízás

INGATLAN ADATAI

Ingatlan jellege
téglalakás
Belső terület
48 m²
Tájolás
délnyugat
Építési állapot
használt
Építési mód
tégla
Szobák száma
2 szoba
Szobák elhelyezkedése
egybenyílóak
Emelet
2.
Épület szintje
5.
Épült
2025
Akadálymentes
igen
Lift
van
Ingatlan állapot
kívül: új
belül: új
Klíma
van
Szigetelés
15 cm
Ablak szerkezete
3 rétegű thermoplan
Fűtés
hőszivattyús
Komfort
összkomfort
Kilátás
utcára
Energetika
A++:
TÉRKÉP

Budapest, VI. kerület, Terézváros

Hitelkalkulátor


KAPCSOLAT
Nagy Viktória
Nagy Viktória


+36 20 575 5455

info@nagyvaltozasingatlan.hu

KAPCSOLAT
Nagy Viktória

+36 20 575

info@

Az időpont kérés naptár ikonja
IDŐPONTOT KÉREK
A visszahívás kérés telefon ikonja egy azt körbe ölelő nyíllal
VISSZAHÍVÁST KÉREK
Ajánlom egy ismerősömnek ikon
AJÁNLOM EGY ISMERŐSÖMNEK
Facebook megosztás ikon
MEGOSZTÁS

KAPCSOLATFELVÉTEL

Küldés

Az üzenetet sikeresen elküldtük!
Hiba történt!
INGATLAN ADATAI

Ingatlan jellege

téglalakás

Belső terület

48 m²

Tájolás

délnyugat

Építési állapot

használt

Építési mód

tégla

Szobák száma

2 szoba

Szobák elhelyezkedése

egybenyílóak

Emelet

2.

Épület szintje

5.

Épült

2025

Lift

van

Ingatlan állapot

kívül: új
belül: új

Klíma

van

Szigetelés

15 cm

Ablak szerkezete

3 rétegű thermoplan

Fűtés

hőszivattyús

Komfort

összkomfort

Kilátás

utcára

Energetika

A++:

Az időpont kérés naptár ikonja
HTML
Az időpont kérés naptár ikonja
PDF

Hasonló ingatlan hírdetések

Eladó tégla-, vagy panellakás hirdetést keres Budapesten a VI. kerületben?
Tekintse meg további ajánlatainkat!

eladó téglalakás, Budapest, VI. kerület

eladó téglalakás

Budapest, VI. kerület, , Hunyadi tér
Kiválóan megközelíthető, igényes környezetben lévő, kiváló állapotú, 2 szobás otthon! INGATLAN HELYSZÍNE: VI. kerület Középső- Terézváros részén található a Hunyadi téren. Kiválóan megközelíthető,...
Belső terület
45 m²
Szobák
2

74.5 M Ft

azonnal költözhető
Azonnal költözhető
eladó téglalakás, Budapest, VI. kerület

eladó téglalakás

Budapest, VI. kerület, Terézváros (Nagykörúton belül), Bajcsy-Zsilinszky út
Budapest VI. kerületének egyik legkedveltebb részén, a Bajcsy-Zsilinszky úton kínálok megvételre egy 36 nm-es, világos, teljeskörűen felújított 2. emeleti garzonlakást. Rendezett, századfordulós tégla...
Belső terület
36 m²
Szobák
1
Emelet
1

76.9 M Ft

eladó téglalakás, Budapest, VI. kerület

eladó téglalakás

Budapest, VI. kerület, Külső-Terézváros–Diplomatanegyed
KIEMELT AJÁNLAT A DIPLOMATANEGYEDBEN: KÉT ERKÉLYES, DUPLA KOMFORTOS NAGYPOLGÁRI .....CSEND, NYUGALOM ÉS ELEGANCIA A VÁROSLIGET kerületben, Benczúr utcában eladóvá vált egy minden eredeti szépségét ...
Belső terület
153 m²
Szobák
5
Emelet
2

299.9 M Ft

eladó téglalakás, Budapest, VI. kerület

eladó téglalakás

Budapest, VI. kerület, Külső-Terézváros–Diplomatanegyed
...DIPLOMATTANEGYEDMEN... VÁROSLIGETTŐL, ANDRÁSSY ÚTTÓL KARNYÚJTÁSNYIRA... ...IGÉNYES, EXTRA, MINŐSÉGILEG FELÚJÍTOTT INGATLATN... ....TELJES ÚJ BÚTORZATTAL... GÉPESÍTVE ELADÓ... Eladó a 6. ke...
Belső terület
105 m²
Szobák
3
Emelet
1

300 M Ft

eladó téglalakás, Budapest, VI. kerület

eladó téglalakás

Budapest, VI. kerület, Terézváros (Nagykörúton belül), Paulay Ede u.
Prémium lakás a Terézváros szívében – Paulay Ede utca Eladó egy tehermentes, azonnal költözhető, 72 m²-es polgári lakás Belső-Terézváros legkeresettebb részén! Ha egy olyan ingatlant keres, ahol...
Belső terület
72 m²
Szobák
2
Emelet
2

92.5 M Ft

azonnal költözhető
Azonnal költözhető
eladó téglalakás, Budapest, VI. kerület

eladó téglalakás

Könnyen alakítható, kiadható gyorsan birtokba vehető belvárosi lakás

Budapest, VI. kerület, Terézváros (Nagykörúton kívül)
Eladó 64 m2-es, 2 nagy szobás, alakítható polgári lakás az Eötvös utcában (VI. kerület), Terézváros egyik legkeresettebb részén. Első emeleti, tehermentes polgári lakás. 1880-as években épült, tiszt...
Belső terület
64 m²
Szobák
2
Emelet
1

85 M Ft

azonnal költözhető
Azonnal költözhető
eladó téglalakás, Budapest, VI. kerület

eladó téglalakás

Budapest, VI. kerület,
...LISZT FERENNC TÉR KÖZVETLEN KÖZELÉBEN... A PEZSGŐ BELVÁROSBAN, CSENDES LAKÁS... ....KOMPAKT...BELSŐ KÉT SZINTES... TELJESEN FELÚJÍTOTT LAKÁS ... ...KÍVÜL -BELÜL GYÖNYÖRÜEN FELÚJÍTOTT HÁZBAN.....
Belső terület
28 m²
Szobák
2
Emelet
földszint

69.99 M Ft

eladó téglalakás, Budapest, VI. kerület

eladó téglalakás

Budapest, VI. kerület, Terézváros (Nagykörúton belül)
HAMISÍTATLAN BELVÁROSI, NAGYPOLGÁRI KARAKTERŰ LAKÁS A DEÁK TÉRTŐL KŐHAJÍTÁSNYIRA! TÁGAS, SZELLŐS, VILÁGOS TEREK HATALMAS, AKÁR OSZTHATÓ SZOBÁK FELÚJÍTOTT, TEHERMENTES, AZONNAL BIRTOKBA VEHETŐ MAGÁ...
Belső terület
98 m²
Szobák
3
Emelet
2

106 M Ft

alkalmi vétel
Alkalmi vétel
Budapest, VI. kerület - Terézváros (Nagykörúton kívül)
Budapest, VI. kerület - Terézváros (Nagykörúton kívül)
Budapest, VI. kerület - Terézváros (Nagykörúton kívül)
Budapest, VI. kerület - Terézváros (Nagykörúton kívül)
Budapest, VI. kerület - Terézváros (Nagykörúton kívül)
Budapest, VI. kerület - Terézváros (Nagykörúton kívül)
Budapest, VI. kerület - Terézváros (Nagykörúton kívül)
Budapest, VI. kerület - Terézváros (Nagykörúton kívül)